Villa te koop in LAREN met referentie 19109514639
Zevenenderdrift 11, 1251 RA LAREN—Ref. LN102061
De beste plekken komen zelden te koop... Deze vrijstaande villa (met twee garages!) en een woonoppervlakte van circa 165 m², op een zonnig gelegen perceel van circa 362 m² in het centrum van Laren is nu beschikbaar! De woning biedt volop mogelijkheden om hier uw eigen droomhuis van te maken! Een huis kunt u aanpassen, de locatie niet!
INDELING
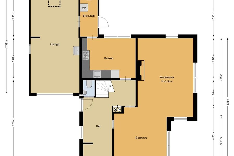
Begane grond: binnenkomst in de hal met de meterkast, aparte wc, garderobe, trap naar de eerste verdieping en toegang naar de keuken en woon-/ eetkamer. Royale woonkamer met een hout gestookte open haard en prachtige glas in lood details. Vanuit de woonkamer en eetkamer kijkt u uit op de zonnige en groene tuin. De keuken is goed uitgerust en geeft toegang naar de bijkeuken met de CV ketel en de aansluitingen voor de wasmachine/ droger. Vanuit hier toegang naar de achtertuin en de garage van ca. 27 m².
Eerste verdieping: ruime overloop met toegang naar de royale hoofdslaapkamer aan de zuidkant. Aan de voorzijde bevindt zich een tweede slaap-/ werkkamer. Derde slaapkamer aan de noordkant. De badkamer ligt aan de achterzijde en is voorzien van een bad, inloopdouche, dubbele wastafel en wc. Diverse vaste kasten voor opbergruimte.
Tuin: mogelijkheid om een auto op eigen terrein te parkeren. De tuin met ligging op het zuiden biedt vrij uitzicht en veel privacy. In de tuin staat een vrijstaande garage, ideaal om te verbouwen naar multifunctioneel bijgebouw (kantoor, atelier of hobbyruimte, zie renderings).
OMGEVING & BEREIKBAARHEID
Gelegen in het hart van het pittoreske Laren, biedt deze villa een unieke woonervaring. Deze locatie combineert de rust van een dorpse omgeving met de levendigheid van een bruisend centrum. Op loopafstand vindt u een diversiteit aan boetieks, gezellige cafés en uitstekende restaurants, waardoor het dagelijks leven zowel comfortabel als plezierig is.
Laren staat bekend om zijn rijke culturele erfgoed en groene omgeving. Het nabijgelegen Singer Laren, een museum en theater, biedt een breed scala aan kunst en culturele evenementen. Daarnaast nodigen de omliggende natuurgebieden uit tot ontspannende wandelingen en fietstochten, waardoor natuurliefhebbers volop aan hun trekken komen.
De bereikbaarheid van Zevenenderdrift 11 is uitstekend. Met de auto bent u binnen enkele minuten op de snelwegen A1 en A27, wat snelle verbindingen biedt naar steden zoals Amsterdam en Utrecht. Openbaar vervoer is eveneens goed, de dichtstbijzijnde bushalte bevindt zich op slechts 150 meter afstand, waardoor omliggende plaatsen eenvoudig te bereiken zijn.
KENMERKEN
- Gelegen op loopafstand van het bruisende centrum van Laren
- Gebruiksoppervlakte wonen ca. 139 m² (NEN2580 meetrapport beschikbaar)
- Mogelijkheid om de aangebouwde garage van ca. 27 m² bij de woning te betrekken om zo een totale oppervlakte van
165 m² te realiseren
- De villa dient te worden aangepast aan de eisen van deze tijd
- Bouwjaar 1914
- De woning is grotendeels voorzien van dubbel glas
- Drie slaapkamers en één badkamer
- Garage/ bijgebouw van ca. 21 m²
- Verkoop onder voorbehoud gunning verkoper
- De renderings zijn een sfeerimpressie waaraan geen rechten kunnen worden ontleend
Voor een rondleiding door deze vrijstaande villa in het centrum van Laren kunt u contact opnemen met Aldert J. Froma, NVM Makelaar van ons makelaarskantoor Laren. Nog beter is om uw eigen NVM makelaar mee te nemen.
Deze informatie is door ons met de nodige zorgvuldigheid samengesteld. Onzerzijds wordt echter geen enkele aansprakelijkheid aanvaard voor enige onvolledigheid, onjuistheid of anderszins, dan wel de gevolgen daarvan. Alle opgegeven maten en oppervlakten zijn indicatief. Koper heeft zijn eigen onderzoek plicht naar alle zaken die voor hem of haar van belang zijn. Met betrekking tot deze woning is de makelaar adviseur van verkoper. Wij adviseren u een deskundige (NVM-)makelaar in te schakelen die u begeleidt bij het aankoopproces. Indien u specifieke wensen heeft omtrent de woning, adviseren wij u deze tijdig kenbaar te maken aan uw aankopend makelaar en hiernaar zelfstandig onderzoek te (laten) doen. Indien u geen deskundige vertegenwoordiger inschakelt, acht u zich volgens de wet deskundige genoeg om alle zaken die van belang zijn te kunnen overzien. Van toepassing zijn de NVM voorwaarden.
INDELING
Begane grond: binnenkomst in de hal met de meterkast, aparte wc, garderobe, trap naar de eerste verdieping en toegang naar de keuken en woon-/ eetkamer. Royale woonkamer met een hout gestookte open haard en prachtige glas in lood details. Vanuit de woonkamer en eetkamer kijkt u uit op de zonnige en groene tuin. De keuken is goed uitgerust en geeft toegang naar de bijkeuken met de CV ketel en de aansluitingen voor de wasmachine/ droger. Vanuit hier toegang naar de achtertuin en de garage van ca. 27 m².
Eerste verdieping: ruime overloop met toegang naar de royale hoofdslaapkamer aan de zuidkant. Aan de voorzijde bevindt zich een tweede slaap-/ werkkamer. Derde slaapkamer aan de noordkant. De badkamer ligt aan de achterzijde en is voorzien van een bad, inloopdouche, dubbele wastafel en wc. Diverse vaste kasten voor opbergruimte.
Tuin: mogelijkheid om een auto op eigen terrein te parkeren. De tuin met ligging op het zuiden biedt vrij uitzicht en veel privacy. In de tuin staat een vrijstaande garage, ideaal om te verbouwen naar multifunctioneel bijgebouw (kantoor, atelier of hobbyruimte, zie renderings).
OMGEVING & BEREIKBAARHEID
Gelegen in het hart van het pittoreske Laren, biedt deze villa een unieke woonervaring. Deze locatie combineert de rust van een dorpse omgeving met de levendigheid van een bruisend centrum. Op loopafstand vindt u een diversiteit aan boetieks, gezellige cafés en uitstekende restaurants, waardoor het dagelijks leven zowel comfortabel als plezierig is.
Laren staat bekend om zijn rijke culturele erfgoed en groene omgeving. Het nabijgelegen Singer Laren, een museum en theater, biedt een breed scala aan kunst en culturele evenementen. Daarnaast nodigen de omliggende natuurgebieden uit tot ontspannende wandelingen en fietstochten, waardoor natuurliefhebbers volop aan hun trekken komen.
De bereikbaarheid van Zevenenderdrift 11 is uitstekend. Met de auto bent u binnen enkele minuten op de snelwegen A1 en A27, wat snelle verbindingen biedt naar steden zoals Amsterdam en Utrecht. Openbaar vervoer is eveneens goed, de dichtstbijzijnde bushalte bevindt zich op slechts 150 meter afstand, waardoor omliggende plaatsen eenvoudig te bereiken zijn.
KENMERKEN
- Gelegen op loopafstand van het bruisende centrum van Laren
- Gebruiksoppervlakte wonen ca. 139 m² (NEN2580 meetrapport beschikbaar)
- Mogelijkheid om de aangebouwde garage van ca. 27 m² bij de woning te betrekken om zo een totale oppervlakte van
165 m² te realiseren
- De villa dient te worden aangepast aan de eisen van deze tijd
- Bouwjaar 1914
- De woning is grotendeels voorzien van dubbel glas
- Drie slaapkamers en één badkamer
- Garage/ bijgebouw van ca. 21 m²
- Verkoop onder voorbehoud gunning verkoper
- De renderings zijn een sfeerimpressie waaraan geen rechten kunnen worden ontleend
Voor een rondleiding door deze vrijstaande villa in het centrum van Laren kunt u contact opnemen met Aldert J. Froma, NVM Makelaar van ons makelaarskantoor Laren. Nog beter is om uw eigen NVM makelaar mee te nemen.
Deze informatie is door ons met de nodige zorgvuldigheid samengesteld. Onzerzijds wordt echter geen enkele aansprakelijkheid aanvaard voor enige onvolledigheid, onjuistheid of anderszins, dan wel de gevolgen daarvan. Alle opgegeven maten en oppervlakten zijn indicatief. Koper heeft zijn eigen onderzoek plicht naar alle zaken die voor hem of haar van belang zijn. Met betrekking tot deze woning is de makelaar adviseur van verkoper. Wij adviseren u een deskundige (NVM-)makelaar in te schakelen die u begeleidt bij het aankoopproces. Indien u specifieke wensen heeft omtrent de woning, adviseren wij u deze tijdig kenbaar te maken aan uw aankopend makelaar en hiernaar zelfstandig onderzoek te (laten) doen. Indien u geen deskundige vertegenwoordiger inschakelt, acht u zich volgens de wet deskundige genoeg om alle zaken die van belang zijn te kunnen overzien. Van toepassing zijn de NVM voorwaarden.
| Vastgoed ID | LN102061 |
|---|---|
| Vraagprijs | € 1.050.000 k.k. |
| Woningtype | Villa |
| Woonopp. | 165 m² |
| Perceelopp. | 360 m² |
| Bouwjaar | 1914 |
| Renovatiejaar | - |
| Slaapkamers | 3 |
| Badkamers | 1 |
| Garages | 1 |
| Energielabel | F |
Voorma en Walch Laren Brink 34, 1251 KW Laren
- Telefoon:+31.35.539.90.80
- Email:laren@voorma-walch.nl
- Website:voorma-walch.nl
- Maandag - VrijdagOpen van 08.30 - 17.30
- Zaterdag Open van 10.00 - 16.00
- Zondag Gesloten


































































