Hilversumsestraatweg 5A, Baarn
Hilversumsestraatweg 5A, 3744 KB Baarn—Ref. NL-1213
‘De Zeven Linden,’ in 1951 gebouwd voor een gerenommeerde advocaten familie, is een stijlvol vrijstaand landhuis, prachtig gelegen op een royaal perceel van 6.350 m² in de bosrijke omgeving van de Lage Vuursche, tussen Hilversum en Baarn. De geheel vrije tuin, met heerlijk terras op het zuiden, grenst direct aan de uitgestrekte bossen, waardoor het huis niet alleen veel privacy biedt, maar ook een unieke verbinding met de natuur. Hier woon je in een rustige en veilige omgeving, met volop mogelijkheden om te wandelen, fietsen of paardrijden direct vanaf je eigen terrein.
De ligging is ideaal: tussen Baarn en Hilversum, schuin tegenover Kasteel De Hooge Vuursche en op korte afstand van Restaurant Vuur en de Baarnse Lawn Tennisclub. Binnen enkele fietsminuten bereik je de centra van Baarn, Hilversum en Soest, evenals het NS-station van Baarn of Hilversum Sportpark. Ook voor (internationaal) onderwijs, sportfaciliteiten en dagelijkse voorzieningen hoef je nooit ver weg. Verder liggen de opritten naar de A1 en A27 dichtbij. Zo ben je binnen een half uur in Amsterdam of Utrecht.
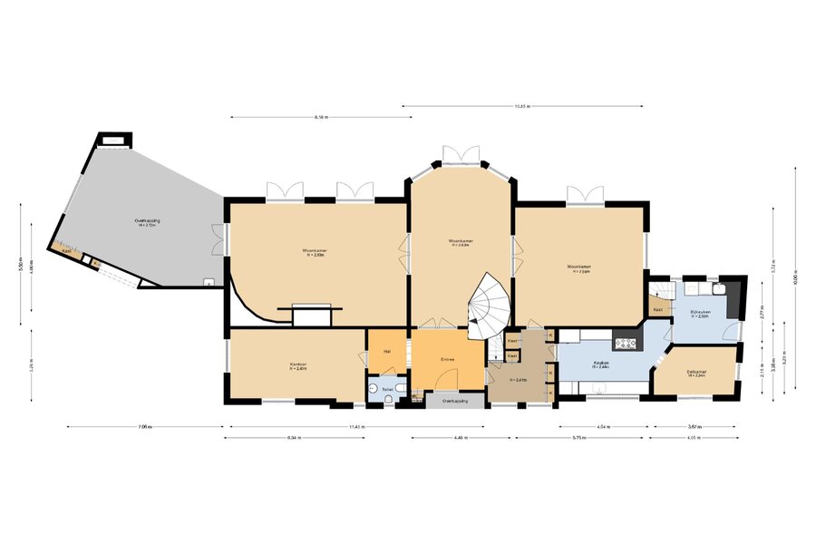
Met een woonoppervlak van circa 426 m² biedt De Zeven Linden veel ruimte en flexibiliteit. Vrijwel alle leefruimtes hebben zicht op de fraai aangelegde park achtige tuin, waardoor binnen en buiten bijna naadloos in elkaar overgaan. De royale woonkamer met open haard vormt het hart van het huis, waar grote ramen het daglicht royaal binnenlaten. In de aangrenzende serre, centraal in de woning, trekt de royale, gebogen monumentale trap direct de aandacht. De klassieke eetkamer, grenzend aan de keuken, biedt een stijlvolle ruimte voor diners met een groot gezelschap of vergaderingen en in de evenzo klassieke bibliotheek/kantoor links van de hoofdingang kan iedere thuiswerker, boekenliefhebber of hobbyist zich de ogen uit kijken. Deze ruimte zou eventueel dienst kunnen doen als zesde slaapkamer.
De keuken (vernieuwd in 2003) is luxe uitgevoerd en voorzien van hoogwaardige inbouwapparatuur, waaronder een hoge druk stoomoven, warmhoud-oven, wokbrander, ingebouwde frituurpan, ruime dubbeldeurs koelkast, aparte vriezer en vaatwasser. Grenzend aan de keuken vind je aan de ene kant een praktische pantry met 5 grote inbouw kasten en toegang tot de kelder, en aan de andere kant een bijkeuken met extra kastruimte, was voorzieningen en een tweede trap naar de bovenverdieping, welke uit komt in de strijkkamer.
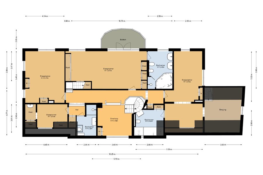
Op de eerste verdieping bevindt zich de riante oudersuite, compleet met twee vaste kasten, een royale inloopkast en een luxe badkamer die is afgewerkt in handgemaakt Italiaans marmer. Drie extra slaapkamers en twee aanvullende badkamers, waarvan één met vloerverwarming, verwarmde spiegel en sunshower, maken deze verdieping compleet. Een strijk- of hobbykamer biedt extra gebruiksmogelijkheden. Goed om te weten is dat de meest westelijke kamer met eigen zithoek en badkamer grenst aan de strijkkamer, welke dan weer boven de bijkeuken is gesitueerd. Dit gedeelte kan uitstekend dienst doen als woonverblijf voor bijvoorbeeld een au-pair.
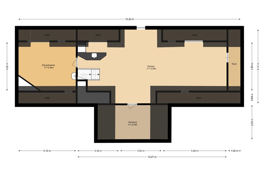
De zolder is zeer ruim en sfeervol ingericht en biedt naast veel bergruimte een gezellige bar met messing biertap en een royale slaapkamer. Op zolder treffen we verder enkele technische installaties. De kelder bevat een geconditioneerde wijnkelder, een voorraadruimte en een technische ruimte met waterontharder en installaties voor de tuinberegening. Ook is hier toegang tot de kruipruimte, welke zich onder de gehele woning bevindt.
De tuin is onder architectuur aangelegd en voorzien van automatische beregening via meerdere zones. Er is een verwarmd zwembad (zonnecollectoren) van 14 x 7 meter met duikplank, jetstream, prachtige avond verlichting, zonnedek en een apart douchehuis met toilet en pomp- en verwarmingssystemen. Het overdekte terras met open haard en elektrische verwarming, grenzend aan de woonkamer, maakt het mogelijk om ook in de koelere maanden buiten te zitten. Voor liefhebbers van paarden of ander hobby vee zijn er twee stallen met wateraansluiting, een deels door bomen beschutte paardenweide en er is vrijwel directe toegang tot de ruiterpaden.
Naast de hoofdwoning zijn er diverse bijgebouwen, waaronder verwarmde garages met vliering, een royale carport, een afsluitbare fietsenstalling, een kas, een tuingereedschapshok en een stalling voor de tuintractor. De brede oprijlaan biedt ruime parkeermogelijkheden binnen de poort, waarbij de rotonde zorgt voor eenvoudig in- en uitrijden.
Bijzonderheden:
- Vrijstaand landhuis (1951) op royaal perceel van maar liefst 6.350 m², grenzend aan bos en Utrechtse Heuvelrug;
- Volledig vrije tuin rondom, met achtertuin op het zuiden, onder architectuur aangelegd;
- Woonoppervlak ca. 426 m² met royale, lichte leefruimtes;
- Verwarmd zwembad (14 x 7 m) met duikplank, jetstream, prachtige verlichting in de avond, en zonnedek;
- Overdekt terras met open haard en elektrische verwarming;
- Luxe keuken (2003) met hoogwaardige inbouwapparatuur;
- Twee stallen, paardenweide en vrijwel directe toegang tot ruiterpaden;
- Diverse bijgebouwen, waaronder verwarmde garages, carport en kas;
- Uitgebreid beveiligingssysteem, natrium buitenverlichting en hoogwaardige afwerking.
De ligging is ideaal: tussen Baarn en Hilversum, schuin tegenover Kasteel De Hooge Vuursche en op korte afstand van Restaurant Vuur en de Baarnse Lawn Tennisclub. Binnen enkele fietsminuten bereik je de centra van Baarn, Hilversum en Soest, evenals het NS-station van Baarn of Hilversum Sportpark. Ook voor (internationaal) onderwijs, sportfaciliteiten en dagelijkse voorzieningen hoef je nooit ver weg. Verder liggen de opritten naar de A1 en A27 dichtbij. Zo ben je binnen een half uur in Amsterdam of Utrecht.
Met een woonoppervlak van circa 426 m² biedt De Zeven Linden veel ruimte en flexibiliteit. Vrijwel alle leefruimtes hebben zicht op de fraai aangelegde park achtige tuin, waardoor binnen en buiten bijna naadloos in elkaar overgaan. De royale woonkamer met open haard vormt het hart van het huis, waar grote ramen het daglicht royaal binnenlaten. In de aangrenzende serre, centraal in de woning, trekt de royale, gebogen monumentale trap direct de aandacht. De klassieke eetkamer, grenzend aan de keuken, biedt een stijlvolle ruimte voor diners met een groot gezelschap of vergaderingen en in de evenzo klassieke bibliotheek/kantoor links van de hoofdingang kan iedere thuiswerker, boekenliefhebber of hobbyist zich de ogen uit kijken. Deze ruimte zou eventueel dienst kunnen doen als zesde slaapkamer.
De keuken (vernieuwd in 2003) is luxe uitgevoerd en voorzien van hoogwaardige inbouwapparatuur, waaronder een hoge druk stoomoven, warmhoud-oven, wokbrander, ingebouwde frituurpan, ruime dubbeldeurs koelkast, aparte vriezer en vaatwasser. Grenzend aan de keuken vind je aan de ene kant een praktische pantry met 5 grote inbouw kasten en toegang tot de kelder, en aan de andere kant een bijkeuken met extra kastruimte, was voorzieningen en een tweede trap naar de bovenverdieping, welke uit komt in de strijkkamer.
Op de eerste verdieping bevindt zich de riante oudersuite, compleet met twee vaste kasten, een royale inloopkast en een luxe badkamer die is afgewerkt in handgemaakt Italiaans marmer. Drie extra slaapkamers en twee aanvullende badkamers, waarvan één met vloerverwarming, verwarmde spiegel en sunshower, maken deze verdieping compleet. Een strijk- of hobbykamer biedt extra gebruiksmogelijkheden. Goed om te weten is dat de meest westelijke kamer met eigen zithoek en badkamer grenst aan de strijkkamer, welke dan weer boven de bijkeuken is gesitueerd. Dit gedeelte kan uitstekend dienst doen als woonverblijf voor bijvoorbeeld een au-pair.
De zolder is zeer ruim en sfeervol ingericht en biedt naast veel bergruimte een gezellige bar met messing biertap en een royale slaapkamer. Op zolder treffen we verder enkele technische installaties. De kelder bevat een geconditioneerde wijnkelder, een voorraadruimte en een technische ruimte met waterontharder en installaties voor de tuinberegening. Ook is hier toegang tot de kruipruimte, welke zich onder de gehele woning bevindt.
De tuin is onder architectuur aangelegd en voorzien van automatische beregening via meerdere zones. Er is een verwarmd zwembad (zonnecollectoren) van 14 x 7 meter met duikplank, jetstream, prachtige avond verlichting, zonnedek en een apart douchehuis met toilet en pomp- en verwarmingssystemen. Het overdekte terras met open haard en elektrische verwarming, grenzend aan de woonkamer, maakt het mogelijk om ook in de koelere maanden buiten te zitten. Voor liefhebbers van paarden of ander hobby vee zijn er twee stallen met wateraansluiting, een deels door bomen beschutte paardenweide en er is vrijwel directe toegang tot de ruiterpaden.
Naast de hoofdwoning zijn er diverse bijgebouwen, waaronder verwarmde garages met vliering, een royale carport, een afsluitbare fietsenstalling, een kas, een tuingereedschapshok en een stalling voor de tuintractor. De brede oprijlaan biedt ruime parkeermogelijkheden binnen de poort, waarbij de rotonde zorgt voor eenvoudig in- en uitrijden.
Bijzonderheden:
- Vrijstaand landhuis (1951) op royaal perceel van maar liefst 6.350 m², grenzend aan bos en Utrechtse Heuvelrug;
- Volledig vrije tuin rondom, met achtertuin op het zuiden, onder architectuur aangelegd;
- Woonoppervlak ca. 426 m² met royale, lichte leefruimtes;
- Verwarmd zwembad (14 x 7 m) met duikplank, jetstream, prachtige verlichting in de avond, en zonnedek;
- Overdekt terras met open haard en elektrische verwarming;
- Luxe keuken (2003) met hoogwaardige inbouwapparatuur;
- Twee stallen, paardenweide en vrijwel directe toegang tot ruiterpaden;
- Diverse bijgebouwen, waaronder verwarmde garages, carport en kas;
- Uitgebreid beveiligingssysteem, natrium buitenverlichting en hoogwaardige afwerking.
| Vastgoed ID | NL-1213 |
|---|---|
| Vraagprijs | € 2.795.000 k.k. |
| Woningtype | Villa |
| Woonopp. | 426 m² |
| Perceelopp. | 6.350 m² |
| Bouwjaar | 1951 |
| Renovatiejaar | 2015 |
| Slaapkamers | 5 |
| Badkamers | 3 |
| Garages | 2 |
| Energielabel | C |
Majoor Makelaars Kerkstraat 83 a, 3764 CS Soest
- Telefoon:+31.035.60.36.282
- Email:info@majoor.nl
- Website:www.majoor.nl
- Maandag - VrijdagOpen van 09.00 - 17.30
- Zaterdag - ZondagGesloten














































































































