Villa te koop in HUIZEN met referentie 19110523342
De Ginckellaan 10, 1272 RM HUIZEN—Ref. HN103468
In het hart van de groene villawijk Crailo, waar rust en luxe elkaar ontmoeten, staat een waar juweel te wachten op haar nieuwe bewoners: een schitterend vrijstaand rietgedekt landhuis, een oase van stijl en comfort die u met open armen welkom heet.
Dit meesterlijk ontworpen huis, gebouwd in 2004 en opnieuw onder handen genomen in 2020, met een liefdevolle oog voor detail en met alleen de beste materialen, rust op een royaal perceel van meer dan 2.160 m² en heeft meer dan 400 m2 woonoppervlakte. Hier vindt u niet alleen een thuis, maar een levensstijl vol elegantie en ontspanning.
Bij binnenkomst omarmt de royale hal u met haar lichte sfeer en de uitnodigende vide. Vanuit hier leidt een dubbele deur u naar het hart van het huis: een magnifieke woonkeuken met een adembenemend Taj Mahal marmeren eiland, uitgerust met een PITT cooking systeem en een slim verzonken tv-mechaniek. De warme haard en openslaande deuren openen de ruimte naar de riante tuin, alsof binnen en buiten in perfecte harmonie samensmelten.
Voor uw ontspanning en wellness is er een prachtig inpandig zwembad van ca. 4 x 10 meter, verwarmd met een efficiënte warmtepomp, met openslaande deuren naar een weelderige tuin, waar de dag in rust kan eindigen. Grenzend hieraan ligt een ruime fitnessruimte, waar u met uitzicht op het groen elke dag energie kunt opdoen.
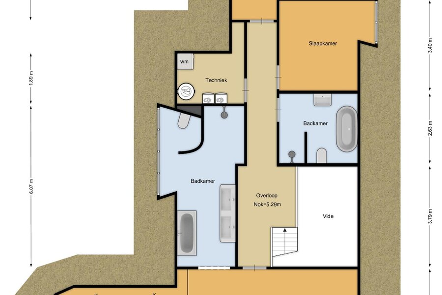
De indeling vervolgt zich op de eerste verdieping met een indrukwekkende masterbedroom, compleet met walk-in closet en een badkamer als een spa, waarin rust en luxe samenvloeien met een ligbad, inloopdouche en airconditioning.
Naast de royale slaapkamers en badkamers, biedt het landhuis praktische luxe met een inpandige garage en een bijzondere driedubbele vrijstaande garage van 60m2, inclusief gastenverblijf van 56m2 – perfect voor vrienden, familie of als inspirerende werkruimte.
De prachtig aangelegde tuin, compleet met sproei-installatie en verwarmd terras, nodigt uit tot eindeloze zomerse avonden onder de sterren, met zachte muziek die door de buitenluidsprekers klinkt.
Ervaar de ultieme balans tussen luxe, ruimte en welzijn in deze complete villa die wacht om uw nieuwe thuis te worden.
Wij nodigen u graag uit voor een persoonlijke rondleiding, waarin u de charme en grandeur zelf kunt voelen.
Neem contact op met Jan-Willem Baas, dé makelaar van deze uitzonderlijke woning, of nog beter, uw eigen NVM aankoopmakelaar, en ontdek een leefwereld waar dromen werkelijkheid worden.
Dit meesterlijk ontworpen huis, gebouwd in 2004 en opnieuw onder handen genomen in 2020, met een liefdevolle oog voor detail en met alleen de beste materialen, rust op een royaal perceel van meer dan 2.160 m² en heeft meer dan 400 m2 woonoppervlakte. Hier vindt u niet alleen een thuis, maar een levensstijl vol elegantie en ontspanning.
Bij binnenkomst omarmt de royale hal u met haar lichte sfeer en de uitnodigende vide. Vanuit hier leidt een dubbele deur u naar het hart van het huis: een magnifieke woonkeuken met een adembenemend Taj Mahal marmeren eiland, uitgerust met een PITT cooking systeem en een slim verzonken tv-mechaniek. De warme haard en openslaande deuren openen de ruimte naar de riante tuin, alsof binnen en buiten in perfecte harmonie samensmelten.
Voor uw ontspanning en wellness is er een prachtig inpandig zwembad van ca. 4 x 10 meter, verwarmd met een efficiënte warmtepomp, met openslaande deuren naar een weelderige tuin, waar de dag in rust kan eindigen. Grenzend hieraan ligt een ruime fitnessruimte, waar u met uitzicht op het groen elke dag energie kunt opdoen.
De indeling vervolgt zich op de eerste verdieping met een indrukwekkende masterbedroom, compleet met walk-in closet en een badkamer als een spa, waarin rust en luxe samenvloeien met een ligbad, inloopdouche en airconditioning.
Naast de royale slaapkamers en badkamers, biedt het landhuis praktische luxe met een inpandige garage en een bijzondere driedubbele vrijstaande garage van 60m2, inclusief gastenverblijf van 56m2 – perfect voor vrienden, familie of als inspirerende werkruimte.
De prachtig aangelegde tuin, compleet met sproei-installatie en verwarmd terras, nodigt uit tot eindeloze zomerse avonden onder de sterren, met zachte muziek die door de buitenluidsprekers klinkt.
Ervaar de ultieme balans tussen luxe, ruimte en welzijn in deze complete villa die wacht om uw nieuwe thuis te worden.
Wij nodigen u graag uit voor een persoonlijke rondleiding, waarin u de charme en grandeur zelf kunt voelen.
Neem contact op met Jan-Willem Baas, dé makelaar van deze uitzonderlijke woning, of nog beter, uw eigen NVM aankoopmakelaar, en ontdek een leefwereld waar dromen werkelijkheid worden.
| Vastgoed ID | HN103468 |
|---|---|
| Vraagprijs | € 3.250.000 k.k. |
| Woningtype | Villa |
| Woonopp. | 401 m² |
| Perceelopp. | 2.162 m² |
| Bouwjaar | 2003 |
| Renovatiejaar | - |
| Slaapkamers | 4 |
| Badkamers | 3 |
| Garages | 1 |
| Energielabel | B |
Voorma en Walch Huizen Ceintuurbaan 22, 1271 BJ Huizen
- Telefoon:+31.35.525.31.35
- Email:huizen@voorma-walch.nl
- Website:www.voorma-walch.nl
- Maandag - VrijdagOpen van 08.30 - 17.30
- Zaterdag - ZondagGesloten

















































































