Appartement te koop in ROTTERDAM met referentie 19209243265
Calandstraat 43B, 3016 CA ROTTERDAM—Ref. RM110961
Deze woning is tot in de puntjes afgewerkt: voorzien van een hoogwaardige vloer, strak afgewerkte wanden, een complete keuken, badkamer én gordijnen. Je hoeft alleen nog je meubels mee te nemen.
Op zoek naar een luxe, gloednieuwe woning in een betoverende Rotterdamse wijk? Het transformatieproject The Caland is opgeleverd, dat betekent dat je direct kunt intrekken in een gloednieuwe, stijlvolle studio of appartement. Geen lange wachttijden, wél de kwaliteit en allure van een unieke woonbeleving in het historische Scheepvaartkwartier.
Hier komen moderne elegantie en historische charme samen in een hoogwaardig gerenoveerd wooncomplex. Wat ooit een kantoorpand was, is getransformeerd naar 48 exclusieve appartementen en studio’s, met royale raampartijen voor optimaal lichtinval en een prachtig uitzicht over de stad. De woningen in The Caland zijn ontworpen met een scherp oog voor detail en voorzien van moderne, duurzame voorzieningen.
Wonen op maat: diverse woningtypen
Of je nu op zoek bent naar een compacte studio, een pied-à-terre of een ruim 3- of 4-kamerappartement, The Caland biedt voor iedere wens een passende woning:
• Studio’s en 2-kamerappartementen vanaf ca. 48 m²
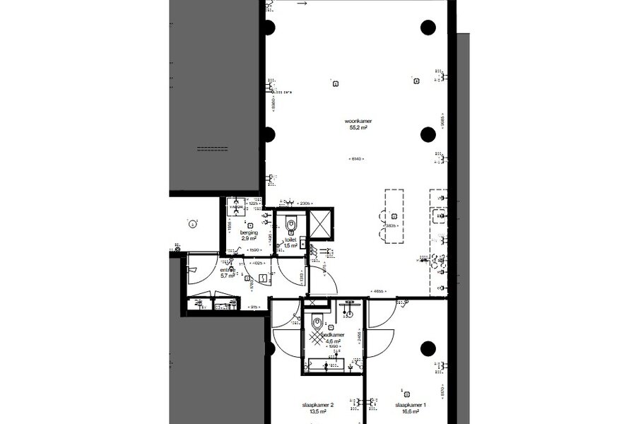
• Ruime 3- en 4-kamerappartementen van 95 m² tot 115 m² met extra voorzieningen zoals een tweede badkamer en royale terrassen
• De exclusieve penthouses op de bovenste verdieping zijn reeds verkocht
Maak van jouw droomwoning een realiteit! Deze transformatie biedt de perfecte mix van geschiedenis en moderniteit, waarbij het beste van beide werelden wordt samengebracht. Beleef het zelf en maak deel uit van deze unieke woongemeenschap in het meest gewilde stukje Rotterdam.
Ontdek The Caland van binnen
Benieuwd hoe uw toekomstige appartement eruit kan zien? Met onze interactieve Matterport-tour wandelt u virtueel door het transformatieproject The Caland. Bekijk de indeling, ervaar de ruimte en ontdek alle beschikbare appartementen van binnen, gewoon vanaf uw eigen scherm. Klik op de virtuele tour onder media en bekijk de woning in 3D.
Bijzonderheden
• Oplevering per direct
• Volledig afgewerkt met een hoogwaardige vloer, strak afgewerkte wanden, een complete keuken, badkamer én gordijnen
• Bouwjaar 1975, transformatie 2024
• Eigen grond
• Energielabel minimaal A++
• Individuele zonnepanelen
• Vloerverwarming
• Inpandige parkeergarage, parkeerplaatsen separaat te koop (koopsom vanaf € 42.500,- v.o.n.)
• Laadvoorzieningen voor elektrische auto’s beschikbaar
• Privé berging in de parkeerkelder
• Collectieve binnentuin
• Lift aanwezig
• Hoge plafonds en grote raampartijen
• Vloerverwarming door de gehele woning
• Volledig afgewerkt met een hoogwaardige vloer, strak afgewerkte wanden, een complete keuken, badkamer én gordijnen
IN COLLEGIALE VERKOOP MET OOMS MAKELAARS
EXTRA NOOT M.B.T. VERKOOP VRIJ OP NAAM
Het uitgangspunt voor de verkoop van de woningen in The Caland is een verkoopprijs op basis van vrij op naam voor eigen bewoning. Indien de woning wordt aangekocht met als doel als pied-à-terre of voor bewoning door (één van) kinderen of als belegging/investering, dan zal het percentage van 10,4% (in plaats van 0% of 2%) overdrachtsbelasting van toepassing zijn. In dit geval zal de koopsom (vrij op naam) verhoogt worden met 7,5% over de gehele koopsom. Voor een verdere toelichting kun je contact opnemen met het verkoopteam.
Op zoek naar een luxe, gloednieuwe woning in een betoverende Rotterdamse wijk? Het transformatieproject The Caland is opgeleverd, dat betekent dat je direct kunt intrekken in een gloednieuwe, stijlvolle studio of appartement. Geen lange wachttijden, wél de kwaliteit en allure van een unieke woonbeleving in het historische Scheepvaartkwartier.
Hier komen moderne elegantie en historische charme samen in een hoogwaardig gerenoveerd wooncomplex. Wat ooit een kantoorpand was, is getransformeerd naar 48 exclusieve appartementen en studio’s, met royale raampartijen voor optimaal lichtinval en een prachtig uitzicht over de stad. De woningen in The Caland zijn ontworpen met een scherp oog voor detail en voorzien van moderne, duurzame voorzieningen.
Wonen op maat: diverse woningtypen
Of je nu op zoek bent naar een compacte studio, een pied-à-terre of een ruim 3- of 4-kamerappartement, The Caland biedt voor iedere wens een passende woning:
• Studio’s en 2-kamerappartementen vanaf ca. 48 m²
• Ruime 3- en 4-kamerappartementen van 95 m² tot 115 m² met extra voorzieningen zoals een tweede badkamer en royale terrassen
• De exclusieve penthouses op de bovenste verdieping zijn reeds verkocht
Maak van jouw droomwoning een realiteit! Deze transformatie biedt de perfecte mix van geschiedenis en moderniteit, waarbij het beste van beide werelden wordt samengebracht. Beleef het zelf en maak deel uit van deze unieke woongemeenschap in het meest gewilde stukje Rotterdam.
Ontdek The Caland van binnen
Benieuwd hoe uw toekomstige appartement eruit kan zien? Met onze interactieve Matterport-tour wandelt u virtueel door het transformatieproject The Caland. Bekijk de indeling, ervaar de ruimte en ontdek alle beschikbare appartementen van binnen, gewoon vanaf uw eigen scherm. Klik op de virtuele tour onder media en bekijk de woning in 3D.
Bijzonderheden
• Oplevering per direct
• Volledig afgewerkt met een hoogwaardige vloer, strak afgewerkte wanden, een complete keuken, badkamer én gordijnen
• Bouwjaar 1975, transformatie 2024
• Eigen grond
• Energielabel minimaal A++
• Individuele zonnepanelen
• Vloerverwarming
• Inpandige parkeergarage, parkeerplaatsen separaat te koop (koopsom vanaf € 42.500,- v.o.n.)
• Laadvoorzieningen voor elektrische auto’s beschikbaar
• Privé berging in de parkeerkelder
• Collectieve binnentuin
• Lift aanwezig
• Hoge plafonds en grote raampartijen
• Vloerverwarming door de gehele woning
• Volledig afgewerkt met een hoogwaardige vloer, strak afgewerkte wanden, een complete keuken, badkamer én gordijnen
IN COLLEGIALE VERKOOP MET OOMS MAKELAARS
EXTRA NOOT M.B.T. VERKOOP VRIJ OP NAAM
Het uitgangspunt voor de verkoop van de woningen in The Caland is een verkoopprijs op basis van vrij op naam voor eigen bewoning. Indien de woning wordt aangekocht met als doel als pied-à-terre of voor bewoning door (één van) kinderen of als belegging/investering, dan zal het percentage van 10,4% (in plaats van 0% of 2%) overdrachtsbelasting van toepassing zijn. In dit geval zal de koopsom (vrij op naam) verhoogt worden met 7,5% over de gehele koopsom. Voor een verdere toelichting kun je contact opnemen met het verkoopteam.
| Vastgoed ID | RM110961 |
|---|---|
| Vraagprijs | € 870.000 v.o.n. |
| Woningtype | Appartement |
| Woonopp. | 105 m² |
| Perceelopp. | - |
| Bouwjaar | 2024 |
| Renovatiejaar | - |
| Slaapkamers | 2 |
| Badkamers | 1 |
| Garages | - |
| Energielabel | A++ |
Baljon Makelaars Straatweg 233, 3054 AH Rotterdam
- Telefoon:+31.010.422.30.00
- Email:info@baljonmakelaars.nl
- Website:www.baljonmakelaars.nl
- Maandag - VrijdagOpen van 08.30 - 17.30
- Zaterdag - ZondagGesloten






















































