Villa te koop in HUIZEN met referentie 19210075405
Van Driellaan 7, 1272 KE HUIZEN—Ref. HN102936
Royale geschakelde villa met aangebouwde dubbelegarage op een perceel van 721 m2 op absolute toplocatie!
Deze ruime en vrijwel vrijstaande villa, is gelegen aan de rand van de geliefde woonomgeving Westereng /Sijsjesberg met op steenworp afstand toegang tot de uitgestrekt bos- en heidegebieden van het Goois Natuurreservaat, Tennis-en Padelvereniging De Kuil en het schitterende openluchtzwembad "De Sijsjesberg". Het karakteristieke “oude dorp” van Huizen en het (winkel)centrum ligt op enkele fietsminuten.
Op loopafstand is er een bushalte met directe verbinding o.a. naar Amsterdam - Amstelstation.
De woning beschikt over een inpandige dubbele garage voorzien van verwarming, elektra, water en elektrische schuifdeur en biedt daarnaast ruim voldoende parkeergelegenheid op eigen terrein. Rondom de woning ligt een fraai aangelegde, tuin.
Begane grond:
Entree, ruime hal met garderobe en vrij hangend toilet met fonteintje, entree naar de aparte werkkamer aan de voorzijde van de woning; ideaal voor thuiswerken.
De royale woonkamer is voorzien van een open gashaard en heeft een mooie lichtinval door de grote raampartijen met aan de voorzijde vrij uitzicht op het bos. De begane grond is voorzien van een plavuizenvloer met vloerverwarming.
De keuken is onder andere voorzien van een granieten aanrechtblad, vaatwasser, oven, magnetron, elektrische kookplaat, afzuigkap, koelkast en vriezer. Vanuit de keuken is er directe toegang tot de inpandige dubbele garage, voorzien van elektrische schuifdeur (met afstandsbediening), een keukenblok, aanrecht met waterkraan, radiator, veel bergruimte en een deur naar de achtertuin.
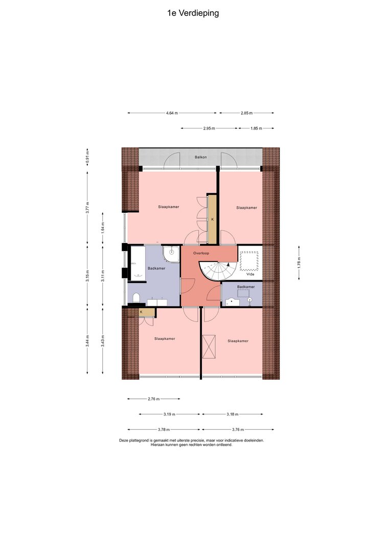
Eerste Verdieping:
Ruimtelijke overloop met fraai zicht op de entree benedenverdieping. Royale hoofdslaapkamer aan de voorzijde met vaste kasten en directe toegang tot de badkamer voorzien van vloerverwarming, dubbel wastafelmeubel, ligbad, toilet en douche. Aan de voorzijde bevindt zich nog een slaap- of hobbykamer. Beide kamers aan de voorzijde hebben direct toegang tot het balkon over de gehele breedte van de woning. Aan de achterzijde zijn twee ruime slaapkamers gelegen, waarvan één met toegang (middels een vlizotrap) tot de royale bergvliering (stahoogte) met twee hang/legkasten. De tweede badkamer is uitgerust met een douche, wastafel en aansluitingen voor wasmachine en droger.
Tuin:
De tuin rondom de woning is fraai aangelegd en is voorzien van een computergestuurde beregeningsinstallatie.
Achter de garage bevindt zich een overkapping voor het opbergen van tuingereedschap e.d.
Dankzij de diepte van de tuin, de uitstekende privacy, het ruime terras en een beschut prieel is er op elk moment van de dag een zonnige plek te vinden om heerlijk te ontspannen.
Bijzonderheden:
• Wonen op ca. 80 m. afstand van het Goois Natuurreservaat
• Woonoppervlakte van 165m2 en 41m2 inpandige dubbele garage.
• 4 slaapkamers, 2 badkamers
• Perceeloppervlakte 721m2
• Veel privacy en uitstekende parkeermogelijkheden op eigen terrein.
Deze goed onderhouden en complete villa en ideale ruime gezinswoning, ligt op een schitterende locatie en is daardoor de moeite van uw bezichtiging meer dan waard!
Bel voor meer informatie de makelaar Jan-Willem Baas of nog beter uw eigen NVM aankoopmakelaar.
Deze ruime en vrijwel vrijstaande villa, is gelegen aan de rand van de geliefde woonomgeving Westereng /Sijsjesberg met op steenworp afstand toegang tot de uitgestrekt bos- en heidegebieden van het Goois Natuurreservaat, Tennis-en Padelvereniging De Kuil en het schitterende openluchtzwembad "De Sijsjesberg". Het karakteristieke “oude dorp” van Huizen en het (winkel)centrum ligt op enkele fietsminuten.
Op loopafstand is er een bushalte met directe verbinding o.a. naar Amsterdam - Amstelstation.
De woning beschikt over een inpandige dubbele garage voorzien van verwarming, elektra, water en elektrische schuifdeur en biedt daarnaast ruim voldoende parkeergelegenheid op eigen terrein. Rondom de woning ligt een fraai aangelegde, tuin.
Begane grond:
Entree, ruime hal met garderobe en vrij hangend toilet met fonteintje, entree naar de aparte werkkamer aan de voorzijde van de woning; ideaal voor thuiswerken.
De royale woonkamer is voorzien van een open gashaard en heeft een mooie lichtinval door de grote raampartijen met aan de voorzijde vrij uitzicht op het bos. De begane grond is voorzien van een plavuizenvloer met vloerverwarming.
De keuken is onder andere voorzien van een granieten aanrechtblad, vaatwasser, oven, magnetron, elektrische kookplaat, afzuigkap, koelkast en vriezer. Vanuit de keuken is er directe toegang tot de inpandige dubbele garage, voorzien van elektrische schuifdeur (met afstandsbediening), een keukenblok, aanrecht met waterkraan, radiator, veel bergruimte en een deur naar de achtertuin.
Eerste Verdieping:
Ruimtelijke overloop met fraai zicht op de entree benedenverdieping. Royale hoofdslaapkamer aan de voorzijde met vaste kasten en directe toegang tot de badkamer voorzien van vloerverwarming, dubbel wastafelmeubel, ligbad, toilet en douche. Aan de voorzijde bevindt zich nog een slaap- of hobbykamer. Beide kamers aan de voorzijde hebben direct toegang tot het balkon over de gehele breedte van de woning. Aan de achterzijde zijn twee ruime slaapkamers gelegen, waarvan één met toegang (middels een vlizotrap) tot de royale bergvliering (stahoogte) met twee hang/legkasten. De tweede badkamer is uitgerust met een douche, wastafel en aansluitingen voor wasmachine en droger.
Tuin:
De tuin rondom de woning is fraai aangelegd en is voorzien van een computergestuurde beregeningsinstallatie.
Achter de garage bevindt zich een overkapping voor het opbergen van tuingereedschap e.d.
Dankzij de diepte van de tuin, de uitstekende privacy, het ruime terras en een beschut prieel is er op elk moment van de dag een zonnige plek te vinden om heerlijk te ontspannen.
Bijzonderheden:
• Wonen op ca. 80 m. afstand van het Goois Natuurreservaat
• Woonoppervlakte van 165m2 en 41m2 inpandige dubbele garage.
• 4 slaapkamers, 2 badkamers
• Perceeloppervlakte 721m2
• Veel privacy en uitstekende parkeermogelijkheden op eigen terrein.
Deze goed onderhouden en complete villa en ideale ruime gezinswoning, ligt op een schitterende locatie en is daardoor de moeite van uw bezichtiging meer dan waard!
Bel voor meer informatie de makelaar Jan-Willem Baas of nog beter uw eigen NVM aankoopmakelaar.
| Vastgoed ID | HN102936 |
|---|---|
| Vraagprijs | € 1.375.000 k.k. |
| Woningtype | Villa |
| Woonopp. | 165 m² |
| Perceelopp. | 721 m² |
| Bouwjaar | 1987 |
| Renovatiejaar | - |
| Slaapkamers | 4 |
| Badkamers | 2 |
| Garages | 1 |
| Energielabel | C |
Voorma en Walch Huizen Ceintuurbaan 22, 1271 BJ Huizen
- Telefoon:+31.35.525.31.35
- Email:huizen@voorma-walch.nl
- Website:www.voorma-walch.nl
- Maandag - VrijdagOpen van 08.30 - 17.30
- Zaterdag - ZondagGesloten










































