Villa te koop in EEMNES met referentie 19308381392
Meentweg 111, 3755 PD EEMNES—Ref. BM100565
Op een prachtig perceel, op de meest rustige vrije, unieke en idyllische locatie van de Meentweg gelegen moderne ecologische vrijstaande woning van hout. Deze circulaire duurzame woning, ontworpen door ORGA architecten is onder andere voorzien van een zwembad met jetstream (2022), garage, atelier, hooischuur en carport. Vanuit de woning is een blijvend weids uitzicht op natuur, stiltegebied en polderlandschap. Door de vrije ligging geniet u hier van zowel de zons op- als ondergang. Midden in de polder genieten van de rust en ruimte die Eemnes te bieden heeft, terwijl het bruisende Laren en het pittoreske Blaricum op zeer korte afstand liggen.
Indeling:
Begane grond:
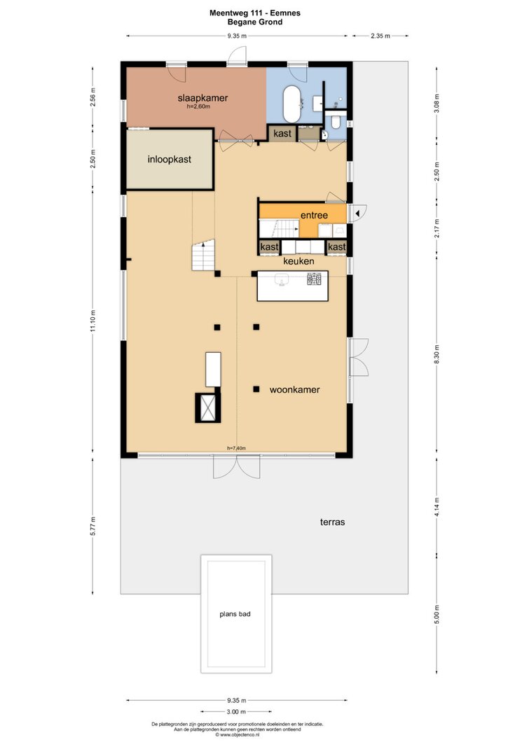
Zij-entree met toilet en garderobe. Bijkeuken met opstelling wasmachine/droger, bergkast en luik met trap naar de kelder. Riante open living met zitgedeelte, open haard en openslaande deuren naar de achtertuin, eetgedeelte met openslaande deuren naar de zijtuin. De moderne lichte open keuken is voorzien van diverse inbouwapparatuur waaronder een Quooker kraan.
De master bedroom met royale inloopkast en moderne open badkamer voorzien van ligbad, wastafel en inloopdouche bevindt zich aan de voorzijde van de woning en is op de ochtendzon georiënteerd.
Door het gebruik van de robuuste spanten en natuurlijke materialen ademt de woning de sfeer uit van een woonboerderij. De betonnen vloer is voorzien van comfortabele lage temperatuur vloerverwarming
Eerste verdieping:
Riante overloop met werkplek en toegang tot berging en opstelling zonneboiler. Royale tweede slaapkamer en tweede moderne badkamer met inloopdouche, wastafel en toilet. Vanaf de royale vide kan genoten worden van het weidse uitzicht aan de achterzijde van de woning.
Bijgebouw:
Achterop het perceel staat de voormalige hooischuur, in het midden is een container geplaatst welke thans in gebruik is als atelier. De linkerzijde van de overkapping is ingericht als garage voor twee auto’s, aan de rechterzijde een gezellige veranda met een prachtig weids uitzicht op tuin en de omliggende weilanden.
Tuin:
De verzorgde tuin rondom bestaat uit weiland met aan de achterzijde een drinkpoel voor paarden, een moestuin, diverse terrassen, zwembad (5x3) en een carport.
Bijzonderheden:
De woning heeft thans twee slaapkamers, er is voldoende ruimte om op een eenvoudige wijze nog twee slaapkamers te realiseren met het behoudt van de doorkijk naar de begane grond.
De houten woning is volledig duurzaam gebouwd, de vorm is geïnspireerd door de voormalige woonboerderij die zich op het perceel bevond.
Kenmerkend zijn de zichtbaar gebleven massieve houten balken en de zware ijzeren knooppunten welke het interieur een robuuste uitstraling geven. De houten spanten zijn gemaakt van speciaal uit Nederland afkomstig hout van Staatsbosbeheer.
Kenmerken:
• Circulaire duurzame woning
• Gelegen op een unieke vrije locatie met permanent vrij zicht (aangrenzende percelen mogen niet bebouwd worden)
• Gebruiksoppervlak wonen 202 m² exclusief de kelder van 35 m²
• Perceeloppervlak 12.905 m²
• Energielabel A
• Zonneboiler
• Twee slaapkamers en twee badkamers
• Vrijstaand bijgebouw / atelier van 81 m²
• Zwembad (5x3) met jetstream
• Uitermate geschikt voor het houden van paarden
Voor een rondleiding door deze charmante woning kunt u contact opnemen met Aldert Froma, NVM Makelaar en Joost Wester, NVM Register Makelaar van ons makelaarskantoor in Blaricum. Nog beter is om uw eigen NVM makelaar mee te nemen.
Indeling:
Begane grond:
Zij-entree met toilet en garderobe. Bijkeuken met opstelling wasmachine/droger, bergkast en luik met trap naar de kelder. Riante open living met zitgedeelte, open haard en openslaande deuren naar de achtertuin, eetgedeelte met openslaande deuren naar de zijtuin. De moderne lichte open keuken is voorzien van diverse inbouwapparatuur waaronder een Quooker kraan.
De master bedroom met royale inloopkast en moderne open badkamer voorzien van ligbad, wastafel en inloopdouche bevindt zich aan de voorzijde van de woning en is op de ochtendzon georiënteerd.
Door het gebruik van de robuuste spanten en natuurlijke materialen ademt de woning de sfeer uit van een woonboerderij. De betonnen vloer is voorzien van comfortabele lage temperatuur vloerverwarming
Eerste verdieping:
Riante overloop met werkplek en toegang tot berging en opstelling zonneboiler. Royale tweede slaapkamer en tweede moderne badkamer met inloopdouche, wastafel en toilet. Vanaf de royale vide kan genoten worden van het weidse uitzicht aan de achterzijde van de woning.
Bijgebouw:
Achterop het perceel staat de voormalige hooischuur, in het midden is een container geplaatst welke thans in gebruik is als atelier. De linkerzijde van de overkapping is ingericht als garage voor twee auto’s, aan de rechterzijde een gezellige veranda met een prachtig weids uitzicht op tuin en de omliggende weilanden.
Tuin:
De verzorgde tuin rondom bestaat uit weiland met aan de achterzijde een drinkpoel voor paarden, een moestuin, diverse terrassen, zwembad (5x3) en een carport.
Bijzonderheden:
De woning heeft thans twee slaapkamers, er is voldoende ruimte om op een eenvoudige wijze nog twee slaapkamers te realiseren met het behoudt van de doorkijk naar de begane grond.
De houten woning is volledig duurzaam gebouwd, de vorm is geïnspireerd door de voormalige woonboerderij die zich op het perceel bevond.
Kenmerkend zijn de zichtbaar gebleven massieve houten balken en de zware ijzeren knooppunten welke het interieur een robuuste uitstraling geven. De houten spanten zijn gemaakt van speciaal uit Nederland afkomstig hout van Staatsbosbeheer.
Kenmerken:
• Circulaire duurzame woning
• Gelegen op een unieke vrije locatie met permanent vrij zicht (aangrenzende percelen mogen niet bebouwd worden)
• Gebruiksoppervlak wonen 202 m² exclusief de kelder van 35 m²
• Perceeloppervlak 12.905 m²
• Energielabel A
• Zonneboiler
• Twee slaapkamers en twee badkamers
• Vrijstaand bijgebouw / atelier van 81 m²
• Zwembad (5x3) met jetstream
• Uitermate geschikt voor het houden van paarden
Voor een rondleiding door deze charmante woning kunt u contact opnemen met Aldert Froma, NVM Makelaar en Joost Wester, NVM Register Makelaar van ons makelaarskantoor in Blaricum. Nog beter is om uw eigen NVM makelaar mee te nemen.
| Vastgoed ID | BM100565 |
|---|---|
| Vraagprijs | € 2.285.000 k.k. |
| Woningtype | Villa |
| Woonopp. | 202 m² |
| Perceelopp. | 12.905 m² |
| Bouwjaar | 2016 |
| Renovatiejaar | - |
| Slaapkamers | 2 |
| Badkamers | 2 |
| Garages | 1 |
| Energielabel | A |
Voorma en Walch Blaricum Torenlaan 12 D, 1261 GD Blaricum
- Telefoon:+31.35.531.53.00
- Email:blaricum@voorma-walch.nl
- Website:voorma-walch.nl
- Maandag - VrijdagOpen van 08.30 - 17.30
- Zaterdag Open van 10.00 - 16.00
- Zondag Gesloten

























