Villa te koop in SCHIMMERT met referentie 19310543539
Langstraat 20, 6333 CE SCHIMMERT—Ref. NT100936
Bent u op zoek naar een vrijstaande woning met veel leefruimte, 5 slaapkamers, 4 badkamers, de mogelijkheid om een beroep aan huis uit te oefenen en een gastenverblijf in combinatie met een vrije ligging? Deze woning biedt het allemaal — en meer! Gelegen op een prachtige locatie in een rustige woonomgeving, geniet u hier dagelijks van comfort, rust en een schitterend vrij uitzicht aan de achterzijde.
Kom langs en laat u verrassen door deze unieke woning!
INDELING
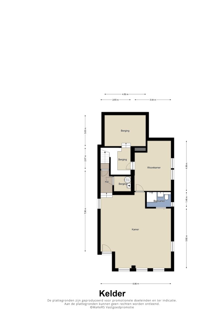
Kelder
de kelder is zowel inpandig als vanuit het straatbeeld bereikbaar. Deze verdieping is opgedeeld in 3 ruimten, wel te verstaan:
- de bergruimte
- een kantoor-/hobbyruimte
- een multifunctionele ruimte welke momenteel in gebruik is als fitnessruimte. Hier is tevens een badkamer terug tevinden welke is ingericht met een douche, een wastafel en een toilet.
Begane grond
de hal/entree met meterkast (slimme meter, 10 groepen, 3x aardlek en krachtstroom) en toilet biedt toegang tot het woongedeelte.
De woonkamer is daglicht-rijk te noemen en staat door de openslaande tuindeuren in direct contact met de achtertuin. Door het L-vormige karakter is het zitgedeelte aan de voorzijde van de woning gesitueerd.
De keuken is achter de woonkamer gelegen en ingedeeld met een keukeninstallatie welke in een hoek is opgesteld. De aanwezige inbouwapparatuur zijn een afzuiging, een inductie kookplaat, een oven, een magnetron en een vaatwasser.
De keuken is uitgebreid door de voormalige garage bij de ruimte te trekken. Door deze extra ruimte is het mogelijk om een grotere eettafel in de keuken te plaatsen. Vanuit deze ruimte is de bovengelegen zolder bereikbaar welke prima kan fungeren als opslag, hobbykamer of kantoor. Ook de bijkeuken is middels de eetkamer bereikbaar. Deze ruimte is naast de aansluitpunten voor het witgoed uitgerust met vaste kastenwanden en een keukenblok. Kortom een ideale ruimte om alles op orde te krijgen voor grotere gezinnen. Tevens is de achtertuin direct bereikbaar door de aanwezige buitendeur.
Eerste verdieping
de ruime overloop biedt toegang tot 3 slaapkamers en een badkamer, respectievelijk groot:
- slaapkamer 1: x m, gelegen aan de voorzijde van de woning
- slaapkamer 2: x m, gelegen aan de voorzijde van de woning
- slaapkamer 3: x m, gelegen aan de achterzijde van de woning
- geheel betegeld badkamer welke is ingedeeld met een ligbad, een douchecabine, een dubbele wastafel verwerkt in een meubel, een spiegelkast en een toilet
De gehele zolderverdieping is (m.u.v. badkamer) afgewerkt met een laminaatvloer.
Zolder
de ruime overloop biedt toegang tot 2 slaapkamer en een badkamer, respectievelijk groot:
- slaapkamer 4: x m, gelegen aan de voorzijde van de woning
- slaapkamer 5: x m, met een dakkapel en gelegen aan de achterzijde van de woning
- geheel betegelde badkamer welke is ingedeeld met een ligbad, een douchecabine, een dubbele wastafel verwerkt in een meubel, een spiegelkast, een design radiator, een toilet en een bidet
De gehele zolderverdieping is (m.u.v. badkamer) afgewerkt met een laminaatvloer.
Buitenverblijf
het buitenverblijf is sfeervol te noemen door de zichtbare houten dakconstructie. Er is vanuit het leefgedeelte een prachtig uitzicht over de achtertuin en de achtergelegen landerijen. Door de aanwezigheid van de extra verdieping en sanitair bestaat de mogelijkheid om er echt te verblijven in het buitenverblijf. Er is tevens bergruimte aanwezig om tuingereedschap e.d. te kunnen stallen.
Buiten
het pand beschikt over een ruime oprit welke deels is uitgerust met een carport. Ook voor de kelder bestaat de mogelijkheid om te parkeren. De achtertuin is ingedeeld met een riant terras en gazon. De kracht van de achtertuin is terug te vinden in een uniek uitzicht. Dankzij de vrije ligging aan de achterzijde geniet men hier dagelijks van rust en een weids uitzicht.
BIJZONDERHEDEN
– het pand is gelegen op een mooie- en rustige locatie
– het pand is v.v. een gastenverblijf
– het pand kent veel lichtinval wat het tot een fijne en lichte plek maakt om te wonen
– het pand wordt gekenmerkt door de vrije ligging aan de achterzijde
– het pand is gelegen op een perceel met een oppervlakte van 3.085m2
– het pand is v.v. een woonoppervlakte van ca. 415m2
– het pand is voorzien van betonnen verdiepingsvloeren
– het pand is uitgerust met kunststof kozijnen met HR++ beglazing voor optimale isolatie en een lager energieverbruik
– het pand is geschikt voor een huisgebonden beroep
– Cv-installatie, merk: Nefit Remeha, bj. 2018 (eigendom)
INTERESSE? MAAK DAN EEN AFSPRAAK MET FYN MAKELAARDIJ VOOR EEN BEZICHTIGING.
– Uitdrukkelijk wordt gesteld dat een koopovereenkomst met betrekking tot deze onroerende zaak eerst dan tot stand is gekomen nadat alle partijen de koopovereenkomst hebben getekend, de zogenaamde “schriftelijkheidsvereiste” is in dezen van toepassing.
– De waarborgsom/bankgarantie bedraagt 10% van de koopsom en is een uitdrukkelijk onderdeel van de koopovereenkomst. De koper dient deze binnen 3 dagen ná het vervallen van de eventuele ontbindende voorwaarden bij de transporterende notaris te deponeren.
– Koper is gerechtigd voor zijn rekening een bouwkundige keuring te (laten) verrichten, dan wel adviseurs te raadplegen teneinde een goed inzicht te verkrijgen over de staat en het gebruik van deze onroerende zaak.
– Voor het optimaal behartigen van diens belangen adviseert Wagemans Wonen geïnteresseerden en kopers om een professionele aankoopmakelaar in te schakelen.
– De Meetinstructie is gebaseerd op de NEN2580. De Meetinstructie is bedoeld om een meer eenduidige manier van meten toe te passen voor het geven van een indicatie van de gebruiksoppervlakte. De Meetinstructie sluit verschillen in meetuitkomsten niet volledig uit, door bijvoorbeeld interpretatieverschillen, afrondingen of beperkingen bij het uitvoeren van de meting.
Kom langs en laat u verrassen door deze unieke woning!
INDELING
Kelder
de kelder is zowel inpandig als vanuit het straatbeeld bereikbaar. Deze verdieping is opgedeeld in 3 ruimten, wel te verstaan:
- de bergruimte
- een kantoor-/hobbyruimte
- een multifunctionele ruimte welke momenteel in gebruik is als fitnessruimte. Hier is tevens een badkamer terug tevinden welke is ingericht met een douche, een wastafel en een toilet.
Begane grond
de hal/entree met meterkast (slimme meter, 10 groepen, 3x aardlek en krachtstroom) en toilet biedt toegang tot het woongedeelte.
De woonkamer is daglicht-rijk te noemen en staat door de openslaande tuindeuren in direct contact met de achtertuin. Door het L-vormige karakter is het zitgedeelte aan de voorzijde van de woning gesitueerd.
De keuken is achter de woonkamer gelegen en ingedeeld met een keukeninstallatie welke in een hoek is opgesteld. De aanwezige inbouwapparatuur zijn een afzuiging, een inductie kookplaat, een oven, een magnetron en een vaatwasser.
De keuken is uitgebreid door de voormalige garage bij de ruimte te trekken. Door deze extra ruimte is het mogelijk om een grotere eettafel in de keuken te plaatsen. Vanuit deze ruimte is de bovengelegen zolder bereikbaar welke prima kan fungeren als opslag, hobbykamer of kantoor. Ook de bijkeuken is middels de eetkamer bereikbaar. Deze ruimte is naast de aansluitpunten voor het witgoed uitgerust met vaste kastenwanden en een keukenblok. Kortom een ideale ruimte om alles op orde te krijgen voor grotere gezinnen. Tevens is de achtertuin direct bereikbaar door de aanwezige buitendeur.
Eerste verdieping
de ruime overloop biedt toegang tot 3 slaapkamers en een badkamer, respectievelijk groot:
- slaapkamer 1: x m, gelegen aan de voorzijde van de woning
- slaapkamer 2: x m, gelegen aan de voorzijde van de woning
- slaapkamer 3: x m, gelegen aan de achterzijde van de woning
- geheel betegeld badkamer welke is ingedeeld met een ligbad, een douchecabine, een dubbele wastafel verwerkt in een meubel, een spiegelkast en een toilet
De gehele zolderverdieping is (m.u.v. badkamer) afgewerkt met een laminaatvloer.
Zolder
de ruime overloop biedt toegang tot 2 slaapkamer en een badkamer, respectievelijk groot:
- slaapkamer 4: x m, gelegen aan de voorzijde van de woning
- slaapkamer 5: x m, met een dakkapel en gelegen aan de achterzijde van de woning
- geheel betegelde badkamer welke is ingedeeld met een ligbad, een douchecabine, een dubbele wastafel verwerkt in een meubel, een spiegelkast, een design radiator, een toilet en een bidet
De gehele zolderverdieping is (m.u.v. badkamer) afgewerkt met een laminaatvloer.
Buitenverblijf
het buitenverblijf is sfeervol te noemen door de zichtbare houten dakconstructie. Er is vanuit het leefgedeelte een prachtig uitzicht over de achtertuin en de achtergelegen landerijen. Door de aanwezigheid van de extra verdieping en sanitair bestaat de mogelijkheid om er echt te verblijven in het buitenverblijf. Er is tevens bergruimte aanwezig om tuingereedschap e.d. te kunnen stallen.
Buiten
het pand beschikt over een ruime oprit welke deels is uitgerust met een carport. Ook voor de kelder bestaat de mogelijkheid om te parkeren. De achtertuin is ingedeeld met een riant terras en gazon. De kracht van de achtertuin is terug te vinden in een uniek uitzicht. Dankzij de vrije ligging aan de achterzijde geniet men hier dagelijks van rust en een weids uitzicht.
BIJZONDERHEDEN
– het pand is gelegen op een mooie- en rustige locatie
– het pand is v.v. een gastenverblijf
– het pand kent veel lichtinval wat het tot een fijne en lichte plek maakt om te wonen
– het pand wordt gekenmerkt door de vrije ligging aan de achterzijde
– het pand is gelegen op een perceel met een oppervlakte van 3.085m2
– het pand is v.v. een woonoppervlakte van ca. 415m2
– het pand is voorzien van betonnen verdiepingsvloeren
– het pand is uitgerust met kunststof kozijnen met HR++ beglazing voor optimale isolatie en een lager energieverbruik
– het pand is geschikt voor een huisgebonden beroep
– Cv-installatie, merk: Nefit Remeha, bj. 2018 (eigendom)
INTERESSE? MAAK DAN EEN AFSPRAAK MET FYN MAKELAARDIJ VOOR EEN BEZICHTIGING.
– Uitdrukkelijk wordt gesteld dat een koopovereenkomst met betrekking tot deze onroerende zaak eerst dan tot stand is gekomen nadat alle partijen de koopovereenkomst hebben getekend, de zogenaamde “schriftelijkheidsvereiste” is in dezen van toepassing.
– De waarborgsom/bankgarantie bedraagt 10% van de koopsom en is een uitdrukkelijk onderdeel van de koopovereenkomst. De koper dient deze binnen 3 dagen ná het vervallen van de eventuele ontbindende voorwaarden bij de transporterende notaris te deponeren.
– Koper is gerechtigd voor zijn rekening een bouwkundige keuring te (laten) verrichten, dan wel adviseurs te raadplegen teneinde een goed inzicht te verkrijgen over de staat en het gebruik van deze onroerende zaak.
– Voor het optimaal behartigen van diens belangen adviseert Wagemans Wonen geïnteresseerden en kopers om een professionele aankoopmakelaar in te schakelen.
– De Meetinstructie is gebaseerd op de NEN2580. De Meetinstructie is bedoeld om een meer eenduidige manier van meten toe te passen voor het geven van een indicatie van de gebruiksoppervlakte. De Meetinstructie sluit verschillen in meetuitkomsten niet volledig uit, door bijvoorbeeld interpretatieverschillen, afrondingen of beperkingen bij het uitvoeren van de meting.
| Vastgoed ID | NT100936 |
|---|---|
| Vraagprijs | € 750.000 k.k. |
| Woningtype | Villa |
| Woonopp. | 416 m² |
| Perceelopp. | 3.085 m² |
| Bouwjaar | 1979 |
| Renovatiejaar | - |
| Slaapkamers | 5 |
| Badkamers | 3 |
| Garages | - |
| Energielabel | C |
FYN Makelaardij Rijksweg Noord 61, 6131 CJ Sittard
- Telefoon:+31.046.850.76.73
- Email:info@fynmakelaardij.nl
- Website:www.fynmakelaardij.nl
- Maandag - VrijdagOpen van 09.00 - 17.00
- Zaterdag - ZondagGesloten














































































