Villa te koop in LAREN met referentie 19310714051
Zevenenderdrift 54, 1251 RD LAREN—Ref. LN102185
Karaktervolle helft van dubbele villa op toplocatie – het ideale canvas voor uw droomwoning!
Aan de geliefde Zevenenderdrift in Laren staat deze charmante helft van een dubbele villa. Met zijn authentieke details, ruimte en uitstekende ligging vormt deze woning het perfecte uitgangspunt om geheel naar eigen wens uw droomhuis te realiseren.
INDELING
Begane grond:
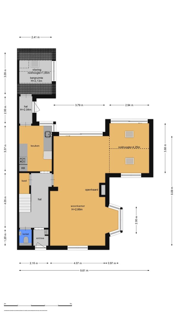
Via de entree aan de voorzijde betreedt u een ruime hal met garderoberuimte en separaat toilet. De hal biedt toegang tot zowel de trapopgang als de woonkamer en staat in verbinding met een praktische tussenhal met trapkast.
De royale woonkamer met een indrukwekkende nokhoogte van ca. 2,9 meter is speels ingedeeld en wordt gekenmerkt door grote raampartijen rondom en een sfeervolle open haard als centraal element. Aan de voorzijde zorgt een fraaie erker voor extra lichtinval en uitzicht op de straat. Aan de tuinzijde is een extra zit- of werkhoek gecreëerd, voorzien van twee dakramen en een verhoogde nok van maar liefst ca. 4,3 meter, hetgeen het ruimtelijke gevoel versterkt. Grenzend aan de woonkamer bevindt zich de keuken. Deze is compact maar functioneel ingericht, met ruimte voor apparatuur en een koel-/vriesopstelling. Vanuit de keuken is er toegang tot een kleine hal die leidt naar een achtergelegen bij- of bergruimte. Deze ruimte kan uitstekend dienen als opslag, wasruimte of praktische werkplek.
Eerste verdieping:
Via de trap bereikt u de overloop, die toegang biedt tot drie volwaardige slaapkamers en de badkamer. De kamers variëren in afmeting en zijn flexibel in te richten als slaap-, werk- of kinderkamer. De grootste slaapkamer, gelegen aan de achterzijde, beschikt over een royale nokhoogte en biedt volop ruimte voor een tweepersoonsbed en garderobekast.
Aan de voorzijde bevinden zich twee sfeervolle slaapkamers met prettige lichtinval en zicht op de omgeving. Eén van deze kamers is voorzien van een vaste kast. Centraal op de overloop is een praktische vlizotrapopgang naar de vliering, ideaal voor extra opbergruimte. De badkamer is modern uitgerust met een douche, wastafelmeubel en toilet. Dankzij het raam is er daglicht en natuurlijke ventilatie aanwezig.
OMGEVING & BEREIKBAARHEID
Midden in het schilderachtige Laren ligt deze villa, welke een bijzonder wooncomfort biedt. De ligging verenigt de rust van een dorpse sfeer met de dynamiek van een levendig centrum. Op korte loopafstand vindt u een gevarieerd aanbod aan winkels, charmante cafés en hoogwaardige restaurants, waardoor het dagelijks leven zowel gemakkelijk als aangenaam is. Laren geniet een uitstekende reputatie dankzij zijn culturele traditie en groene omgeving. Het nabijgelegen Singer Laren, met zowel een museum als een theater, organiseert tal van kunst- en cultuuractiviteiten. Bovendien lenen de omliggende natuurgebieden zich perfect voor ontspannen wandel- en fietstochten, ideaal voor iedereen die van buitenleven houdt.
Ook de bereikbaarheid van Zevenenderdrift 54 is uitstekend. Met de auto bereikt u in enkele minuten de snelwegen A1 en A27, die directe verbindingen bieden met steden als Amsterdam en Utrecht. Het openbaar vervoer is eveneens goed geregeld: de dichtstbijzijnde bushalte ligt op slechts 100 meter afstand, waardoor omliggende plaatsen gemakkelijk bereikbaar zijn.
KENMERKEN
- Gelegen op loopafstand van het bruisende centrum van Laren
- Gebruiksoppervlakte wonen ca. 109 m² (NEN-2580 meetrapport beschikbaar)
- Ruime en groene achtertuin gelegen op het zuidwesten
- Parkeren op eigen terrein
- Drie slaapkamers en één badkamer
- De woning dient te worden aangepast aan de eisen van deze tijd
- Bouwjaar 1933
- Energielabel F
- Verkoop onder voorbehoud gunning verkoper
- Niet zelfbewoningsclausule en ouderdomsclausule van toepassing
Voor een rondleiding door deze helft van een dubbel in het centrum van Laren kunt u contact opnemen met Bart H.A.M. Lammerts, NVM Makelaar en/ of Aldert J. Froma, NVM Makelaar van ons makelaarskantoor Laren. Nog beter is om uw eigen NVM makelaar mee te nemen.
Deze informatie is door ons met de nodige zorgvuldigheid samengesteld. Onzerzijds wordt echter geen enkele aansprakelijkheid aanvaard voor enige onvolledigheid, onjuistheid of anderszins, dan wel de gevolgen daarvan. Alle opgegeven maten en oppervlakten zijn indicatief. Koper heeft zijn eigen onderzoek plicht naar alle zaken die voor hem of haar van belang zijn. Met betrekking tot deze woning is de makelaar adviseur van verkoper. Wij adviseren u een deskundige (NVM-)makelaar in te schakelen die u begeleidt bij het aankoopproces. Indien u specifieke wensen heeft omtrent de woning, adviseren wij u deze tijdig kenbaar te maken aan uw aankopend makelaar en hiernaar zelfstandig onderzoek te (laten) doen. Indien u geen deskundige vertegenwoordiger inschakelt, acht u zich volgens de wet deskundige genoeg om alle zaken die van belang zijn te kunnen overzien. Van toepassing zijn de NVM voorwaarden.
Aan de geliefde Zevenenderdrift in Laren staat deze charmante helft van een dubbele villa. Met zijn authentieke details, ruimte en uitstekende ligging vormt deze woning het perfecte uitgangspunt om geheel naar eigen wens uw droomhuis te realiseren.
INDELING
Begane grond:
Via de entree aan de voorzijde betreedt u een ruime hal met garderoberuimte en separaat toilet. De hal biedt toegang tot zowel de trapopgang als de woonkamer en staat in verbinding met een praktische tussenhal met trapkast.
De royale woonkamer met een indrukwekkende nokhoogte van ca. 2,9 meter is speels ingedeeld en wordt gekenmerkt door grote raampartijen rondom en een sfeervolle open haard als centraal element. Aan de voorzijde zorgt een fraaie erker voor extra lichtinval en uitzicht op de straat. Aan de tuinzijde is een extra zit- of werkhoek gecreëerd, voorzien van twee dakramen en een verhoogde nok van maar liefst ca. 4,3 meter, hetgeen het ruimtelijke gevoel versterkt. Grenzend aan de woonkamer bevindt zich de keuken. Deze is compact maar functioneel ingericht, met ruimte voor apparatuur en een koel-/vriesopstelling. Vanuit de keuken is er toegang tot een kleine hal die leidt naar een achtergelegen bij- of bergruimte. Deze ruimte kan uitstekend dienen als opslag, wasruimte of praktische werkplek.
Eerste verdieping:
Via de trap bereikt u de overloop, die toegang biedt tot drie volwaardige slaapkamers en de badkamer. De kamers variëren in afmeting en zijn flexibel in te richten als slaap-, werk- of kinderkamer. De grootste slaapkamer, gelegen aan de achterzijde, beschikt over een royale nokhoogte en biedt volop ruimte voor een tweepersoonsbed en garderobekast.
Aan de voorzijde bevinden zich twee sfeervolle slaapkamers met prettige lichtinval en zicht op de omgeving. Eén van deze kamers is voorzien van een vaste kast. Centraal op de overloop is een praktische vlizotrapopgang naar de vliering, ideaal voor extra opbergruimte. De badkamer is modern uitgerust met een douche, wastafelmeubel en toilet. Dankzij het raam is er daglicht en natuurlijke ventilatie aanwezig.
OMGEVING & BEREIKBAARHEID
Midden in het schilderachtige Laren ligt deze villa, welke een bijzonder wooncomfort biedt. De ligging verenigt de rust van een dorpse sfeer met de dynamiek van een levendig centrum. Op korte loopafstand vindt u een gevarieerd aanbod aan winkels, charmante cafés en hoogwaardige restaurants, waardoor het dagelijks leven zowel gemakkelijk als aangenaam is. Laren geniet een uitstekende reputatie dankzij zijn culturele traditie en groene omgeving. Het nabijgelegen Singer Laren, met zowel een museum als een theater, organiseert tal van kunst- en cultuuractiviteiten. Bovendien lenen de omliggende natuurgebieden zich perfect voor ontspannen wandel- en fietstochten, ideaal voor iedereen die van buitenleven houdt.
Ook de bereikbaarheid van Zevenenderdrift 54 is uitstekend. Met de auto bereikt u in enkele minuten de snelwegen A1 en A27, die directe verbindingen bieden met steden als Amsterdam en Utrecht. Het openbaar vervoer is eveneens goed geregeld: de dichtstbijzijnde bushalte ligt op slechts 100 meter afstand, waardoor omliggende plaatsen gemakkelijk bereikbaar zijn.
KENMERKEN
- Gelegen op loopafstand van het bruisende centrum van Laren
- Gebruiksoppervlakte wonen ca. 109 m² (NEN-2580 meetrapport beschikbaar)
- Ruime en groene achtertuin gelegen op het zuidwesten
- Parkeren op eigen terrein
- Drie slaapkamers en één badkamer
- De woning dient te worden aangepast aan de eisen van deze tijd
- Bouwjaar 1933
- Energielabel F
- Verkoop onder voorbehoud gunning verkoper
- Niet zelfbewoningsclausule en ouderdomsclausule van toepassing
Voor een rondleiding door deze helft van een dubbel in het centrum van Laren kunt u contact opnemen met Bart H.A.M. Lammerts, NVM Makelaar en/ of Aldert J. Froma, NVM Makelaar van ons makelaarskantoor Laren. Nog beter is om uw eigen NVM makelaar mee te nemen.
Deze informatie is door ons met de nodige zorgvuldigheid samengesteld. Onzerzijds wordt echter geen enkele aansprakelijkheid aanvaard voor enige onvolledigheid, onjuistheid of anderszins, dan wel de gevolgen daarvan. Alle opgegeven maten en oppervlakten zijn indicatief. Koper heeft zijn eigen onderzoek plicht naar alle zaken die voor hem of haar van belang zijn. Met betrekking tot deze woning is de makelaar adviseur van verkoper. Wij adviseren u een deskundige (NVM-)makelaar in te schakelen die u begeleidt bij het aankoopproces. Indien u specifieke wensen heeft omtrent de woning, adviseren wij u deze tijdig kenbaar te maken aan uw aankopend makelaar en hiernaar zelfstandig onderzoek te (laten) doen. Indien u geen deskundige vertegenwoordiger inschakelt, acht u zich volgens de wet deskundige genoeg om alle zaken die van belang zijn te kunnen overzien. Van toepassing zijn de NVM voorwaarden.
Vastgoed ID | LN102185 |
---|---|
Vraagprijs | € 795.000 k.k. |
Woningtype | Villa |
Woonopp. | 109 m² |
Perceelopp. | 308 m² |
Bouwjaar | 1933 |
Renovatiejaar | - |
Slaapkamers | 3 |
Badkamers | 1 |
Garages | - |
Energielabel | F |
Voorma en Walch Laren Brink 34, 1251 KW Laren
- Telefoon:+31.35.539.90.80
- Email:laren@voorma-walch.nl
- Website:voorma-walch.nl
- Maandag - VrijdagOpen van 08.30 - 17.30
- Zaterdag Open van 10.00 - 16.00
- Zondag Gesloten