Villa te koop in WASSENAAR met referentie 19310775187
Berkheistraat 21, 2242 KA WASSENAAR—Ref. WR104599
Een exclusief en riant gelegen monumentaal woonhuis, vrijstaande garage met gastenverblijf en nagenoeg vrijstaand woon/kantoor pand in het oude centrum van Wassenaar. Het geheel bevindt zich op een perceel van circa 650 m² eigen grond, met een schitterend aangelegde tuin die ruimte biedt voor diverse woon- en werkfuncties.
Wassenaar kent een bijzonder historisch centrum en de Berkheistraat 17–21 vormt hiervan een uitzonderlijk onderdeel. Op deze prachtige locatie bevindt zich dit authentieke en idyllische object, waarvan de oorsprong teruggaat tot circa 1825. De woning valt direct op door de rijke aanwezigheid van originele details, de royale opzet van de tuin en de hoogwaardige afwerking. Twee opstallen zijn in 2010 vrijwel volledig opnieuw opgebouwd, met behoud van het authentieke karakter en voorzien van het luxe en comfort van deze tijd.
Het object bestaat uit een hoofdwoning aan de Berkheistraat 21, een vrijstaande dubbele garage met op de verdieping een gastenverblijf en een nagenoeg vrijstaand woon-/kantoorobject aan de Berkheistraat 17. De onder architectuur aangelegde tuin beschikt over fraai aangelegde terrassen, groenperken en paadjes. Het uitzicht vanuit de tuin op de oude dorpskerk is bijzonder en fascinerend.
Indeling
Berkheistraat 21
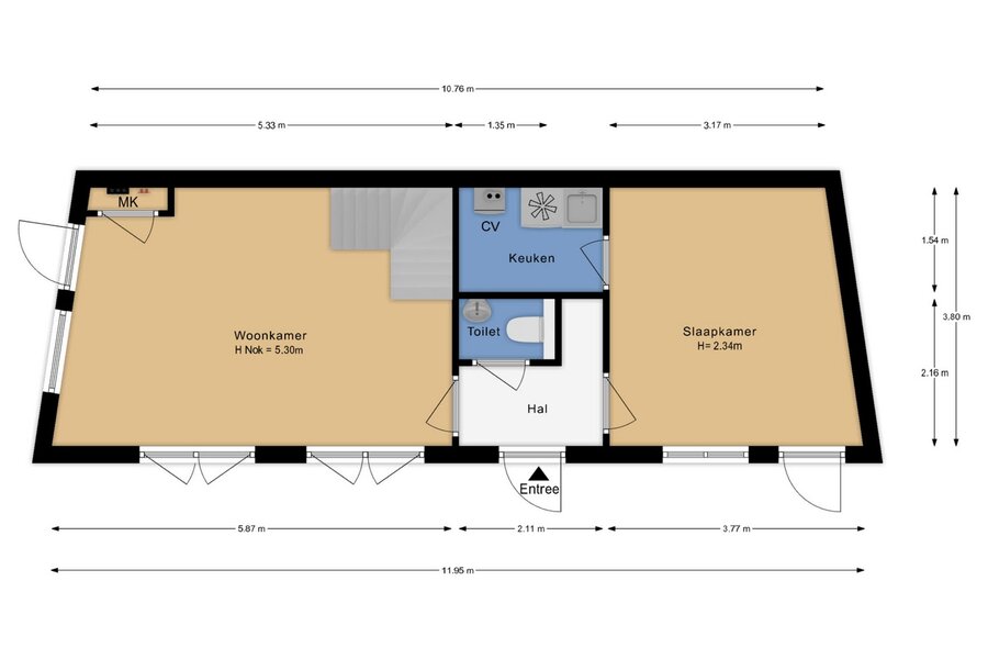
Entree, ruime ontvangsthal met travertin plavuizen, toilet, trapopgang en lift naar de eerste etage. Direct bij binnenkomst valt de hoogwaardige renovatie en afwerking op, waarbij de sfeer zorgvuldig is behouden. De zichtbare balkenconstructie draagt bij aan het karakter van de woning.
Aangrenzend bevinden zich de moderne keuken en bijkeuken, voorzien van alle denkbare gemakken en uitgevoerd met hoogwaardige materialen zoals een hardstenen aanrechtblad, eiken kasten en kwaliteits-inbouwapparatuur van onder andere Miele, Gaggenau en Quooker. In de bijkeuken bevinden zich een extra koelkast en een opstelling voor wasmachine en droger, met voldoende bergruimte dankzij ingebouwde kasten.
De woonkamer bestaat uit twee delen: het woongedeelte en de aangrenzende, verrassend lichte serre met prachtig uitzicht op de tuin. De eiken vloer, ramen met roedeverdeling, zichtbare balken en de lichtstraat maken deze ruimte comfortabel en zeer aangenaam.
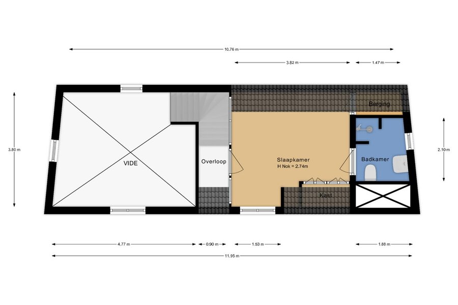
Via de trap of lift bereikt men de eerste etage van het hoofdverblijf. Hier bevinden zich twee slaapkamers, beide met een eigen badkamer en veel (inbouw)kastruimte. Eén van de slaapkamers beschikt tevens over een inloopkast en airconditioning. De badkamers zijn voorzien van een inloopdouche, wastafel en toilet en kenmerken zich door een uitstekende afwerking. Naast één van de badkamers bevindt zich een zolderruimte met de opstelplaats van de cv-ketel.
Berkheistraat 17
Entree aan de straatzijde. Het woongedeelte beschikt over een vide die een indrukwekkende hoogte tot aan de nok biedt en een bijzonder gevoel van ruimte creëert. De dubbele deuren richting de tuin zorgen voor een prettig uitzicht en veel lichtinval.
Via de hal zijn een separaat toilet en garderobe bereikbaar. Een tweede kamer op de begane grond is momenteel in gebruik als kantoorruimte. Daarnaast is er een aparte kitchenette aanwezig.
Via de trap en vide is de slaapruimte bereikbaar, met aangrenzend een complete badkamer voorzien van toilet, wastafel en inloopdouche.
Garage / Gastenverblijf
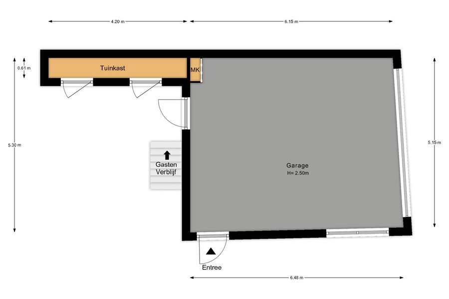
De vrijstaande garage is circa 5,30 meter breed en heeft een oppervlakte van ongeveer 35 m². Aan de achterzijde bevindt zich een trapopgang naar het gastenverblijf. Vanuit de hal zijn een separaat toilet, een doucheruimte met wastafel en een verblijfsruimte bereikbaar. In deze ruimte zijn aansluitingen aanwezig voor het realiseren van een kitchenette.
Bijzonderheden
- Uniek monumentaal object in het hart van Wassenaar.
- Woonoppervlak van 251 m2 is als volgt opgebouwd: woning 166 m2, gastenverblijf 24 m2, woon/kantoor 62 m2.
- Meerdere opstallen met diverse gebruiksmogelijkheden.
- Dubbele bewoning mogelijk.
- Vier slaapkamers, vier badkamers en een ruime garage.
- Hoofdgebouw uitgebreid met slim gesitueerde serre, liftinstallatie en luxe afwerking.
- Twee opstallen in 2010 nagenoeg volledig opnieuw opgebouwd met behoud van karakter en sfeer.
- Volledig geïsoleerd en uitgevoerd met hoogwaardige materialen.
- Energielabel C (21) en D (17).
- Voorzien van hedendaags comfort zoals airconditioning, Honeywell Home-systeem, screens, intercom en alarmsystemen.
- Royale (binnen)tuin met meerdere terrassen, groenstroken, sproeisysteem en verlichting.
- Gelegen in beschermd dorpsgezicht.
- Berkheistraat 21 is een rijksmonument.
- Verkoper heeft de woning niet bewoond.
- Ouderdomsclausule, niet-bewoningsclausule en asbestclausule van toepassing in de NVM-koopovereenkomst
Dit object biedt zoveel mogelijkheden dat een bezichtiging nodig is om de ruimte, sfeer en kwaliteit volledig te ervaren. Tijdens een bezichtiging ziet u pas echt de hoogwaardige afwerking en de unieke ambiance die dit bijzondere object heeft weten te behouden.
Deze informatie is met de grootst mogelijke zorgvuldigheid samengesteld. Desondanks aanvaarden wij geen aansprakelijkheid voor eventuele onvolledigheden, onjuistheden of de gevolgen daarvan. Alle opgegeven maten en oppervlakten zijn indicatief. De NVM-voorwaarden zijn van toepassing.
Wilt u de sfeer, de ruimte en de unieke ligging zelf ervaren? Wij leiden u graag rond aan de Berkheistraat. Neemt u gerust contact met ons op voor het plannen van een bezichtiging.
======================================================================
An exclusive and generously positioned monumental residence, featuring a detached garage with guest accommodation and an almost fully detached residential/office building in the historic centre of Wassenaar.
The property is situated on a plot of approximately 650 m² of freehold land and includes a beautifully landscaped garden offering space for various residential and professional uses.
Wassenaar boasts a distinctive historic town centre, and Berkheistraat 17–21 forms an exceptional part of this heritage. Located at this outstanding site is this authentic and idyllic property, dating back to approximately 1825. The residence immediately stands out due to the abundance of original details, the generous garden layout and the high-quality finish.
Two of the buildings were almost entirely rebuilt in 2010, preserving the authentic character while incorporating modern luxury and comfort.
The property consists of a main residence at Berkheistraat 21, a detached double garage with guest accommodation on the upper floor, and an almost fully detached residential/office building at Berkheistraat 17. The architect-designed garden features attractive terraces, landscaped greenery and winding pathways. The view from the garden towards the historic village church is truly exceptional and captivating.
Layout
Berkheistraat 21
Entrance via the spacious reception hall with travertine tiled flooring, guest toilet, staircase and elevator to the first floor. Upon entering, the high-quality renovation and finishing are immediately noticeable, while the original atmosphere has been carefully preserved. The exposed wooden beam structure enhances the character of the property.
Adjacent to the hall are the modern kitchen and utility room, both fitted with every conceivable convenience and finished with premium materials such as stone worktops, wooden cabinetry and high-end built-in appliances including Miele, Gaggenau and Quooker. The utility room provides an additional refrigerator and connections for a washing machine and dryer, as well as ample storage space with built-in cupboards.
The living room is divided into two areas: the main sitting area and the adjoining, remarkably bright conservatory offering beautiful garden views. The wooden flooring, mullioned windows, exposed beams and skylight create a comfortable and highly pleasant living environment.
The first floor of the main residence is accessible by both staircase and elevator. Here you will find two bedrooms, each with its own en-suite bathroom and extensive built-in wardrobe space. One of the bedrooms also features a walk-in closet and air conditioning. The bathrooms are fitted with walk-in showers, washbasins and toilets and are finished to a very high standard.
Adjacent to one of the bathrooms is a loft space housing the central heating installation.
Berkheistraat 17
Street-level entrance. The living area features a mezzanine with impressive ceiling height extending to the roof ridge, creating a striking sense of space. The double doors opening onto the garden provide abundant natural light and pleasant views.
From the hallway, a separate toilet and cloakroom are accessible. A second room on the ground floor is currently used as office space. In addition, a separate kitchenette is available.
Via the staircase and mezzanine, the sleeping area is reached, with an adjoining fully equipped bathroom featuring a toilet, washbasin and walk-in shower.
Garage / Guest Accommodation
The detached garage is approximately 5.30 metres wide and has a floor area of around 33 m². At the rear, a staircase leads to the guest accommodation. From the hallway, a separate toilet, a shower room with washbasin and a living/sleeping area can be accessed. This space is already equipped with connections for the installation of a kitchenette.
Special Features
- Unique monumental property in the heart of Wassenaar.
- Multiple buildings offering versatile usage options.
- Possibility for dual occupancy.
- Four bedrooms, four bathrooms and a spacious garage.
- Main residence extended with a smartly positioned conservatory, elevator installation and luxurious finishing.
- Two outbuildings almost entirely rebuilt in 2010 while preserving character and ambiance.
- Fully insulated and finished with high-quality materials.
- Energy labels C (21) and D (17).
- Equipped with modern comforts such as air conditioning, Honeywell Home system, exterior screens, intercom and alarm systems.
- Generous (inner) garden with multiple terraces, landscaped green areas, irrigation system and outdoor lighting.
- Located within a protected townscape area.
- Berkheistraat 21 is designated as a national monument.
- Seller has not lived in the house.
- Age clause, non occupancy clause and asbestos clauses apply in the NVM purchase agreement.
This exceptional property offers such a wide range of possibilities that a viewing is essential to fully experience its space, atmosphere and quality. Only during a personal viewing will the superior finish and unique ambiance of this special property truly become apparent.
This information has been compiled with the utmost care. However, no liability is accepted for any inaccuracies, omissions or the consequences thereof. All stated measurements and surface areas are indicative. The NVM terms and conditions apply.
Would you like to experience the atmosphere, space and unique location for yourself? We would be delighted to show you around Berkheistraat. Please feel free to contact us to schedule a viewing.
Wassenaar kent een bijzonder historisch centrum en de Berkheistraat 17–21 vormt hiervan een uitzonderlijk onderdeel. Op deze prachtige locatie bevindt zich dit authentieke en idyllische object, waarvan de oorsprong teruggaat tot circa 1825. De woning valt direct op door de rijke aanwezigheid van originele details, de royale opzet van de tuin en de hoogwaardige afwerking. Twee opstallen zijn in 2010 vrijwel volledig opnieuw opgebouwd, met behoud van het authentieke karakter en voorzien van het luxe en comfort van deze tijd.
Het object bestaat uit een hoofdwoning aan de Berkheistraat 21, een vrijstaande dubbele garage met op de verdieping een gastenverblijf en een nagenoeg vrijstaand woon-/kantoorobject aan de Berkheistraat 17. De onder architectuur aangelegde tuin beschikt over fraai aangelegde terrassen, groenperken en paadjes. Het uitzicht vanuit de tuin op de oude dorpskerk is bijzonder en fascinerend.
Indeling
Berkheistraat 21
Entree, ruime ontvangsthal met travertin plavuizen, toilet, trapopgang en lift naar de eerste etage. Direct bij binnenkomst valt de hoogwaardige renovatie en afwerking op, waarbij de sfeer zorgvuldig is behouden. De zichtbare balkenconstructie draagt bij aan het karakter van de woning.
Aangrenzend bevinden zich de moderne keuken en bijkeuken, voorzien van alle denkbare gemakken en uitgevoerd met hoogwaardige materialen zoals een hardstenen aanrechtblad, eiken kasten en kwaliteits-inbouwapparatuur van onder andere Miele, Gaggenau en Quooker. In de bijkeuken bevinden zich een extra koelkast en een opstelling voor wasmachine en droger, met voldoende bergruimte dankzij ingebouwde kasten.
De woonkamer bestaat uit twee delen: het woongedeelte en de aangrenzende, verrassend lichte serre met prachtig uitzicht op de tuin. De eiken vloer, ramen met roedeverdeling, zichtbare balken en de lichtstraat maken deze ruimte comfortabel en zeer aangenaam.
Via de trap of lift bereikt men de eerste etage van het hoofdverblijf. Hier bevinden zich twee slaapkamers, beide met een eigen badkamer en veel (inbouw)kastruimte. Eén van de slaapkamers beschikt tevens over een inloopkast en airconditioning. De badkamers zijn voorzien van een inloopdouche, wastafel en toilet en kenmerken zich door een uitstekende afwerking. Naast één van de badkamers bevindt zich een zolderruimte met de opstelplaats van de cv-ketel.
Berkheistraat 17
Entree aan de straatzijde. Het woongedeelte beschikt over een vide die een indrukwekkende hoogte tot aan de nok biedt en een bijzonder gevoel van ruimte creëert. De dubbele deuren richting de tuin zorgen voor een prettig uitzicht en veel lichtinval.
Via de hal zijn een separaat toilet en garderobe bereikbaar. Een tweede kamer op de begane grond is momenteel in gebruik als kantoorruimte. Daarnaast is er een aparte kitchenette aanwezig.
Via de trap en vide is de slaapruimte bereikbaar, met aangrenzend een complete badkamer voorzien van toilet, wastafel en inloopdouche.
Garage / Gastenverblijf
De vrijstaande garage is circa 5,30 meter breed en heeft een oppervlakte van ongeveer 35 m². Aan de achterzijde bevindt zich een trapopgang naar het gastenverblijf. Vanuit de hal zijn een separaat toilet, een doucheruimte met wastafel en een verblijfsruimte bereikbaar. In deze ruimte zijn aansluitingen aanwezig voor het realiseren van een kitchenette.
Bijzonderheden
- Uniek monumentaal object in het hart van Wassenaar.
- Woonoppervlak van 251 m2 is als volgt opgebouwd: woning 166 m2, gastenverblijf 24 m2, woon/kantoor 62 m2.
- Meerdere opstallen met diverse gebruiksmogelijkheden.
- Dubbele bewoning mogelijk.
- Vier slaapkamers, vier badkamers en een ruime garage.
- Hoofdgebouw uitgebreid met slim gesitueerde serre, liftinstallatie en luxe afwerking.
- Twee opstallen in 2010 nagenoeg volledig opnieuw opgebouwd met behoud van karakter en sfeer.
- Volledig geïsoleerd en uitgevoerd met hoogwaardige materialen.
- Energielabel C (21) en D (17).
- Voorzien van hedendaags comfort zoals airconditioning, Honeywell Home-systeem, screens, intercom en alarmsystemen.
- Royale (binnen)tuin met meerdere terrassen, groenstroken, sproeisysteem en verlichting.
- Gelegen in beschermd dorpsgezicht.
- Berkheistraat 21 is een rijksmonument.
- Verkoper heeft de woning niet bewoond.
- Ouderdomsclausule, niet-bewoningsclausule en asbestclausule van toepassing in de NVM-koopovereenkomst
Dit object biedt zoveel mogelijkheden dat een bezichtiging nodig is om de ruimte, sfeer en kwaliteit volledig te ervaren. Tijdens een bezichtiging ziet u pas echt de hoogwaardige afwerking en de unieke ambiance die dit bijzondere object heeft weten te behouden.
Deze informatie is met de grootst mogelijke zorgvuldigheid samengesteld. Desondanks aanvaarden wij geen aansprakelijkheid voor eventuele onvolledigheden, onjuistheden of de gevolgen daarvan. Alle opgegeven maten en oppervlakten zijn indicatief. De NVM-voorwaarden zijn van toepassing.
Wilt u de sfeer, de ruimte en de unieke ligging zelf ervaren? Wij leiden u graag rond aan de Berkheistraat. Neemt u gerust contact met ons op voor het plannen van een bezichtiging.
======================================================================
An exclusive and generously positioned monumental residence, featuring a detached garage with guest accommodation and an almost fully detached residential/office building in the historic centre of Wassenaar.
The property is situated on a plot of approximately 650 m² of freehold land and includes a beautifully landscaped garden offering space for various residential and professional uses.
Wassenaar boasts a distinctive historic town centre, and Berkheistraat 17–21 forms an exceptional part of this heritage. Located at this outstanding site is this authentic and idyllic property, dating back to approximately 1825. The residence immediately stands out due to the abundance of original details, the generous garden layout and the high-quality finish.
Two of the buildings were almost entirely rebuilt in 2010, preserving the authentic character while incorporating modern luxury and comfort.
The property consists of a main residence at Berkheistraat 21, a detached double garage with guest accommodation on the upper floor, and an almost fully detached residential/office building at Berkheistraat 17. The architect-designed garden features attractive terraces, landscaped greenery and winding pathways. The view from the garden towards the historic village church is truly exceptional and captivating.
Layout
Berkheistraat 21
Entrance via the spacious reception hall with travertine tiled flooring, guest toilet, staircase and elevator to the first floor. Upon entering, the high-quality renovation and finishing are immediately noticeable, while the original atmosphere has been carefully preserved. The exposed wooden beam structure enhances the character of the property.
Adjacent to the hall are the modern kitchen and utility room, both fitted with every conceivable convenience and finished with premium materials such as stone worktops, wooden cabinetry and high-end built-in appliances including Miele, Gaggenau and Quooker. The utility room provides an additional refrigerator and connections for a washing machine and dryer, as well as ample storage space with built-in cupboards.
The living room is divided into two areas: the main sitting area and the adjoining, remarkably bright conservatory offering beautiful garden views. The wooden flooring, mullioned windows, exposed beams and skylight create a comfortable and highly pleasant living environment.
The first floor of the main residence is accessible by both staircase and elevator. Here you will find two bedrooms, each with its own en-suite bathroom and extensive built-in wardrobe space. One of the bedrooms also features a walk-in closet and air conditioning. The bathrooms are fitted with walk-in showers, washbasins and toilets and are finished to a very high standard.
Adjacent to one of the bathrooms is a loft space housing the central heating installation.
Berkheistraat 17
Street-level entrance. The living area features a mezzanine with impressive ceiling height extending to the roof ridge, creating a striking sense of space. The double doors opening onto the garden provide abundant natural light and pleasant views.
From the hallway, a separate toilet and cloakroom are accessible. A second room on the ground floor is currently used as office space. In addition, a separate kitchenette is available.
Via the staircase and mezzanine, the sleeping area is reached, with an adjoining fully equipped bathroom featuring a toilet, washbasin and walk-in shower.
Garage / Guest Accommodation
The detached garage is approximately 5.30 metres wide and has a floor area of around 33 m². At the rear, a staircase leads to the guest accommodation. From the hallway, a separate toilet, a shower room with washbasin and a living/sleeping area can be accessed. This space is already equipped with connections for the installation of a kitchenette.
Special Features
- Unique monumental property in the heart of Wassenaar.
- Multiple buildings offering versatile usage options.
- Possibility for dual occupancy.
- Four bedrooms, four bathrooms and a spacious garage.
- Main residence extended with a smartly positioned conservatory, elevator installation and luxurious finishing.
- Two outbuildings almost entirely rebuilt in 2010 while preserving character and ambiance.
- Fully insulated and finished with high-quality materials.
- Energy labels C (21) and D (17).
- Equipped with modern comforts such as air conditioning, Honeywell Home system, exterior screens, intercom and alarm systems.
- Generous (inner) garden with multiple terraces, landscaped green areas, irrigation system and outdoor lighting.
- Located within a protected townscape area.
- Berkheistraat 21 is designated as a national monument.
- Seller has not lived in the house.
- Age clause, non occupancy clause and asbestos clauses apply in the NVM purchase agreement.
This exceptional property offers such a wide range of possibilities that a viewing is essential to fully experience its space, atmosphere and quality. Only during a personal viewing will the superior finish and unique ambiance of this special property truly become apparent.
This information has been compiled with the utmost care. However, no liability is accepted for any inaccuracies, omissions or the consequences thereof. All stated measurements and surface areas are indicative. The NVM terms and conditions apply.
Would you like to experience the atmosphere, space and unique location for yourself? We would be delighted to show you around Berkheistraat. Please feel free to contact us to schedule a viewing.
| Vastgoed ID | WR104599 |
|---|---|
| Vraagprijs | € 2.750.000 k.k. |
| Woningtype | Villa |
| Woonopp. | 251 m² |
| Perceelopp. | 643 m² |
| Bouwjaar | 1825 |
| Renovatiejaar | - |
| Slaapkamers | 4 |
| Badkamers | 4 |
| Garages | 1 |
| Energielabel | C |
Welp Makelaardij Van Hogendorpstraat 16 d, 2242 KZ Wassenaar
- Telefoon:+31.070.51.11.720
- Email:info@welpmakelaardij.nl
- Website:www.welpmakelaardij.nl
- Maandag - VrijdagOpen van 09.00 - 17.30
- Zaterdag Open van 10.00 - 14.00
- Zondag Gesloten





































































