Appartement te koop in AMSTERDAM met referentie 19410897177
Keizersgracht 430G, 1016 GD AMSTERDAM—Ref. AM103010
Welkom thuis!
Het voelt als thuiskomen in dit heerlijk penthouse appartement met lift, royaal dakterras en privéparkeermogelijkheid in het hart van de Amsterdamse grachtengordel.
Het appartement is gelegen op het geliefde en centraal gelegen deel van de Amsterdamse grachtengordel. In de directe omgeving bevinden zich de Negen Straatjes, de Leidsegracht en een breed aanbod aan stijlvolle restaurants, cafés en exclusieve boetieks. Ook het Vondelpark en het centrum zijn eenvoudig te voet of per fiets bereikbaar.
Het appartement is verdeeld over drie niveaus en onderscheidt zich door de 9 meter brede voorgevel met 4 raampartijen, de unieke warme sfeer en de tijdloze, hoogwaardige afwerking. Gelegen in een verzorgd gebouw met lift, overvloedige lichtinval en een groot en zonnig terras aan de achterzijde met weids uitzicht op de Westertoren. Een zeldzame buitenruimte van formaat, midden in de stad.
Derde verdieping
Het appartement wordt betreden op de derde verdieping in een fraaie hal en beschikt hier over een royale woonkamer met uniek beschilderd en zeer hoog plafond. Aan de achterzijde van de woonkamer is een kleine vide gebouwd welke de uitstraling van het gehele compleet maakt. De woonkamer met “echte” open haard heeft een prettige breedte en diepte en biedt volop mogelijkheden voor diverse zit- en werkopstellingen.
De verrassende hoogte en grote raampartijen zorgen voor een aangename lichtinval en een open, uitnodigende sfeer. De woonkamer staat direct in verbinding met de ruime woonkeuken maar beiden zijn toch twee separate ruimten welke precies op de juiste manier met elkaar verbonden zijn.
De woonkeuken, eveneens voorzien van een open haard, is ruim opgezet en biedt plaats aan een grote eettafel, ideaal voor lange diners en het ontvangen van gasten. Daarnaast bevinden zich op deze verdieping de garderoberuimte en een separaat toilet.
Vierde en vijfde verdieping
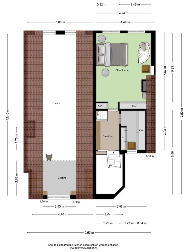
Op de vierde verdieping bevindt zich een ruime slaapkamer met vaste kasten en een dressing. De open vide geeft deze verdieping een bijzonder ruimtelijk karakter en creëert een sterke visuele verbinding met de bovenliggende vijfde verdieping, waar zich een zeer royale badkamer bevindt met een prachtige tweepersoonsdouche, met groot dakvenster (douchen in de zon is mogelijk!) alsmede een separaat toilet en tweede dressing.
Op de vijfde verdieping bevindt zich een tweede slaapkamer met eigen badkamer en toilet. Vanuit deze verdieping is er directe toegang tot het zeer royale en zonnige privé terras met spectaculair uitzicht op het zuidwesten en de Westertoren aan de rustige achterzijde.
Dit dakterras van circa 50 m2 biedt volop mogelijkheden voor meerdere zitplekken, een grote eettafel en loungemeubilair, een zeldzaam luxe element in het hart van Amsterdam.
Aanvullend bestaat de mogelijkheid tot het huren van twee privé huurparkeerplaatsen in de nabijgelegen garage aan het Molenpad. De huurprijs voor beide parkeerplaatsen tezamen bedraagt € 4.100,- inclusief btw per kwartaal. Deze parkeerplaatsen kunnen – indien gewenst – in de verhuur worden overgenomen. In deze omgeving, waar parkeergelegenheid schaars is, vormt dit een bijzonder waardevolle en comfortabele toevoeging.
Kenmerken
- Gelegen op een toplocatie aan de Amsterdamse grachtengordel
- Penthouse appartement verdeeld over drie woonlagen
- Royale woonkeuken en grote woonkamer met uniek hoog plafond en overvloedige lichtinval
- Twee open haarden
- 2 slaapkamers + 2 badkamers + 2 dressings + 3 toiletten
- Zeer royaal en zonnig terras (ca. 50 m2)
- Comfortabele toegang via lift
- Mogelijkheid tot overname van twee privé huurparkeerplaatsen in de nabijgelegen garage aan het Molenpad
Een unieke kans om sfeervol en comfortabel te wonen op een iconische plek in Amsterdam, met alle voorzieningen en het stadsleven binnen handbereik, gecombineerd met een uitzonderlijke buitenruimte en de mogelijkheid tot parkeergelegenheid in directe nabijheid.
------------------------------------------------------------------------------------
Welcome home!
It truly feels like coming home in this delightful penthouse apartment, featuring an elevator, a generous rooftop terrace, and the option for private parking, all located in the heart of Amsterdam’s iconic canal district.
The apartment is situated in a highly sought-after and central part of the canal district. In the immediate vicinity, you will find the charming Nine Streets, the Leidsegracht, and a wide array of stylish restaurants, cafés, and exclusive boutiques. The Vondelpark and the city center are also easily accessible on foot or by bicycle.
The apartment is spread over three levels and is distinguished by its impressive 9-meter-wide façade with four large windows, its warm and inviting atmosphere, and its timeless, high-quality finishes. Located in a well-maintained building with an elevator, it offers abundant natural light and a large, sunny terrace at the rear, with expansive views of the Westerkerk tower, an exceptionally rare outdoor space of this size in the heart of the city.
Third floor
The apartment is accessed on the third floor via an elegant entrance hall, leading to a spacious living room with a uniquely painted and exceptionally high ceiling. At the rear of the living room, a charming mezzanine has been created, enhancing the character and overall aesthetic of the space.
The living room, featuring an authentic fireplace, offers excellent width and depth, providing ample possibilities for various seating and working arrangements. The remarkable ceiling height and large windows ensure a pleasant influx of natural light and create an open, inviting atmosphere.
The living room connects directly to the spacious kitchen-dining area, while still maintaining a sense of separation, perfectly balanced to combine openness with defined living spaces.
The kitchen-dining area, also equipped with a fireplace, is generously proportioned and accommodates a large dining table, ideal for hosting long dinners and entertaining guests. This level also includes a wardrobe area and a separate toilet.
Fourth and fifth floors
On the fourth floor, there is a spacious bedroom with built-in wardrobes and a dressing area. The open mezzanine gives this level an exceptional sense of space and creates a strong visual connection to the fifth floor above. Here you will find a very generous bathroom, featuring a beautiful double walk-in shower with a large skylight, allowing you to quite literally shower in the sunlight, as well as a separate toilet and a second dressing area.
The fifth floor also features a second bedroom with its own bathroom and toilet. From this level, there is direct access to the expansive and sunny private rooftop terrace, offering spectacular southwest-facing views and a direct outlook onto the Westerkerk tower at the quiet rear of the property.
This rooftop terrace of approximately 50 m² provides ample space for multiple seating areas, a large dining table, and lounge furniture, an exceptionally rare luxury in central Amsterdam.
Additionally, there is the option to rent two private parking spaces in the nearby garage at Molenpad. The rental price for both spaces combined is €4.100 per quarter, including VAT. These parking spaces can be taken over, if desired. In this area, where parking is scarce, this represents a highly valuable and comfortable addition.
Features
- Prime location in Amsterdam’s canal district
- Penthouse apartment spread over three levels
- Spacious kitchen-dining area and large living room with a unique high ceiling and abundant natural light
- Two fireplaces
- 2 bedrooms + 2 bathrooms + 2 dressing areas + 3 toilets
- Very spacious and sunny terrace (approx. 50 m²)
- Comfortable access via elevator
- Option to take over two private rental parking spaces in the nearby garage at Molenpad
A unique opportunity to live in style and comfort at an iconic location in Amsterdam, with all amenities and vibrant city life within easy reach, combined with exceptional outdoor space and the possibility of nearby parking.
Het voelt als thuiskomen in dit heerlijk penthouse appartement met lift, royaal dakterras en privéparkeermogelijkheid in het hart van de Amsterdamse grachtengordel.
Het appartement is gelegen op het geliefde en centraal gelegen deel van de Amsterdamse grachtengordel. In de directe omgeving bevinden zich de Negen Straatjes, de Leidsegracht en een breed aanbod aan stijlvolle restaurants, cafés en exclusieve boetieks. Ook het Vondelpark en het centrum zijn eenvoudig te voet of per fiets bereikbaar.
Het appartement is verdeeld over drie niveaus en onderscheidt zich door de 9 meter brede voorgevel met 4 raampartijen, de unieke warme sfeer en de tijdloze, hoogwaardige afwerking. Gelegen in een verzorgd gebouw met lift, overvloedige lichtinval en een groot en zonnig terras aan de achterzijde met weids uitzicht op de Westertoren. Een zeldzame buitenruimte van formaat, midden in de stad.
Derde verdieping
Het appartement wordt betreden op de derde verdieping in een fraaie hal en beschikt hier over een royale woonkamer met uniek beschilderd en zeer hoog plafond. Aan de achterzijde van de woonkamer is een kleine vide gebouwd welke de uitstraling van het gehele compleet maakt. De woonkamer met “echte” open haard heeft een prettige breedte en diepte en biedt volop mogelijkheden voor diverse zit- en werkopstellingen.
De verrassende hoogte en grote raampartijen zorgen voor een aangename lichtinval en een open, uitnodigende sfeer. De woonkamer staat direct in verbinding met de ruime woonkeuken maar beiden zijn toch twee separate ruimten welke precies op de juiste manier met elkaar verbonden zijn.
De woonkeuken, eveneens voorzien van een open haard, is ruim opgezet en biedt plaats aan een grote eettafel, ideaal voor lange diners en het ontvangen van gasten. Daarnaast bevinden zich op deze verdieping de garderoberuimte en een separaat toilet.
Vierde en vijfde verdieping
Op de vierde verdieping bevindt zich een ruime slaapkamer met vaste kasten en een dressing. De open vide geeft deze verdieping een bijzonder ruimtelijk karakter en creëert een sterke visuele verbinding met de bovenliggende vijfde verdieping, waar zich een zeer royale badkamer bevindt met een prachtige tweepersoonsdouche, met groot dakvenster (douchen in de zon is mogelijk!) alsmede een separaat toilet en tweede dressing.
Op de vijfde verdieping bevindt zich een tweede slaapkamer met eigen badkamer en toilet. Vanuit deze verdieping is er directe toegang tot het zeer royale en zonnige privé terras met spectaculair uitzicht op het zuidwesten en de Westertoren aan de rustige achterzijde.
Dit dakterras van circa 50 m2 biedt volop mogelijkheden voor meerdere zitplekken, een grote eettafel en loungemeubilair, een zeldzaam luxe element in het hart van Amsterdam.
Aanvullend bestaat de mogelijkheid tot het huren van twee privé huurparkeerplaatsen in de nabijgelegen garage aan het Molenpad. De huurprijs voor beide parkeerplaatsen tezamen bedraagt € 4.100,- inclusief btw per kwartaal. Deze parkeerplaatsen kunnen – indien gewenst – in de verhuur worden overgenomen. In deze omgeving, waar parkeergelegenheid schaars is, vormt dit een bijzonder waardevolle en comfortabele toevoeging.
Kenmerken
- Gelegen op een toplocatie aan de Amsterdamse grachtengordel
- Penthouse appartement verdeeld over drie woonlagen
- Royale woonkeuken en grote woonkamer met uniek hoog plafond en overvloedige lichtinval
- Twee open haarden
- 2 slaapkamers + 2 badkamers + 2 dressings + 3 toiletten
- Zeer royaal en zonnig terras (ca. 50 m2)
- Comfortabele toegang via lift
- Mogelijkheid tot overname van twee privé huurparkeerplaatsen in de nabijgelegen garage aan het Molenpad
Een unieke kans om sfeervol en comfortabel te wonen op een iconische plek in Amsterdam, met alle voorzieningen en het stadsleven binnen handbereik, gecombineerd met een uitzonderlijke buitenruimte en de mogelijkheid tot parkeergelegenheid in directe nabijheid.
------------------------------------------------------------------------------------
Welcome home!
It truly feels like coming home in this delightful penthouse apartment, featuring an elevator, a generous rooftop terrace, and the option for private parking, all located in the heart of Amsterdam’s iconic canal district.
The apartment is situated in a highly sought-after and central part of the canal district. In the immediate vicinity, you will find the charming Nine Streets, the Leidsegracht, and a wide array of stylish restaurants, cafés, and exclusive boutiques. The Vondelpark and the city center are also easily accessible on foot or by bicycle.
The apartment is spread over three levels and is distinguished by its impressive 9-meter-wide façade with four large windows, its warm and inviting atmosphere, and its timeless, high-quality finishes. Located in a well-maintained building with an elevator, it offers abundant natural light and a large, sunny terrace at the rear, with expansive views of the Westerkerk tower, an exceptionally rare outdoor space of this size in the heart of the city.
Third floor
The apartment is accessed on the third floor via an elegant entrance hall, leading to a spacious living room with a uniquely painted and exceptionally high ceiling. At the rear of the living room, a charming mezzanine has been created, enhancing the character and overall aesthetic of the space.
The living room, featuring an authentic fireplace, offers excellent width and depth, providing ample possibilities for various seating and working arrangements. The remarkable ceiling height and large windows ensure a pleasant influx of natural light and create an open, inviting atmosphere.
The living room connects directly to the spacious kitchen-dining area, while still maintaining a sense of separation, perfectly balanced to combine openness with defined living spaces.
The kitchen-dining area, also equipped with a fireplace, is generously proportioned and accommodates a large dining table, ideal for hosting long dinners and entertaining guests. This level also includes a wardrobe area and a separate toilet.
Fourth and fifth floors
On the fourth floor, there is a spacious bedroom with built-in wardrobes and a dressing area. The open mezzanine gives this level an exceptional sense of space and creates a strong visual connection to the fifth floor above. Here you will find a very generous bathroom, featuring a beautiful double walk-in shower with a large skylight, allowing you to quite literally shower in the sunlight, as well as a separate toilet and a second dressing area.
The fifth floor also features a second bedroom with its own bathroom and toilet. From this level, there is direct access to the expansive and sunny private rooftop terrace, offering spectacular southwest-facing views and a direct outlook onto the Westerkerk tower at the quiet rear of the property.
This rooftop terrace of approximately 50 m² provides ample space for multiple seating areas, a large dining table, and lounge furniture, an exceptionally rare luxury in central Amsterdam.
Additionally, there is the option to rent two private parking spaces in the nearby garage at Molenpad. The rental price for both spaces combined is €4.100 per quarter, including VAT. These parking spaces can be taken over, if desired. In this area, where parking is scarce, this represents a highly valuable and comfortable addition.
Features
- Prime location in Amsterdam’s canal district
- Penthouse apartment spread over three levels
- Spacious kitchen-dining area and large living room with a unique high ceiling and abundant natural light
- Two fireplaces
- 2 bedrooms + 2 bathrooms + 2 dressing areas + 3 toilets
- Very spacious and sunny terrace (approx. 50 m²)
- Comfortable access via elevator
- Option to take over two private rental parking spaces in the nearby garage at Molenpad
A unique opportunity to live in style and comfort at an iconic location in Amsterdam, with all amenities and vibrant city life within easy reach, combined with exceptional outdoor space and the possibility of nearby parking.
| Vastgoed ID | AM103010 |
|---|---|
| Vraagprijs | € 2.950.000 k.k. |
| Woningtype | Appartement |
| Woonopp. | 207 m² |
| Perceelopp. | - |
| Bouwjaar | 1905 |
| Renovatiejaar | - |
| Slaapkamers | 2 |
| Badkamers | 2 |
| Garages | - |
| Energielabel | - |
Amsterdam Sotheby's International Realty Emmalaan 23, 1075 AT Amsterdam
- Telefoon:+31.088.37.47.000
- Email:info@sothebysrealty.nl
- Website:www.sothebysrealty.nl
- Maandag - VrijdagOpen van 09.00 - 17.00
- Zaterdag - ZondagGesloten




















