Villa te koop in LAREN met referentie 19411024827
De Pijl 2, 1251 JN LAREN—Ref. BM100923
Centraal gelegen ten opzichte van de dorpskern van het gezellige Laren, ruime uitgebouwde helft van dubbel woonhuis (1920) met vrij gelegen achter/zijtuin op het zuidwesten en parkeer gelegenheid op eigen terrein.
Indeling
Begane grond: entree, hal met toilet en toegang tot badkamer en keuken met toegang tot de tuin en doorgang naar de eetkamer met toegang naar de woonkamer met houtkachel, openslaande deuren naar de tuin en deur naar tweede hal met toilet en toegang tot de tuin. Bijkeuken met toegang tot (werk) kamer met deur naar badkamer voorzien van douche, wastafel en toilet. Bereikbaar middels de tweede hal ruime eerste slaapkamer met openslaande deuren naar de tuin en trapopgang naar tweede slaapkamer met vaste kast op de verdieping.
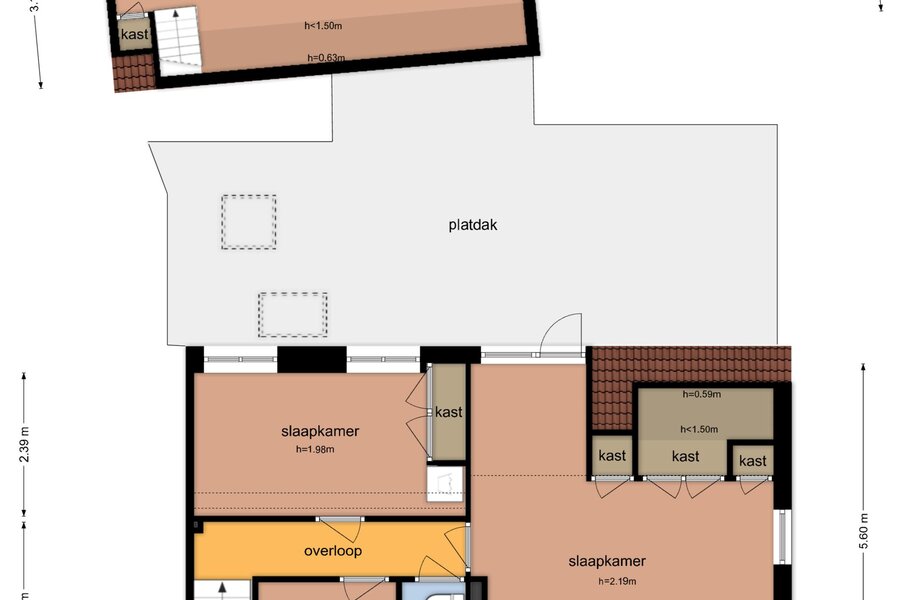
Eerste verdieping: overloop met toilet, royale derde slaapkamer met vaste kasten, wastafel en deur naar dakterras. Vierde slaapkamer met vaste kast en wasmachine aansluiting aan de achterzijde. Vijfde slaapkamer aan de voorzijde.
Vliering: bereikbaar middels vaste trap, stahoge vliering met dakramen wastafel
Bijzonderheden:
- Helft van dubbel woonhuis (1920)
- Woonoppervlakte circa 177 m²
- Perceeloppervlakte 320 m²
- Vijf slaapkamers
- De woning dient te worden aangepast aan de huidige wooneisen
- Gelegen op zeer gunstige locatie nabij diverse voorzieningen
Oplevering: in overleg
Voor een bezichtiging van deze helft van dubbele woning kunt u contact opnemen met Bart Lammerts, NVM Makelaar van ons makelaarskantoor Blaricum. Nog beter is om uw eigen NVM Aankoop makelaar mee te nemen.
Indeling
Begane grond: entree, hal met toilet en toegang tot badkamer en keuken met toegang tot de tuin en doorgang naar de eetkamer met toegang naar de woonkamer met houtkachel, openslaande deuren naar de tuin en deur naar tweede hal met toilet en toegang tot de tuin. Bijkeuken met toegang tot (werk) kamer met deur naar badkamer voorzien van douche, wastafel en toilet. Bereikbaar middels de tweede hal ruime eerste slaapkamer met openslaande deuren naar de tuin en trapopgang naar tweede slaapkamer met vaste kast op de verdieping.
Eerste verdieping: overloop met toilet, royale derde slaapkamer met vaste kasten, wastafel en deur naar dakterras. Vierde slaapkamer met vaste kast en wasmachine aansluiting aan de achterzijde. Vijfde slaapkamer aan de voorzijde.
Vliering: bereikbaar middels vaste trap, stahoge vliering met dakramen wastafel
Bijzonderheden:
- Helft van dubbel woonhuis (1920)
- Woonoppervlakte circa 177 m²
- Perceeloppervlakte 320 m²
- Vijf slaapkamers
- De woning dient te worden aangepast aan de huidige wooneisen
- Gelegen op zeer gunstige locatie nabij diverse voorzieningen
Oplevering: in overleg
Voor een bezichtiging van deze helft van dubbele woning kunt u contact opnemen met Bart Lammerts, NVM Makelaar van ons makelaarskantoor Blaricum. Nog beter is om uw eigen NVM Aankoop makelaar mee te nemen.
| Vastgoed ID | BM100923 |
|---|---|
| Vraagprijs | € 950.000 k.k. |
| Woningtype | Villa |
| Woonopp. | 177 m² |
| Perceelopp. | 320 m² |
| Bouwjaar | 1920 |
| Renovatiejaar | - |
| Slaapkamers | 5 |
| Badkamers | 1 |
| Garages | - |
| Energielabel | F |
Voorma en Walch Blaricum Torenlaan 12 D, 1261 GD Blaricum
- Telefoon:+31.35.531.53.00
- Email:blaricum@voorma-walch.nl
- Website:voorma-walch.nl
- Maandag - VrijdagOpen van 08.30 - 17.30
- Zaterdag Open van 10.00 - 16.00
- Zondag Gesloten







































