Villa te koop in NAARDEN met referentie 19608881090
Amsterdamsestraatweg 81, 1411 AZ NAARDEN—Ref. LN101924
Deze vrijstaande villa, gelegen nabij de vestingstad Naarden, is werkelijk een droom voor elke huiseigenaar.
Dit voormalig gemaal uit 1911 is een gemeentelijk monument en is door de huidige eigenaar in 2020 volledig gerenoveerd en omgevormd tot een sfeervol verblijf met een oprecht 'thuisgevoel'.
Deze prachtige woning met bijgebouw heeft een ruime woonoppervlakte, werkruimte voor praktijk aan huis, drie slaapkamers en een fantastische tuin met weids uitzicht. Gunstig gelegen, nabij water en uitvalswegen aan een rustige weg met vrijwel alleen bestemmingsverkeer.
Het huis ligt door zijn oorsprong op een karakteristieke plek met een landelijke ligging en de allure van water. De omgeving wordt gekenmerkt door zijn rust, ruimte en onafgebroken uitzicht over het omringende landschap. Het is slechts op een steenworp afstand van meerdere belangrijke voorzieningen, hetgeen het een fantastische plek maakt om te wonen.
De indeling is als volgt:
Begane grond:
De begane grond van de woning heeft een ruime woonkamer met sierlijke open haard, een sfeervolle leefkeuken welke van alle benodigde inbouwapparatuur is voorzien, openslaande deuren naar de achtertuin, welke prachtig uitzicht geeft over de tuin en het achtergelegen natuurgebied, aangrenzend aan de keuken bevindt zich een bijkeuken met eigen opgang. Deze ruimte biedt voldoende bergruimte en opstelling CV- installatie. Vanuit de woonkamer bereikt u een separate werkruimte met eigen toegang: ideaal voor praktijk aan huis!
Eerste verdieping:
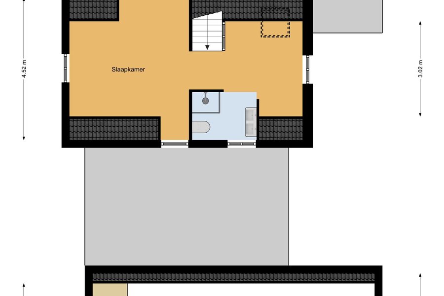
De eerste verdieping beschikt over een slaapkamer en een badkamer uitgerust met een toilet, douche en een dubbele wastafel. Aan de achterzijde bevindt zich een tweede slaap-/kleedkamer.
Bergvliering:
De vliering biedt extra bergruimte, waardoor het huis ruim en georganiseerd blijft.
Bijgebouw begane grond:
Het bijgebouw heeft een gezellige leefruimte met houtkachel, kitchenette en badkamer met toilet, douche en wastafeltje.
Openslaande deuren naar de riante tuin met uniek uitzicht maakt dit zeer geschikt voor gasten of als bed & breakfast faciliteit.
Bijgebouw 1e verdieping:
Op de 1e verdieping bevinden zich twee functionele slaapkamers.
Bijzonderheden:
- Bouwjaar: 1911
- Recent geheel aangepast aan de eisen van deze tijd
- Voormalig gemaal
- Gemeentelijk monument
- Landelijk gelegen aan een rustige weg en water, met vrij uitzicht over polderlandschap
- Bijgebouw met mogelijkheid voor bed & breakfast (onder voorbehoud vergunning)
- Faciliteit voor praktijk aan huis
NB. Het gebruiksoppervlakte en de overige inpandige ruimte van het woonhuis en het bijgebouw zijn in de kenmerken van deze advertentie bij elkaar opgeteld. Het gebruiksoppervlakte van het woonhuis bedraagt 120 m2 en het gebruiksoppervlakte van het bijgebouw is 45 m2.
Dit sfeervolle huis is ideaal voor stellen en gezinnen die op zoek zijn naar een plek van rust en ontspanning. Met zijn vele mogelijkheden en exclusieve kenmerken kan dit uw droomhuis zijn, klaar om in te trekken. Waar wacht u nog op?
Voor een bezichtiging bij deze bijzonder charmante villa kunt u contact opnemen met Bart H.A.M. Lammerts, NVM Makelaar van makelaarskantoor Laren. Nog beter is om uw eigen NVM aankoopmakelaar mee te nemen.
Dit voormalig gemaal uit 1911 is een gemeentelijk monument en is door de huidige eigenaar in 2020 volledig gerenoveerd en omgevormd tot een sfeervol verblijf met een oprecht 'thuisgevoel'.
Deze prachtige woning met bijgebouw heeft een ruime woonoppervlakte, werkruimte voor praktijk aan huis, drie slaapkamers en een fantastische tuin met weids uitzicht. Gunstig gelegen, nabij water en uitvalswegen aan een rustige weg met vrijwel alleen bestemmingsverkeer.
Het huis ligt door zijn oorsprong op een karakteristieke plek met een landelijke ligging en de allure van water. De omgeving wordt gekenmerkt door zijn rust, ruimte en onafgebroken uitzicht over het omringende landschap. Het is slechts op een steenworp afstand van meerdere belangrijke voorzieningen, hetgeen het een fantastische plek maakt om te wonen.
De indeling is als volgt:
Begane grond:
De begane grond van de woning heeft een ruime woonkamer met sierlijke open haard, een sfeervolle leefkeuken welke van alle benodigde inbouwapparatuur is voorzien, openslaande deuren naar de achtertuin, welke prachtig uitzicht geeft over de tuin en het achtergelegen natuurgebied, aangrenzend aan de keuken bevindt zich een bijkeuken met eigen opgang. Deze ruimte biedt voldoende bergruimte en opstelling CV- installatie. Vanuit de woonkamer bereikt u een separate werkruimte met eigen toegang: ideaal voor praktijk aan huis!
Eerste verdieping:
De eerste verdieping beschikt over een slaapkamer en een badkamer uitgerust met een toilet, douche en een dubbele wastafel. Aan de achterzijde bevindt zich een tweede slaap-/kleedkamer.
Bergvliering:
De vliering biedt extra bergruimte, waardoor het huis ruim en georganiseerd blijft.
Bijgebouw begane grond:
Het bijgebouw heeft een gezellige leefruimte met houtkachel, kitchenette en badkamer met toilet, douche en wastafeltje.
Openslaande deuren naar de riante tuin met uniek uitzicht maakt dit zeer geschikt voor gasten of als bed & breakfast faciliteit.
Bijgebouw 1e verdieping:
Op de 1e verdieping bevinden zich twee functionele slaapkamers.
Bijzonderheden:
- Bouwjaar: 1911
- Recent geheel aangepast aan de eisen van deze tijd
- Voormalig gemaal
- Gemeentelijk monument
- Landelijk gelegen aan een rustige weg en water, met vrij uitzicht over polderlandschap
- Bijgebouw met mogelijkheid voor bed & breakfast (onder voorbehoud vergunning)
- Faciliteit voor praktijk aan huis
NB. Het gebruiksoppervlakte en de overige inpandige ruimte van het woonhuis en het bijgebouw zijn in de kenmerken van deze advertentie bij elkaar opgeteld. Het gebruiksoppervlakte van het woonhuis bedraagt 120 m2 en het gebruiksoppervlakte van het bijgebouw is 45 m2.
Dit sfeervolle huis is ideaal voor stellen en gezinnen die op zoek zijn naar een plek van rust en ontspanning. Met zijn vele mogelijkheden en exclusieve kenmerken kan dit uw droomhuis zijn, klaar om in te trekken. Waar wacht u nog op?
Voor een bezichtiging bij deze bijzonder charmante villa kunt u contact opnemen met Bart H.A.M. Lammerts, NVM Makelaar van makelaarskantoor Laren. Nog beter is om uw eigen NVM aankoopmakelaar mee te nemen.
| Vastgoed ID | LN101924 |
|---|---|
| Vraagprijs | € 1.195.000 k.k. |
| Woningtype | Villa |
| Woonopp. | 165 m² |
| Perceelopp. | 770 m² |
| Bouwjaar | 1911 |
| Renovatiejaar | - |
| Slaapkamers | 3 |
| Badkamers | 2 |
| Garages | - |
| Energielabel | C |
Voorma en Walch Laren Brink 34, 1251 KW Laren
- Telefoon:+31.35.539.90.80
- Email:laren@voorma-walch.nl
- Website:voorma-walch.nl
- Maandag - VrijdagOpen van 08.30 - 17.30
- Zaterdag Open van 10.00 - 16.00
- Zondag Gesloten




























































