Villa te koop in LAREN met referentie 19611720250
Eemnesserweg 39, 1251 NB LAREN—Ref. LN102262
Wonen in stijl en comfort op een toplocatie in Laren – deze helft van een dubbele villa heeft het allemaal! Met een woonoppervlakte van circa 164 m², vier slaapkamers, Energielabel A en een zonnige voor- én achtertuin biedt deze woning een perfecte balans tussen ruimte, comfort en sfeer.
De woning is recent met veel oog voor detail gerenoveerd en straalt een bijzonder warme en uitnodigende ambiance uit. Hoogwaardige materialen, een doordachte indeling en een eigentijdse afwerking zorgen voor een instapklare woning waar u zich direct thuis voelt.
INDELING
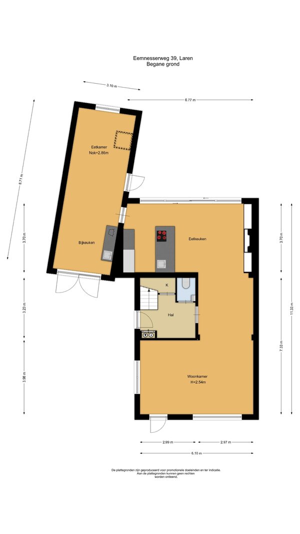
Begane grond: Entree, binnenkomst in de hal met garderobe. Trap naar eerste verdieping, toegang tot de geïsoleerde kelderkast, meterkast, aparte wc en deur naar de woonkamer. De ruime woonkamer is gelegen aan de voorzijde. Aan de achterzijde bevindt zich de eetkamer met, een gashaard, inbouwkast en de luxe vernieuwde open keuken welke is voorzien van een composiet werkblad en diverse inbouwapparatuur. De keuken is voorzien van vloerverwarming en geeft via de schuifpui toegang tot de achtertuin. Via de keuken toegang naar de compleet gerenoveerde garage die nu is voorzien van aansluitingen voor de wasmachine/ droger en een deur naar de achtertuin.
Eerste verdieping: overloop met toegang naar de inloopkast, die ook als slaapkamer kan worden gebruikt. Gerenoveerde badkamer voorzien van vloerverwarming, wastafel met verwarmde spiegel, wc en inloopdouche. Twee slaapkamers waaronder een ruime master bedroom en slaapkamer voorzien van inbouwkast.
Tweede verdieping: via vaste trap naar de zolder verdieping. Hier bevinden zich eveneens aansluitingen voor wasmachine / droger, Cv ketel (Intergas compact HRE uit 2019) en toegang naar de vierde slaapkamer. De knieschotten bieden veel opbergruimte.
OMGEVING & BEREIKBAARHEID
Gelegen in het karakteristieke Laren bevindt deze woning zich in een populaire en groene woonomgeving. Laren staat bekend om zijn charmante dorpskern, met een gevarieerd aanbod aan winkels, speciaalzaken, goede restaurants en gezellige terrassen. Daarnaast biedt het oude Kunstenaars dorp een rijk cultureel leven met onder andere galerieën en het bekende Singer Laren. Op korte afstand liggen uitgestrekte heidevelden en bossen, ideaal voor wandel- en fietsliefhebbers. Tegelijkertijd zijn alle dagelijkse voorzieningen, zoals supermarkten, scholen en sportfaciliteiten, binnen handbereik. De bereikbaarheid is uitstekend te noemen. Via de nabijgelegen uitvalswegen, waaronder de A1 en A27, zijn steden als Amsterdam, Utrecht en Amersfoort snel en eenvoudig te bereiken. Ook het nabijgelegen Hilversum biedt een treinstation met directe verbindingen naar diverse grote steden. Daarnaast zijn er goede busverbindingen in de omgeving, waardoor ook het openbaar vervoer uitstekend geregeld is.
KENMERKEN
- Recent gerenoveerde en turn key helft van een dubbele villa
- Gelegen op een prachtige locatie nabij het bruisende centrum van Laren
- Heerlijke familiewoning van ca. 164 m², met 4 slaapkamers
- Moderne open keuken voorzien van diverse luxe inbouwapparatuur
- Ruime zonnige voor- en achtertuin
- Gelegen op een perceel van ca. 500 m², met elektrisch hek
- Parkeergelegenheid op eigen terrein voor ca. 3 auto’s
- Bouwjaar 1957
- Energielabel A
- Verkoop onder voorbehoud gunning verkoper
Voor een bezichtiging van deze sfeervolle helft van een dubbele villa gelegen op een toplocatie in Laren kunt u contact opnemen met Aldert J. Froma, NVM Makelaar van ons kantoor in Laren. Nog beter is om uw eigen NVM aankoopmakelaar mee te nemen.
De woning is recent met veel oog voor detail gerenoveerd en straalt een bijzonder warme en uitnodigende ambiance uit. Hoogwaardige materialen, een doordachte indeling en een eigentijdse afwerking zorgen voor een instapklare woning waar u zich direct thuis voelt.
INDELING
Begane grond: Entree, binnenkomst in de hal met garderobe. Trap naar eerste verdieping, toegang tot de geïsoleerde kelderkast, meterkast, aparte wc en deur naar de woonkamer. De ruime woonkamer is gelegen aan de voorzijde. Aan de achterzijde bevindt zich de eetkamer met, een gashaard, inbouwkast en de luxe vernieuwde open keuken welke is voorzien van een composiet werkblad en diverse inbouwapparatuur. De keuken is voorzien van vloerverwarming en geeft via de schuifpui toegang tot de achtertuin. Via de keuken toegang naar de compleet gerenoveerde garage die nu is voorzien van aansluitingen voor de wasmachine/ droger en een deur naar de achtertuin.
Eerste verdieping: overloop met toegang naar de inloopkast, die ook als slaapkamer kan worden gebruikt. Gerenoveerde badkamer voorzien van vloerverwarming, wastafel met verwarmde spiegel, wc en inloopdouche. Twee slaapkamers waaronder een ruime master bedroom en slaapkamer voorzien van inbouwkast.
Tweede verdieping: via vaste trap naar de zolder verdieping. Hier bevinden zich eveneens aansluitingen voor wasmachine / droger, Cv ketel (Intergas compact HRE uit 2019) en toegang naar de vierde slaapkamer. De knieschotten bieden veel opbergruimte.
OMGEVING & BEREIKBAARHEID
Gelegen in het karakteristieke Laren bevindt deze woning zich in een populaire en groene woonomgeving. Laren staat bekend om zijn charmante dorpskern, met een gevarieerd aanbod aan winkels, speciaalzaken, goede restaurants en gezellige terrassen. Daarnaast biedt het oude Kunstenaars dorp een rijk cultureel leven met onder andere galerieën en het bekende Singer Laren. Op korte afstand liggen uitgestrekte heidevelden en bossen, ideaal voor wandel- en fietsliefhebbers. Tegelijkertijd zijn alle dagelijkse voorzieningen, zoals supermarkten, scholen en sportfaciliteiten, binnen handbereik. De bereikbaarheid is uitstekend te noemen. Via de nabijgelegen uitvalswegen, waaronder de A1 en A27, zijn steden als Amsterdam, Utrecht en Amersfoort snel en eenvoudig te bereiken. Ook het nabijgelegen Hilversum biedt een treinstation met directe verbindingen naar diverse grote steden. Daarnaast zijn er goede busverbindingen in de omgeving, waardoor ook het openbaar vervoer uitstekend geregeld is.
KENMERKEN
- Recent gerenoveerde en turn key helft van een dubbele villa
- Gelegen op een prachtige locatie nabij het bruisende centrum van Laren
- Heerlijke familiewoning van ca. 164 m², met 4 slaapkamers
- Moderne open keuken voorzien van diverse luxe inbouwapparatuur
- Ruime zonnige voor- en achtertuin
- Gelegen op een perceel van ca. 500 m², met elektrisch hek
- Parkeergelegenheid op eigen terrein voor ca. 3 auto’s
- Bouwjaar 1957
- Energielabel A
- Verkoop onder voorbehoud gunning verkoper
Voor een bezichtiging van deze sfeervolle helft van een dubbele villa gelegen op een toplocatie in Laren kunt u contact opnemen met Aldert J. Froma, NVM Makelaar van ons kantoor in Laren. Nog beter is om uw eigen NVM aankoopmakelaar mee te nemen.
| Vastgoed ID | LN102262 |
|---|---|
| Vraagprijs | € 1.195.000 k.k. |
| Woningtype | Villa |
| Woonopp. | 164 m² |
| Perceelopp. | 501 m² |
| Bouwjaar | 1955 |
| Renovatiejaar | - |
| Slaapkamers | 4 |
| Badkamers | 1 |
| Garages | - |
| Energielabel | A |
Voorma en Walch Laren Brink 34, 1251 KW Laren
- Telefoon:+31.35.539.90.80
- Email:laren@voorma-walch.nl
- Website:voorma-walch.nl
- Maandag - VrijdagOpen van 08.30 - 17.30
- Zaterdag Open van 10.00 - 16.00
- Zondag Gesloten













































