Villa te koop in Zaandam met referentie 19810204319
Badhuisweg 158 bus A, 1506 PB Zaandam—Ref. ZM105577
WONEN OP HET WATER: LUXE WOONARK IN HET CENTRUM VAN ZAANDAM
Op zoek naar een uniek en modern thuis midden in het hart van Zaandam? Deze gloednieuwe woonark in de iconische Houthaven biedt alles wat je je maar kunt wensen. Met een woonoppervlak van maar liefst 153 m² verdeeld over twee verdiepingen, een prachtig uitzicht over de haven en de mogelijkheid tot een vlonder op het water, is dit de perfecte combinatie van luxe, comfort en een waterrijke omgeving.
DE WONING
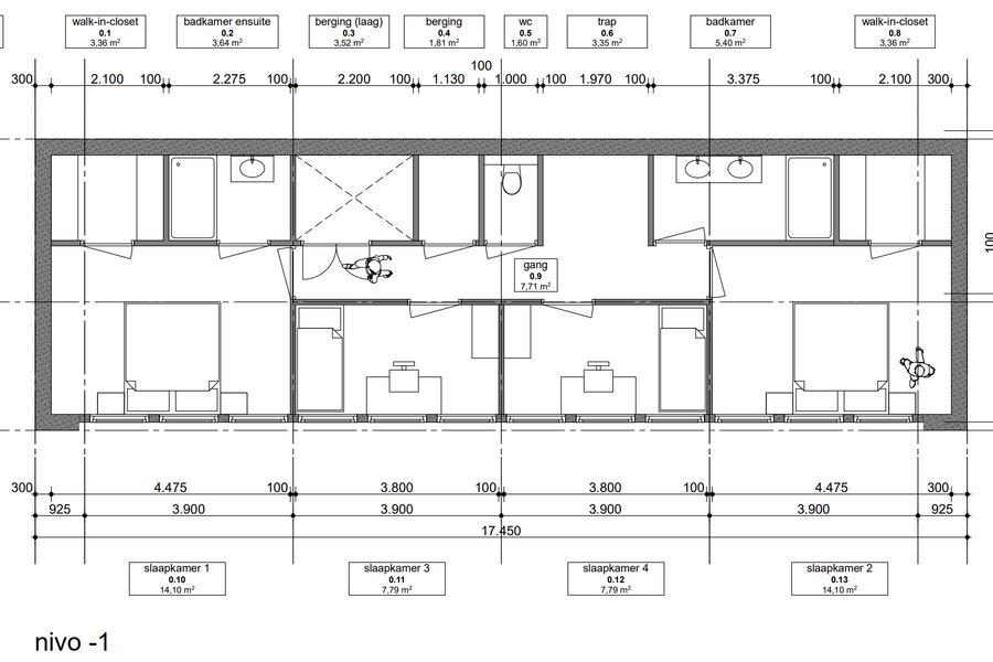
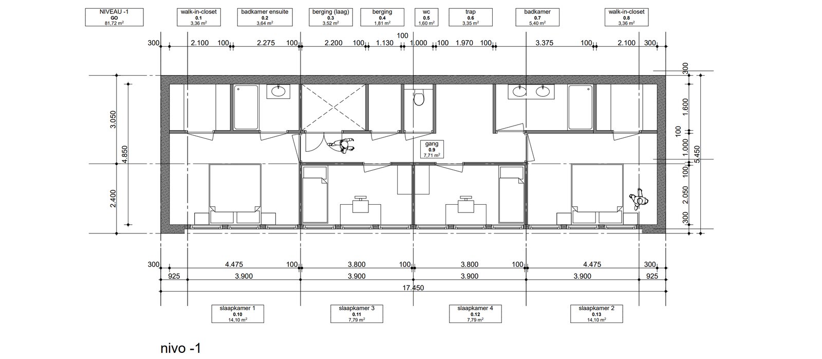
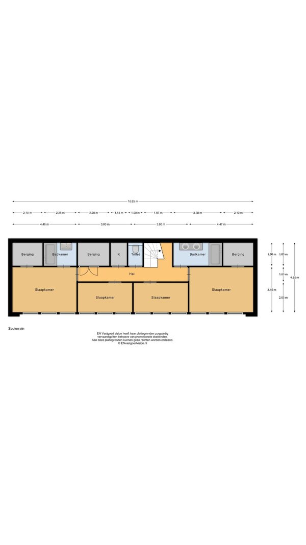
De woonark is ruim van opzet en praktisch ingedeeld, met maar liefst vier goed bemeten slaapkamers op de begane grond. Deze indeling maakt de ark ideaal voor gezinnen of voor wie graag extra kamers wil hebben voor bijvoorbeeld een thuiskantoor of gastenverblijf. Daarnaast bevindt zich op deze verdieping een goede ruimte voor een naar eigen smaak in te vullen badkamer.
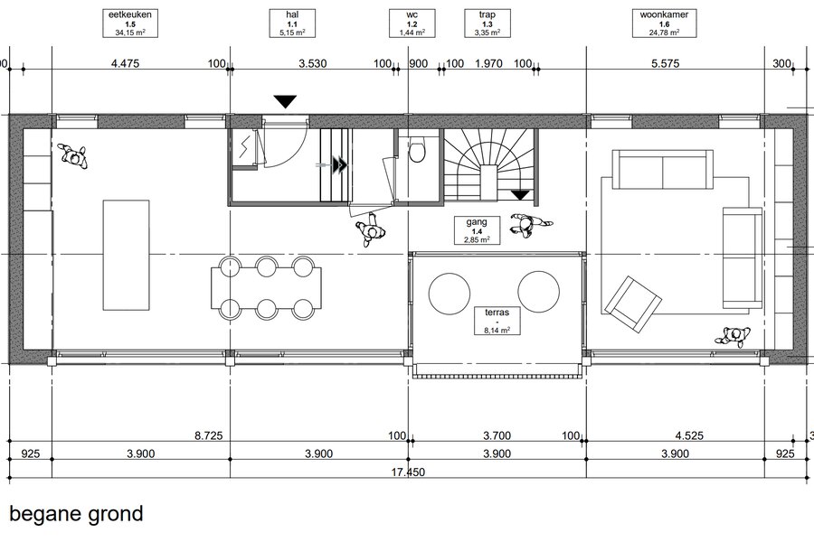
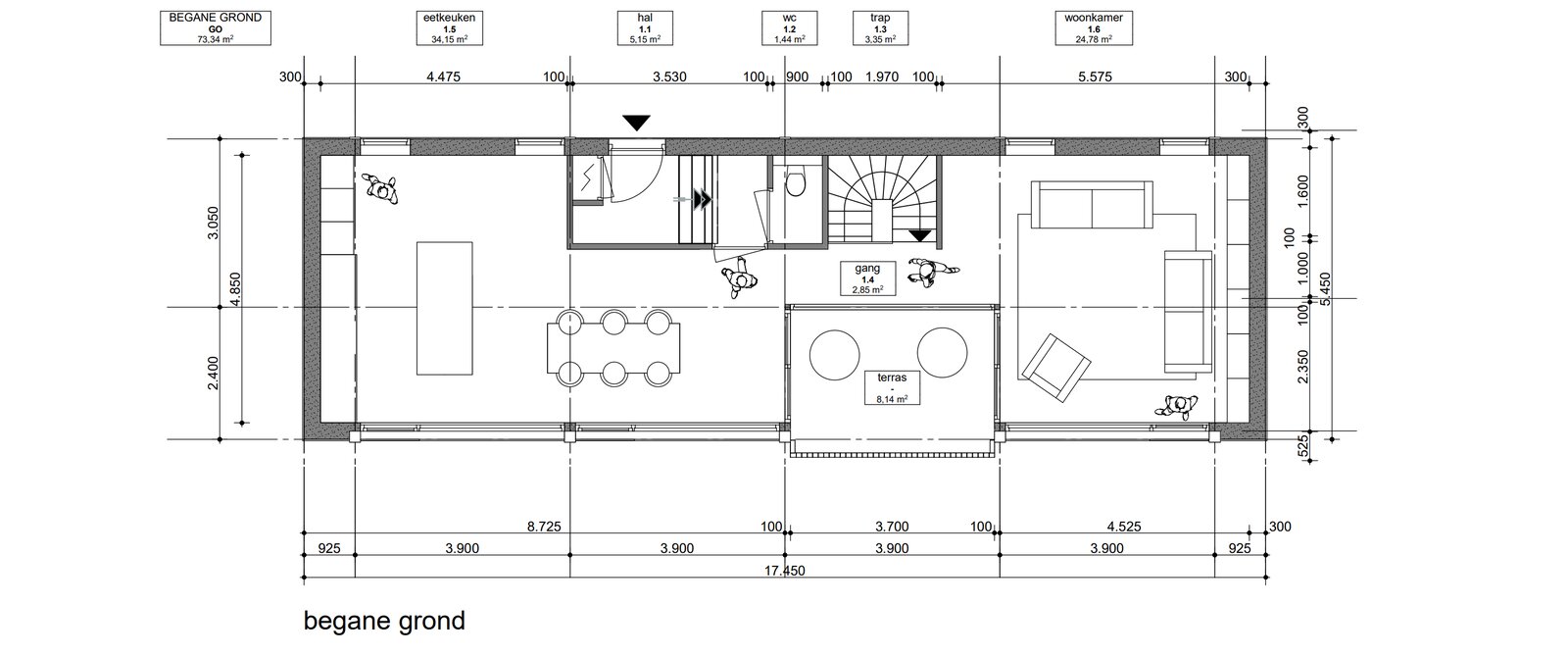
Met een indrukwekkende woonkamer van 32m², perfect gepositioneerd om optimaal te genieten van het weidse uitzicht over de haven, en een goede ruimte voor een keuken van maar liefst 30m², is er alle ruimte voor comfort en ontspanning. De grote raampartijen laten het op het water weerkaatsende licht prachtig binnenvallen, waardoor de hele verdieping baadt in natuurlijk licht. Vanuit de woonkamer heb je toegang tot een ruime loggia van 9m², waar je kunt genieten van het fantastische uitzicht op de Houthaven en de levendigheid van het water. De perfecte plek om te ontspannen en te genieten van lange zomerse avonden.
De woonark wordt verkocht met een koop-/aannemingsovereenkomst. Als koper heb je de vrije hand en legio aan mogelijkheden om een groot deel van de indeling te veranderen in overleg met de bouwer van de ark.
DE LOCATIE
Gelegen aan de Badhuisweg in het centrum van Zaandam, bevindt deze woonark zich op een van de meest gewilde locaties van de stad. Het centrum van Zaandam ligt op steenworp afstand, waar je alles vindt wat je nodig hebt: van boetiekjes en supermarkten tot gezellige restaurants en cafés. Ook de verbindingen met Amsterdam en de rest van de Randstad zijn uitstekend. Het NS-station van Zaandam ligt op korte afstand en binnen enkele minuten bereik je de snelwegen A7 en A8. Zo geniet je van het beste van twee werelden: de rust van het water en de levendigheid van de stad.
Middenin Zaandam ontstaat een uniek park waar bewoners en bezoekers het Zaanse water kunnen beleven. Wonen, recreëren en verblijven wordt ingevuld door de combinatie te zoeken met een moderne jachthaven.
Met woonschepen, een Zaans havenhuisje, een jachthaven en drijvende recreatiechalets – verbonden door een 3 meter brede boardwalk over het water en aangevuld met drijvende tuinen, zitjes en een familierestaurant wordt het gegarandeerd een plek waar altijd wat te beleven valt.
Met aandacht voor de historie van de haven wordt een eenheid gecreëerd door de inrichting en het materiaalgebruik. Natuurlijke materialen, zoals hout, maar ook ruimte voor groen, mooie verlichting en veel loopruimte voor recreanten.
Het familierestaurant neemt een centrale gezellige plek in. Goed toegankelijk en met een ruim terras wordt het voor zowel bewoners, recreanten en buurtgenoten dé plek aan het Zaanse water.
In het begin van de vorige eeuw heeft de Houthaven een centrale rol gespeeld in de houtindustrie van Zaandam. De centrale steiger ligt er al meer dan 100 jaar en verbindt de William Pontbrug (vernoemd naar de Zaanse familie van houthandelaren) en het Spiekeroog.
Deze wordt geheel vernieuwd en creëert zo een mooie looproute tussen het centrum en de Houthavenkade, waar ook een prachtig nieuw woongebied wordt gerealiseerd (oplevering gepland in 2026).
HET VERLEDEN VAN DE HOUTHAVEN
De Houthaven is doordrenkt met historie en was ooit het kloppende hart van de Zaanse houthandel. Eeuwenlang werden hier schepen vol hout uit Scandinavië en het Oostzeegebied gelost. Die bedrijvigheid en handelsgeest zijn vandaag de dag nog steeds voelbaar in de omgeving. Wonen aan deze kade betekent deel uitmaken van dit rijke verleden, terwijl je geniet van de moderne luxe die de woonark biedt. Wil je wonen op deze plek? Meld je dan snel voor deze fantastische nieuwbouw-woonark!
GENIETEN OP HET WATER
Stel je voor: je begint de dag met een kop koffie op je eigen vlonder, uitkijkend over de Houthaven, waar het water zachtjes tegen de oevers kabbelt. In de avond geniet je van de ondergaande zon terwijl je heerlijk binnen of buiten ontspant. Deze woonark biedt een unieke woonervaring op een locatie vol karakter en geschiedenis.
Benieuwd hoe het is om hier te wonen? Neem vandaag nog contact met ons op voor een gesprek en ontdek zelf de luxe en het comfort van deze prachtige woonark in het hart van Zaandam.
Bijzonderheden en kenmerken:
- Woonoppervlakte ca. 153 m²;
- Gelegen op een fantastische locatie;
- Mogelijkheid om een ligplaats in de haven te huren;
- De haven bevindt zich in een ontwikkeling tot gebied met horeca, woonschepen, woonarken en havenlodges;
- Ark gelegen op erfpacht, jaarlijkse canon van € 2.133,40
- Jaarlijkse parkbijdrage voor onderhoud van de haven € 960,-;
- Nieuw te bouwen woonark, veel mogelijkheden tot het wijzigen van de indeling;
- Verkoop, evenals de aanleg van de terrassen aan het water, geschiedt onder het voorbehoud van een definitieve omgevingsvergunning;
- Verkoper behoudt zich het recht van gunning;
- Oplevering verwachting 2026.
Op zoek naar een uniek en modern thuis midden in het hart van Zaandam? Deze gloednieuwe woonark in de iconische Houthaven biedt alles wat je je maar kunt wensen. Met een woonoppervlak van maar liefst 153 m² verdeeld over twee verdiepingen, een prachtig uitzicht over de haven en de mogelijkheid tot een vlonder op het water, is dit de perfecte combinatie van luxe, comfort en een waterrijke omgeving.
DE WONING
De woonark is ruim van opzet en praktisch ingedeeld, met maar liefst vier goed bemeten slaapkamers op de begane grond. Deze indeling maakt de ark ideaal voor gezinnen of voor wie graag extra kamers wil hebben voor bijvoorbeeld een thuiskantoor of gastenverblijf. Daarnaast bevindt zich op deze verdieping een goede ruimte voor een naar eigen smaak in te vullen badkamer.
Met een indrukwekkende woonkamer van 32m², perfect gepositioneerd om optimaal te genieten van het weidse uitzicht over de haven, en een goede ruimte voor een keuken van maar liefst 30m², is er alle ruimte voor comfort en ontspanning. De grote raampartijen laten het op het water weerkaatsende licht prachtig binnenvallen, waardoor de hele verdieping baadt in natuurlijk licht. Vanuit de woonkamer heb je toegang tot een ruime loggia van 9m², waar je kunt genieten van het fantastische uitzicht op de Houthaven en de levendigheid van het water. De perfecte plek om te ontspannen en te genieten van lange zomerse avonden.
De woonark wordt verkocht met een koop-/aannemingsovereenkomst. Als koper heb je de vrije hand en legio aan mogelijkheden om een groot deel van de indeling te veranderen in overleg met de bouwer van de ark.
DE LOCATIE
Gelegen aan de Badhuisweg in het centrum van Zaandam, bevindt deze woonark zich op een van de meest gewilde locaties van de stad. Het centrum van Zaandam ligt op steenworp afstand, waar je alles vindt wat je nodig hebt: van boetiekjes en supermarkten tot gezellige restaurants en cafés. Ook de verbindingen met Amsterdam en de rest van de Randstad zijn uitstekend. Het NS-station van Zaandam ligt op korte afstand en binnen enkele minuten bereik je de snelwegen A7 en A8. Zo geniet je van het beste van twee werelden: de rust van het water en de levendigheid van de stad.
Middenin Zaandam ontstaat een uniek park waar bewoners en bezoekers het Zaanse water kunnen beleven. Wonen, recreëren en verblijven wordt ingevuld door de combinatie te zoeken met een moderne jachthaven.
Met woonschepen, een Zaans havenhuisje, een jachthaven en drijvende recreatiechalets – verbonden door een 3 meter brede boardwalk over het water en aangevuld met drijvende tuinen, zitjes en een familierestaurant wordt het gegarandeerd een plek waar altijd wat te beleven valt.
Met aandacht voor de historie van de haven wordt een eenheid gecreëerd door de inrichting en het materiaalgebruik. Natuurlijke materialen, zoals hout, maar ook ruimte voor groen, mooie verlichting en veel loopruimte voor recreanten.
Het familierestaurant neemt een centrale gezellige plek in. Goed toegankelijk en met een ruim terras wordt het voor zowel bewoners, recreanten en buurtgenoten dé plek aan het Zaanse water.
In het begin van de vorige eeuw heeft de Houthaven een centrale rol gespeeld in de houtindustrie van Zaandam. De centrale steiger ligt er al meer dan 100 jaar en verbindt de William Pontbrug (vernoemd naar de Zaanse familie van houthandelaren) en het Spiekeroog.
Deze wordt geheel vernieuwd en creëert zo een mooie looproute tussen het centrum en de Houthavenkade, waar ook een prachtig nieuw woongebied wordt gerealiseerd (oplevering gepland in 2026).
HET VERLEDEN VAN DE HOUTHAVEN
De Houthaven is doordrenkt met historie en was ooit het kloppende hart van de Zaanse houthandel. Eeuwenlang werden hier schepen vol hout uit Scandinavië en het Oostzeegebied gelost. Die bedrijvigheid en handelsgeest zijn vandaag de dag nog steeds voelbaar in de omgeving. Wonen aan deze kade betekent deel uitmaken van dit rijke verleden, terwijl je geniet van de moderne luxe die de woonark biedt. Wil je wonen op deze plek? Meld je dan snel voor deze fantastische nieuwbouw-woonark!
GENIETEN OP HET WATER
Stel je voor: je begint de dag met een kop koffie op je eigen vlonder, uitkijkend over de Houthaven, waar het water zachtjes tegen de oevers kabbelt. In de avond geniet je van de ondergaande zon terwijl je heerlijk binnen of buiten ontspant. Deze woonark biedt een unieke woonervaring op een locatie vol karakter en geschiedenis.
Benieuwd hoe het is om hier te wonen? Neem vandaag nog contact met ons op voor een gesprek en ontdek zelf de luxe en het comfort van deze prachtige woonark in het hart van Zaandam.
Bijzonderheden en kenmerken:
- Woonoppervlakte ca. 153 m²;
- Gelegen op een fantastische locatie;
- Mogelijkheid om een ligplaats in de haven te huren;
- De haven bevindt zich in een ontwikkeling tot gebied met horeca, woonschepen, woonarken en havenlodges;
- Ark gelegen op erfpacht, jaarlijkse canon van € 2.133,40
- Jaarlijkse parkbijdrage voor onderhoud van de haven € 960,-;
- Nieuw te bouwen woonark, veel mogelijkheden tot het wijzigen van de indeling;
- Verkoop, evenals de aanleg van de terrassen aan het water, geschiedt onder het voorbehoud van een definitieve omgevingsvergunning;
- Verkoper behoudt zich het recht van gunning;
- Oplevering verwachting 2026.
| Vastgoed ID | ZM105577 |
|---|---|
| Vraagprijs | € 779.000 v.o.n. |
| Woningtype | Villa |
| Woonopp. | 143 m² |
| Perceelopp. | 88 m² |
| Bouwjaar | 2025 |
| Renovatiejaar | - |
| Slaapkamers | 4 |
| Badkamers | 2 |
| Garages | - |
| Energielabel | - |
KRK Makelaars Zaandam by Dynamis Exclusief Westzijde 340, 1506 GK Zaandam
- Telefoon:+31.075.612.64.00
- Email:zaandam@krk.nl
- Website:www.krk.nl
- Maandag - VrijdagOpen van 08.30 - 17.30
- Zaterdag - ZondagGesloten






















