Villa te koop in 'S-GRAVENHAGE met referentie 19910147181
Jacob van der Doesstraat 108, 2518 XR 'S-GRAVENHAGE—Ref. WR104537
Gelegen aan de rustige Jacob van der Doesstraat, in het historische en gewilde Zeeheldenkwartier – één van de meest charmante en karakteristieke wijken van Den Haag – staat dit bijzonder sfeervolle ‘twee-raams’ stadsherenhuis uit 1879. Het monumentale eindgevelhuis, verdeeld over vier ruime woonlagen en met een woonoppervlakte van circa 175 m², ademt tijdloze elegantie en verwelkomt je met een stijlvolle, aangename uitstraling die direct bij binnenkomst merkbaar is.
De zonnige, besloten achtertuin op het zuidwesten vormt de perfecte plek om te genieten van rust, licht en groen. Binnen zorgen authentieke details en de warme sfeer voor een unieke woonbeleving in een heerlijk royaal familiehuis.
De ligging is minstens zo aantrekkelijk: op loopafstand vind je de gezellige winkels en horeca van de Piet Heinstraat en de Prins Hendrikstraat, evenals het levendige Prins Hendrikplein en Anna Paulownaplein. Ook de koninklijke Paleistuin, het centrum, openbaar vervoer en diverse sportfaciliteiten liggen binnen handbereik. Het Zeeheldenkwartier bruist.
Kortom: dit charmante stadsherenhuis aan de Jacob van der Doesstraat ligt op een fantastische locatie en biedt het beste van sfeervol, royaal en centraal wonen in Den Haag.
Indeling
Begane grond
Entree in een nette hal/vestibule met meterkast, gevolgd door tochtdeuren naar een diepe gang met vloerverwarming en afgewerkt met betoncire. Hier bevinden zich een trapkast met opstelplaats voor wasmachine en droger, een berging met de MV-box, een ruime wc met fonteintje en vloerverwarming, evenals een deur naar de achtertuin.
De royale (woon-)eetkeuken ligt aan de voorzijde en beschikt over grote ramen aan de straatzijde en openslaande deuren naar de achtertuin. De volledig nieuwe keuken (2024), uitgevoerd met een composiet blad, is voorzien van diverse inbouwapparatuur, waaronder een inductiekookplaat, combi oven/magnetron, afwasmachine, Quooker en een ingebouwd koffiezetapparaat. De vloer is deels afgewerkt met parket en deels met graniet.
Eerste verdieping
Overloop met wc en fonteintje. Aan de voorzijde bevindt zich de woonkamer en suite, gescheiden door een unieke kasten separatie, met dubbele deuren naar de L-vormige achterkamer. Authentieke details zoals een mooie schouw en plafondornamenten zijn behouden. Vanuit de achterkamer geven openslaande deuren toegang tot het zonnige balkon op zuidwesten. De verdieping is afgewerkt met een eiken parketvloer met bies.
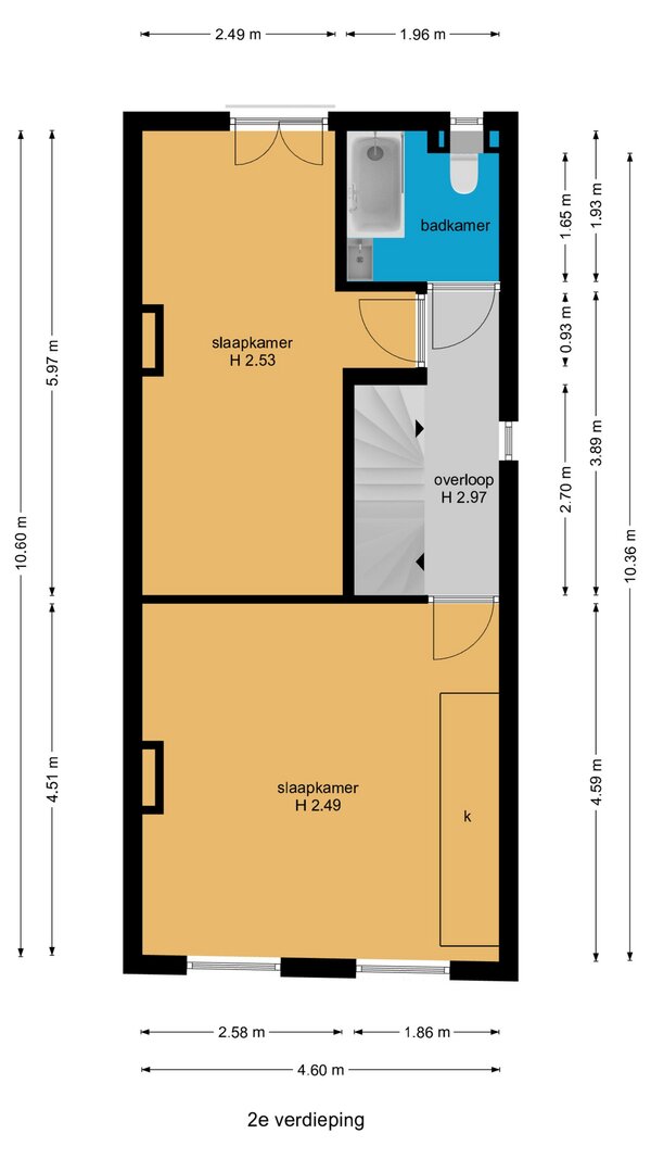
Tweede verdieping
Overloop met badkamer voorzien van wc, douche, bad en wastafel. Aan de voorzijde ligt een ruime slaapkamer met beuken parketvloer, originele schouw en kastenwand. De tweede slaapkamer beschikt over openslaande deuren naar een Frans balkon.
Kapverdieping
Derde slaapkamer over de volledige lengte van de verdieping met houten vloer. In het midden bevindt zich de tweede badkamer met daarnaast een lichte tussenruimte met dakraam. De badkamer is uitgerust met een inloopdouche, wastafel en handdoekradiator. In een aparte kast bevindt zich de opstelling van de cv-ketel (Intergas, 2024).
Achtertuin
Fraai aangelegde, betegelde achtertuin op het zonnige zuidwesten, voorzien van een overkapping en praktische schuur.
Bijzonderheden
- Bouwjaar 1879
- 175 m² woonoppervlakte;
- 4 slaapkamers, 2 badkamers;
- Diepe zonnige achtertuin (zuidwesten) met overkapping;
- Volledig uitgeruste nieuwe keuken (2024);
- Gelegen in het populaire Zeeheldenkwartier;
- Eigen grond;
- Gemeentelijk beschermd stadsgezicht;
- Energielabel E
- Houten en kunststof kozijnen, voorzien van dubbel glas;
- Aanvaarding in overleg;
- Ouderdoms- en asbestclausule in de NVM koopakte.
De zonnige, besloten achtertuin op het zuidwesten vormt de perfecte plek om te genieten van rust, licht en groen. Binnen zorgen authentieke details en de warme sfeer voor een unieke woonbeleving in een heerlijk royaal familiehuis.
De ligging is minstens zo aantrekkelijk: op loopafstand vind je de gezellige winkels en horeca van de Piet Heinstraat en de Prins Hendrikstraat, evenals het levendige Prins Hendrikplein en Anna Paulownaplein. Ook de koninklijke Paleistuin, het centrum, openbaar vervoer en diverse sportfaciliteiten liggen binnen handbereik. Het Zeeheldenkwartier bruist.
Kortom: dit charmante stadsherenhuis aan de Jacob van der Doesstraat ligt op een fantastische locatie en biedt het beste van sfeervol, royaal en centraal wonen in Den Haag.
Indeling
Begane grond
Entree in een nette hal/vestibule met meterkast, gevolgd door tochtdeuren naar een diepe gang met vloerverwarming en afgewerkt met betoncire. Hier bevinden zich een trapkast met opstelplaats voor wasmachine en droger, een berging met de MV-box, een ruime wc met fonteintje en vloerverwarming, evenals een deur naar de achtertuin.
De royale (woon-)eetkeuken ligt aan de voorzijde en beschikt over grote ramen aan de straatzijde en openslaande deuren naar de achtertuin. De volledig nieuwe keuken (2024), uitgevoerd met een composiet blad, is voorzien van diverse inbouwapparatuur, waaronder een inductiekookplaat, combi oven/magnetron, afwasmachine, Quooker en een ingebouwd koffiezetapparaat. De vloer is deels afgewerkt met parket en deels met graniet.
Eerste verdieping
Overloop met wc en fonteintje. Aan de voorzijde bevindt zich de woonkamer en suite, gescheiden door een unieke kasten separatie, met dubbele deuren naar de L-vormige achterkamer. Authentieke details zoals een mooie schouw en plafondornamenten zijn behouden. Vanuit de achterkamer geven openslaande deuren toegang tot het zonnige balkon op zuidwesten. De verdieping is afgewerkt met een eiken parketvloer met bies.
Tweede verdieping
Overloop met badkamer voorzien van wc, douche, bad en wastafel. Aan de voorzijde ligt een ruime slaapkamer met beuken parketvloer, originele schouw en kastenwand. De tweede slaapkamer beschikt over openslaande deuren naar een Frans balkon.
Kapverdieping
Derde slaapkamer over de volledige lengte van de verdieping met houten vloer. In het midden bevindt zich de tweede badkamer met daarnaast een lichte tussenruimte met dakraam. De badkamer is uitgerust met een inloopdouche, wastafel en handdoekradiator. In een aparte kast bevindt zich de opstelling van de cv-ketel (Intergas, 2024).
Achtertuin
Fraai aangelegde, betegelde achtertuin op het zonnige zuidwesten, voorzien van een overkapping en praktische schuur.
Bijzonderheden
- Bouwjaar 1879
- 175 m² woonoppervlakte;
- 4 slaapkamers, 2 badkamers;
- Diepe zonnige achtertuin (zuidwesten) met overkapping;
- Volledig uitgeruste nieuwe keuken (2024);
- Gelegen in het populaire Zeeheldenkwartier;
- Eigen grond;
- Gemeentelijk beschermd stadsgezicht;
- Energielabel E
- Houten en kunststof kozijnen, voorzien van dubbel glas;
- Aanvaarding in overleg;
- Ouderdoms- en asbestclausule in de NVM koopakte.
| Vastgoed ID | WR104537 |
|---|---|
| Vraagprijs | € 1.080.000 k.k. |
| Woningtype | Villa |
| Woonopp. | 175 m² |
| Perceelopp. | 123 m² |
| Bouwjaar | 1879 |
| Renovatiejaar | - |
| Slaapkamers | 4 |
| Badkamers | 2 |
| Garages | - |
| Energielabel | E |
Welp Makelaardij Van Hogendorpstraat 16 d, 2242 KZ Wassenaar
- Telefoon:+31.070.51.11.720
- Email:info@welpmakelaardij.nl
- Website:www.welpmakelaardij.nl
- Maandag - VrijdagOpen van 09.00 - 17.30
- Zaterdag Open van 10.00 - 14.00
- Zondag Gesloten




























































