Villa te koop in HUIZEN met referentie 19910474848
Langestraat 39, 1271 PZ HUIZEN—Ref. HN103016
Charmant en goed onderhouden vrijstaand woonhuis in cottage stijl in het Oude dorp van Huizen.
Midden in het Oude dorp op de kruising met de Kronenburgerstraat staat deze sfeervolle woning.
De woning is gebouwd in 1908 en in 1976 verbouwd, aangebouwd en daarna gemoderniseerd. Oorspronkelijk was het voorste gedeelte een bakker/snoepwinkel.
Zodra u binnenkomt proeft u de sfeer van het huis, sfeervol, karakteristiek en warm.
Aan de achterzijde bevind zich fraai de aangelegde zonnige patiotuin gelegen op het zuid-oosten. Hier geniet u in privacy de hele dag door van de zon.
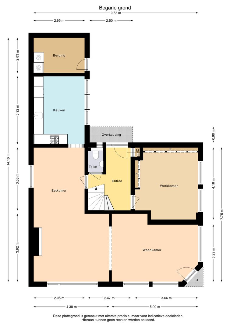
Indeling:
Begane grond:
Overdekte entree, ruime hal, meterkast, toilet met fonteintje, L-vormige woonkamer voorzien van een hoogwaardige en 100% waterdichte laminaatvloer, met als blikvangers de fraaie schouw met open haard en het glas in lood raam.
Het balkenplafond, de brede vensterbanken en de ramen met roedeverdeling maken het af.
Gezellige landelijk woonkeuken met diverse inbouwapparatuur, plavuizen vloer in zwart-wit met vloerverwarming.
Ruime werk/slaapkamer met vaste boekenkasten.
Eerste verdieping:
Lichte en ruime overloop, 2 ruime slaapkamers met inbouwkasten en een kamer met opstelling wasmachine/droger en trap naar zolder.
Zowel overloop als alle drie de kamers zijn voorzien van veel bergruimte.
Badkamer met zwevend toilet, douchecabine, ligbad , radiator en wastafelmeubel.
Zolder:
Ruime sta-hoge zolderkamer (Velux dakramen) en bergzolder.
Het huis biedt voldoende ruimte voor gezinnen, koppels en doorstromers. Een van de unieke kenmerken is de mogelijkheid voor werkruimte of praktijk aan huis.
Plan vandaag nog een bezichtiging in met de makelaar Jan Willem Baas, of met uw eigen NVM makelaar.
Midden in het Oude dorp op de kruising met de Kronenburgerstraat staat deze sfeervolle woning.
De woning is gebouwd in 1908 en in 1976 verbouwd, aangebouwd en daarna gemoderniseerd. Oorspronkelijk was het voorste gedeelte een bakker/snoepwinkel.
Zodra u binnenkomt proeft u de sfeer van het huis, sfeervol, karakteristiek en warm.
Aan de achterzijde bevind zich fraai de aangelegde zonnige patiotuin gelegen op het zuid-oosten. Hier geniet u in privacy de hele dag door van de zon.
Indeling:
Begane grond:
Overdekte entree, ruime hal, meterkast, toilet met fonteintje, L-vormige woonkamer voorzien van een hoogwaardige en 100% waterdichte laminaatvloer, met als blikvangers de fraaie schouw met open haard en het glas in lood raam.
Het balkenplafond, de brede vensterbanken en de ramen met roedeverdeling maken het af.
Gezellige landelijk woonkeuken met diverse inbouwapparatuur, plavuizen vloer in zwart-wit met vloerverwarming.
Ruime werk/slaapkamer met vaste boekenkasten.
Eerste verdieping:
Lichte en ruime overloop, 2 ruime slaapkamers met inbouwkasten en een kamer met opstelling wasmachine/droger en trap naar zolder.
Zowel overloop als alle drie de kamers zijn voorzien van veel bergruimte.
Badkamer met zwevend toilet, douchecabine, ligbad , radiator en wastafelmeubel.
Zolder:
Ruime sta-hoge zolderkamer (Velux dakramen) en bergzolder.
Het huis biedt voldoende ruimte voor gezinnen, koppels en doorstromers. Een van de unieke kenmerken is de mogelijkheid voor werkruimte of praktijk aan huis.
Plan vandaag nog een bezichtiging in met de makelaar Jan Willem Baas, of met uw eigen NVM makelaar.
| Vastgoed ID | HN103016 |
|---|---|
| Vraagprijs | € 890.000 k.k. |
| Woningtype | Villa |
| Woonopp. | 138 m² |
| Perceelopp. | 193 m² |
| Bouwjaar | 1908 |
| Renovatiejaar | - |
| Slaapkamers | 3 |
| Badkamers | 1 |
| Garages | - |
| Energielabel | E |
Voorma en Walch Huizen Ceintuurbaan 22, 1271 BJ Huizen
- Telefoon:+31.35.525.31.35
- Email:huizen@voorma-walch.nl
- Website:www.voorma-walch.nl
- Maandag - VrijdagOpen van 08.30 - 17.30
- Zaterdag - ZondagGesloten













































