Villa te koop in LEUSDEN met referentie 19911625318
Vlasland 12, 3833 CM LEUSDEN—Ref. NY100476
For English see below.
Wonen op een van de mooiste plekjes van de geliefde wijk Groenhouten – met uitzicht dat nooit verveelt.
Op een werkelijk toplocatie in de groene en kindvriendelijke wijk Groenhouten staat deze royaal uitgebouwde en verrassend luxe afgewerkte woning (ca. 2011 luxe verbouwd en aangebouwd onder architectuur van Designa, bekend van het TV programma “van Woonvilla naar Droomvilla”). Hier woon je direct aan een brede waterpartij, met een vrij en rustgevend uitzicht over het groen. Het is zo’n plek waar je ’s ochtends wakker wordt met het zachte geluid van fluitende vogels en waar je ’s avonds vanaf het terras geniet van de ondergaande zon die schittert op het water.
Dit is geen standaard woning – dit is een unieke woonbeleving.
Met een royaal woonoppervlak van ca. 161 m² en een perceel van 191 m² biedt deze woning ruimte, comfort en luxe in een bijzonder prettige setting. De voormalige garage is omgetoverd tot een ruime berging/bijkeuken en op de tweede verdieping zorgen brede dakkapellen voor extra licht en verrassend veel leefruimte. De unieke indeling en hoogwaardige afwerking maken deze woning absoluut onderscheidend binnen de wijk.
Een woning die je gezien móét hebben om de sfeer, ruimte en ligging echt te ervaren.
De indeling is als volgt:
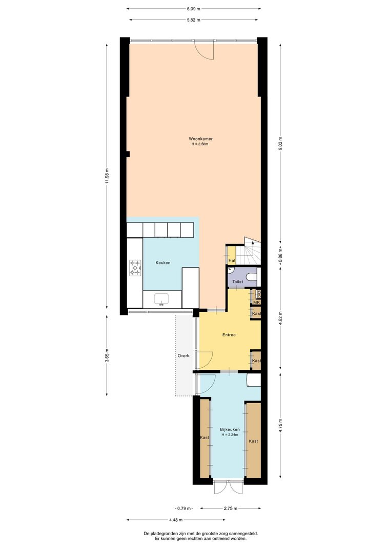
Begane grond
Via de entree kom je in een ruime hal met garderobe, meterkast en een modern toilet met vrij hangend closet en fonteintje. Vanuit de hal is er toegang tot de praktische bijkeuken/berging voorzien van vaste kasten, een zijdeur en openslaande deuren aan de voorzijde.
De uitgebouwde woonkamer is zonder twijfel het hart van de woning – wat een ruimte en wat een uitzicht! Door de grote raampartijen kijk je hier vrij uit over het water en het omliggende groen. Dit is wonen met een permanent vakantiegevoel.
Aan de voorzijde bevindt zich de luxe uitgevoerde keuken (ca. 15 jaar oud), voorzien van alle wenselijke inbouwapparatuur (voornamelijk Gaggenau) en een prettige, praktische indeling.
Eerste verdieping – uw privé hotelsuite
Deze verdieping is volledig getransformeerd tot een indrukwekkende master suite. Het slaapgedeelte ligt aan de achterzijde en beschikt over een royale kastenwand. Centraal in de ruimte bevindt zich een vrijstaand ligbad met een luxe wastafelmeubel – een echte eyecatcher.
Aan de voorzijde bevinden zich een separate douchecabine en toilet. Het geheel voelt als een luxe hotelsuite waar comfort en beleving samenkomen.
Indien gewenst is deze verdieping eenvoudig weer in te delen als drie volwaardige slaapkamers, waardoor de woning ook perfect aansluit bij een groter gezin.
Tweede verdieping
De tweede verdieping biedt een ruime voorzolder met was- en droogmachine aansluitingen en cv-opstelling en volop bergruimte. Daarnaast is er een tweede badkamer met douche en wastafel en zijn er twee sfeervolle slaapkamers gerealiseerd. Dankzij de twee grote dakkapellen over vrijwel de volle breedte van de woning is hier een verrassend ruime en volwaardige verdieping ontstaan.
Tuin
De zonnige achtertuin is een ware oase van rust en privacy (geen achterburen). Direct aan de woning bevindt zich een ruim terras, perfect voor lange zomeravonden. Aan het water is een sfeervolle vlonder gerealiseerd, omringd door groene borders.
Hier woon je letterlijk in het groen, met water, rust en ruimte als dagelijks decor.
Ligging
De woning ligt aan een rustig hofje in de zeer gewilde en kindvriendelijke wijk Groenhouten. Leusden staat bekend als een groene, complete en uitstekend bereikbare woonplaats.
Binnen circa 15 minuten fietsen bereik je de historische binnenstad van Amersfoort én het NS-station Amersfoort Centraal. In Leusden zelf zijn uitgebreide voorzieningen aanwezig, waaronder de winkelcentra De Hamershof en De Nieuwe Biezenkamp, waar je terecht kunt voor dagelijkse boodschappen, winkels en diverse horeca.
Scholen, sportvoorzieningen en recreatiemogelijkheden zijn ruim aanwezig en uitstekend bereikbaar. Daarnaast liggen natuurgebieden, bossen en het buitengebied letterlijk om de hoek.
Met de nabijgelegen uitvalswegen (A1, A28, A30 en A12) zijn de Randstad en andere grote steden snel en eenvoudig bereikbaar.
Kortom: Vlasland 12 is geen gewone woning, maar een unieke woonbeleving op een van de mooiste plekken van Leusden. Luxe, ruimte, uitzicht en rust komen hier op uitzonderlijke wijze samen.
• Bijna het hele huis is voorzien van dubbel glas.
• Bijna alle vaste inbouw verlichting is voorzien van led.
• Verbouwing is gedaan onder architectuur van Designa.
• Onder de vloerbedekking woonkamer ligt voor een groot deel een kersenhouten parketvloer.
• De beide terrassen aan de achterzijde zijn onderheid waardoor deze zeer stabiel zijn en niet verzakken. De grond, waarop het achterste terras staat, is gehuurd van de gemeente.
• Achterzijde zuid.
• Buiten verlichting.
• Schitterend vrij uitzicht achter op park met fraaie vijver en oude bomen.
• Loopafstand van het centrum met winkels en horeca.
• Diverse basis scholen, voortgezet onderwijs is dichtbij in Amersfoort.
• Goed verenigingsleven met diverse sportclubs (hockey, voetbal, tennis, korfbal etc.). Natuur is dichtbij voor fietsen en wandelen in de buurt en op de Utrechtse heuvelrug.
• Een rustig dorp direct bij Amersfoort en dus centraal in Nederland gelegen nabij de A28, A12 en A1.
Geïnteresseerd in deze villa? Neem contact op met Wilfred Janssen, NVM-makelaar bij Netherlands Sotheby’s International Realty, of met uw eigen aankoopmakelaar om een bezichtiging in te plannen.
English:
Living in one of the most beautiful spots in the sought-after Groenhouten district – with a view that never gets boring.
Situated in a truly prime location in the green and family-friendly district of Leusden, this generously extended and surprisingly luxurious home (extensively renovated and enlarged around 2011 under the architecture of Designa, known from the TV program “Van Woonvilla naar Droomvilla”) offers a unique living experience. Here you live directly on a wide waterway, enjoying open and tranquil views over greenery. Wake up to birdsong and end your day watching the sunset reflect on the water from your terrace.
This is not a standard home – this is a lifestyle.
With a generous living area of approx. 161 m² and a plot of 191 m², this property offers space, comfort, and luxury in an exceptional setting. The former garage has been transformed into a spacious utility/storage room, and large dormers on the second floor provide extra light and living space. The unique layout and high-quality finishes make this home truly stand out.
A property you must see to fully experience the atmosphere, space, and location.
Layout
Ground floor
Entrance into a spacious hall with wardrobe, meter cupboard, and modern toilet. Access to a practical utility/storage room with built-in cupboards, side entrance, and double doors at the front.
The extended living room is undoubtedly the heart of the home – spacious and with stunning views over water and greenery through large windows. A permanent holiday feeling.
At the front, the luxury kitchen (approx. 15 years old) is equipped with high-end built-in appliances (mainly Gaggenau) and a practical layout.
First floor – your private hotel suite
Fully transformed into an impressive master suite. The bedroom at the rear features a large wardrobe wall. A freestanding bathtub and luxury vanity unit form a central eye-catcher.
At the front are a separate shower and toilet. The entire floor feels like a luxury hotel suite.
If desired, this floor can easily be reconfigured into three full bedrooms.
Second floor
Spacious landing with laundry connections, boiler setup, and storage. Second bathroom with shower and sink, plus two charming bedrooms. Large dormers create a surprisingly spacious level.
Garden
Sunny, private backyard (no rear neighbors) with a large terrace and a waterfront deck surrounded by greenery. A peaceful oasis where water, space, and nature define daily living.
Location
Located in a quiet cul-de-sac in Groenhouten, one of Leusden’s most desirable neighborhoods. Within 15 minutes by bike you reach the historic center and station of Amersfoort.
Leusden offers excellent amenities, including shopping centers De Hamershof and De Nieuwe Biezenkamp. Schools, sports facilities, and nature areas are all nearby. Major highways (A1, A28, A30, A12) ensure excellent connectivity.
Key features
* Double glazing throughout most of the house
* LED lighting throughout
* Renovation under architecture by Designa
* Cherry wood parquet beneath living room flooring
* Pile-founded terraces (stable, no subsidence)
* South-facing garden
* Stunning unobstructed park and water views
* Walking distance to shops and restaurants
* Close to schools and sports facilities
* Excellent central location in the Netherlands
In short: Vlasland 12 is not just a home, but a unique living experience where luxury, space, views, and tranquility come together.
Interested? Please contact Wilfred Janssen, NVM real estate agent at Netherlands Sotheby’s International Realty, or your own buying agent to schedule a viewing.
Wonen op een van de mooiste plekjes van de geliefde wijk Groenhouten – met uitzicht dat nooit verveelt.
Op een werkelijk toplocatie in de groene en kindvriendelijke wijk Groenhouten staat deze royaal uitgebouwde en verrassend luxe afgewerkte woning (ca. 2011 luxe verbouwd en aangebouwd onder architectuur van Designa, bekend van het TV programma “van Woonvilla naar Droomvilla”). Hier woon je direct aan een brede waterpartij, met een vrij en rustgevend uitzicht over het groen. Het is zo’n plek waar je ’s ochtends wakker wordt met het zachte geluid van fluitende vogels en waar je ’s avonds vanaf het terras geniet van de ondergaande zon die schittert op het water.
Dit is geen standaard woning – dit is een unieke woonbeleving.
Met een royaal woonoppervlak van ca. 161 m² en een perceel van 191 m² biedt deze woning ruimte, comfort en luxe in een bijzonder prettige setting. De voormalige garage is omgetoverd tot een ruime berging/bijkeuken en op de tweede verdieping zorgen brede dakkapellen voor extra licht en verrassend veel leefruimte. De unieke indeling en hoogwaardige afwerking maken deze woning absoluut onderscheidend binnen de wijk.
Een woning die je gezien móét hebben om de sfeer, ruimte en ligging echt te ervaren.
De indeling is als volgt:
Begane grond
Via de entree kom je in een ruime hal met garderobe, meterkast en een modern toilet met vrij hangend closet en fonteintje. Vanuit de hal is er toegang tot de praktische bijkeuken/berging voorzien van vaste kasten, een zijdeur en openslaande deuren aan de voorzijde.
De uitgebouwde woonkamer is zonder twijfel het hart van de woning – wat een ruimte en wat een uitzicht! Door de grote raampartijen kijk je hier vrij uit over het water en het omliggende groen. Dit is wonen met een permanent vakantiegevoel.
Aan de voorzijde bevindt zich de luxe uitgevoerde keuken (ca. 15 jaar oud), voorzien van alle wenselijke inbouwapparatuur (voornamelijk Gaggenau) en een prettige, praktische indeling.
Eerste verdieping – uw privé hotelsuite
Deze verdieping is volledig getransformeerd tot een indrukwekkende master suite. Het slaapgedeelte ligt aan de achterzijde en beschikt over een royale kastenwand. Centraal in de ruimte bevindt zich een vrijstaand ligbad met een luxe wastafelmeubel – een echte eyecatcher.
Aan de voorzijde bevinden zich een separate douchecabine en toilet. Het geheel voelt als een luxe hotelsuite waar comfort en beleving samenkomen.
Indien gewenst is deze verdieping eenvoudig weer in te delen als drie volwaardige slaapkamers, waardoor de woning ook perfect aansluit bij een groter gezin.
Tweede verdieping
De tweede verdieping biedt een ruime voorzolder met was- en droogmachine aansluitingen en cv-opstelling en volop bergruimte. Daarnaast is er een tweede badkamer met douche en wastafel en zijn er twee sfeervolle slaapkamers gerealiseerd. Dankzij de twee grote dakkapellen over vrijwel de volle breedte van de woning is hier een verrassend ruime en volwaardige verdieping ontstaan.
Tuin
De zonnige achtertuin is een ware oase van rust en privacy (geen achterburen). Direct aan de woning bevindt zich een ruim terras, perfect voor lange zomeravonden. Aan het water is een sfeervolle vlonder gerealiseerd, omringd door groene borders.
Hier woon je letterlijk in het groen, met water, rust en ruimte als dagelijks decor.
Ligging
De woning ligt aan een rustig hofje in de zeer gewilde en kindvriendelijke wijk Groenhouten. Leusden staat bekend als een groene, complete en uitstekend bereikbare woonplaats.
Binnen circa 15 minuten fietsen bereik je de historische binnenstad van Amersfoort én het NS-station Amersfoort Centraal. In Leusden zelf zijn uitgebreide voorzieningen aanwezig, waaronder de winkelcentra De Hamershof en De Nieuwe Biezenkamp, waar je terecht kunt voor dagelijkse boodschappen, winkels en diverse horeca.
Scholen, sportvoorzieningen en recreatiemogelijkheden zijn ruim aanwezig en uitstekend bereikbaar. Daarnaast liggen natuurgebieden, bossen en het buitengebied letterlijk om de hoek.
Met de nabijgelegen uitvalswegen (A1, A28, A30 en A12) zijn de Randstad en andere grote steden snel en eenvoudig bereikbaar.
Kortom: Vlasland 12 is geen gewone woning, maar een unieke woonbeleving op een van de mooiste plekken van Leusden. Luxe, ruimte, uitzicht en rust komen hier op uitzonderlijke wijze samen.
• Bijna het hele huis is voorzien van dubbel glas.
• Bijna alle vaste inbouw verlichting is voorzien van led.
• Verbouwing is gedaan onder architectuur van Designa.
• Onder de vloerbedekking woonkamer ligt voor een groot deel een kersenhouten parketvloer.
• De beide terrassen aan de achterzijde zijn onderheid waardoor deze zeer stabiel zijn en niet verzakken. De grond, waarop het achterste terras staat, is gehuurd van de gemeente.
• Achterzijde zuid.
• Buiten verlichting.
• Schitterend vrij uitzicht achter op park met fraaie vijver en oude bomen.
• Loopafstand van het centrum met winkels en horeca.
• Diverse basis scholen, voortgezet onderwijs is dichtbij in Amersfoort.
• Goed verenigingsleven met diverse sportclubs (hockey, voetbal, tennis, korfbal etc.). Natuur is dichtbij voor fietsen en wandelen in de buurt en op de Utrechtse heuvelrug.
• Een rustig dorp direct bij Amersfoort en dus centraal in Nederland gelegen nabij de A28, A12 en A1.
Geïnteresseerd in deze villa? Neem contact op met Wilfred Janssen, NVM-makelaar bij Netherlands Sotheby’s International Realty, of met uw eigen aankoopmakelaar om een bezichtiging in te plannen.
English:
Living in one of the most beautiful spots in the sought-after Groenhouten district – with a view that never gets boring.
Situated in a truly prime location in the green and family-friendly district of Leusden, this generously extended and surprisingly luxurious home (extensively renovated and enlarged around 2011 under the architecture of Designa, known from the TV program “Van Woonvilla naar Droomvilla”) offers a unique living experience. Here you live directly on a wide waterway, enjoying open and tranquil views over greenery. Wake up to birdsong and end your day watching the sunset reflect on the water from your terrace.
This is not a standard home – this is a lifestyle.
With a generous living area of approx. 161 m² and a plot of 191 m², this property offers space, comfort, and luxury in an exceptional setting. The former garage has been transformed into a spacious utility/storage room, and large dormers on the second floor provide extra light and living space. The unique layout and high-quality finishes make this home truly stand out.
A property you must see to fully experience the atmosphere, space, and location.
Layout
Ground floor
Entrance into a spacious hall with wardrobe, meter cupboard, and modern toilet. Access to a practical utility/storage room with built-in cupboards, side entrance, and double doors at the front.
The extended living room is undoubtedly the heart of the home – spacious and with stunning views over water and greenery through large windows. A permanent holiday feeling.
At the front, the luxury kitchen (approx. 15 years old) is equipped with high-end built-in appliances (mainly Gaggenau) and a practical layout.
First floor – your private hotel suite
Fully transformed into an impressive master suite. The bedroom at the rear features a large wardrobe wall. A freestanding bathtub and luxury vanity unit form a central eye-catcher.
At the front are a separate shower and toilet. The entire floor feels like a luxury hotel suite.
If desired, this floor can easily be reconfigured into three full bedrooms.
Second floor
Spacious landing with laundry connections, boiler setup, and storage. Second bathroom with shower and sink, plus two charming bedrooms. Large dormers create a surprisingly spacious level.
Garden
Sunny, private backyard (no rear neighbors) with a large terrace and a waterfront deck surrounded by greenery. A peaceful oasis where water, space, and nature define daily living.
Location
Located in a quiet cul-de-sac in Groenhouten, one of Leusden’s most desirable neighborhoods. Within 15 minutes by bike you reach the historic center and station of Amersfoort.
Leusden offers excellent amenities, including shopping centers De Hamershof and De Nieuwe Biezenkamp. Schools, sports facilities, and nature areas are all nearby. Major highways (A1, A28, A30, A12) ensure excellent connectivity.
Key features
* Double glazing throughout most of the house
* LED lighting throughout
* Renovation under architecture by Designa
* Cherry wood parquet beneath living room flooring
* Pile-founded terraces (stable, no subsidence)
* South-facing garden
* Stunning unobstructed park and water views
* Walking distance to shops and restaurants
* Close to schools and sports facilities
* Excellent central location in the Netherlands
In short: Vlasland 12 is not just a home, but a unique living experience where luxury, space, views, and tranquility come together.
Interested? Please contact Wilfred Janssen, NVM real estate agent at Netherlands Sotheby’s International Realty, or your own buying agent to schedule a viewing.
| Vastgoed ID | NY100476 |
|---|---|
| Vraagprijs | € 789.000 k.k. |
| Woningtype | Villa |
| Woonopp. | 161 m² |
| Perceelopp. | 193 m² |
| Bouwjaar | 1975 |
| Renovatiejaar | - |
| Slaapkamers | 3 |
| Badkamers | 2 |
| Garages | 1 |
| Energielabel | B |
Netherlands Sotheby's International Realty Emmalaan 23, 1075 AT Amsterdam
- Telefoon:+31.88.37.47.000
- Email:info@sothebysrealty.nl
- Website:www.sothebysrealty.nl
- Maandag - VrijdagOpen van 09.00 - 17.00
- Zaterdag - ZondagGesloten









































