Villa te koop in WASSENAAR met referentie 19109082111
Van Zuylen van Nijeveltstraat 145, 2242 AM WASSENAAR—Ref. WR104502
Zojuist stijlvol gerenoveerd en uitgebouwd jaren '30 hoekhuis (eindwoning) in Wassenaar – instapklaar en energiezuinig!
Bent je op zoek naar een licht, ruim en volledig gemoderniseerde jaren ’30 woning op steenworp afstand van het oude dorpscentrum van Wassenaar?
Dit charmante object is in 2025 grondig gerenoveerd en uitgebouwd met oog voor detail en hoogwaardige afwerking. Dankzij de volledige isolatie (gevel, vloer en dak), triple glas en een hybride warmtepomp geniet je hier van optimaal wooncomfort én een laag energieverbruik (energielabel A). Met een woonoppervlakte van 137 m² biedt dit huis ruimte, stijl en comfort – ideaal voor gezinnen met jonge kinderen of voor wie juist royaal wil blijven wonen nu de kinderen uit huis zijn.
De woning ligt op loopafstand van het gezellige centrum van Wassenaar met winkels, horeca en dagelijkse voorzieningen. Scholen, sportclubs en openbaar vervoer bevinden zich eveneens dichtbij. Ook het strand, de duinen en uitvalswegen richting Den Haag, Amsterdam en Rotterdam zijn uitstekend bereikbaar.
Indeling:
Begane grond: de begane grond - met vloerverwarming - is één sfeervol geheel: een royale woonkamer met veel daglicht, een gezellige ontbijtplek, een moderne keuken met diverse inbouwapparatuur (Siemens), een comfortabele zithoek én ruimte voor een grote eettafel om uitgebreid te tafelen of te borrelen. In de tuin (ZW) geniet men vanaf 13.00 uur tot het einde van de dag van de zon. De tuin heeft ook een achterom.
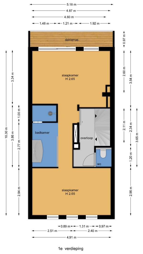
Eerste verdieping: hier tref je de ruime ouderslaapkamer aan met veel hoogte en toegang tot het balkon aan de achterzijde, een nieuwe badkamer met wastafelmeubel en inloopdouche, een tweede slaapkamer die voorheen uit twee (slaap)kamers bestond – ruim en multifunctioneel. Het toilet is separaat te bereiken via de overloop.
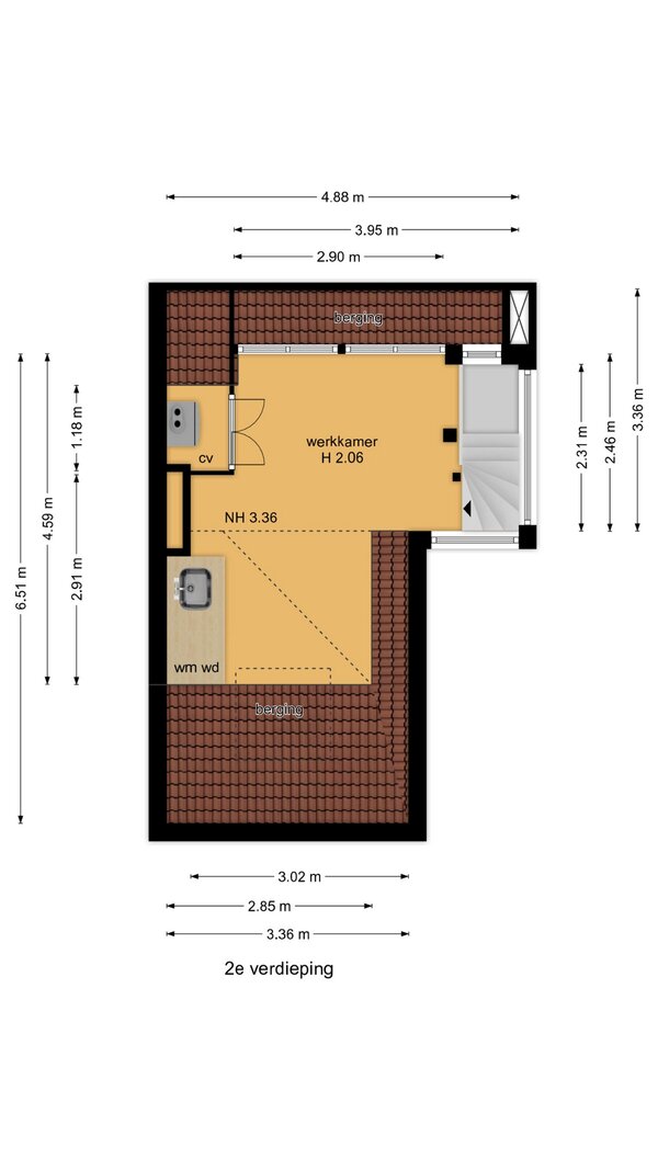
Tweede verdieping: hier is een prachtige lichte ruimte gecreëerd door middel van een grote dakkapel/opbouw. Deze zorgt met het vele (triple)glas voor bijzonder veel lichtinval, ideaal voor werk of hobbyruimte. Hier is nu een praktische opstelplaats voor de wasmachine en droger gerealiseerd. Ook is deze ruimte groot genoeg om als 3e slaapkamer te gebruiken.
Bijzonderheden:
- karaktervol jaren ’30 hoekhuis (eindwoning);
- veel lichtinval door grote raampartijen;
- in 2025 volledig gerenoveerd, geïsoleerd en uitgebouwd;
- vloerverwarming begane grond, triple glas en hybride warmtepomp;
- Energielabel A;
- Zonnige achtertuin (ZW) met achterom;
- 4 kamers met verschillende mogelijkheden;
- Centrale ligging nabij centrum, strand en uitvalswegen;
- Oplevering in overleg;
- Ouderdomsclausule en asbestclausule van toepassing op de koopovereenkomst.
Deze informatie is door ons met de nodige zorgvuldigheid samengesteld. Onzerzijds wordt echter geen enkele aansprakelijkheid aanvaard voor enige onvolledigheid, onjuistheid of anderszins, dan wel de gevolgen daarvan. Alle opgegeven maten en oppervlakten zijn indicatief. Van toepassing zijn de NVM voorwaarden.
Ben je enthousiast geworden en wil je binnenkijken, sfeer proeven en de ruimte beleven?
We laten deze unieke woning aan de van Zuylen van Nijeveltstraat 145 graag zien!
Bent je op zoek naar een licht, ruim en volledig gemoderniseerde jaren ’30 woning op steenworp afstand van het oude dorpscentrum van Wassenaar?
Dit charmante object is in 2025 grondig gerenoveerd en uitgebouwd met oog voor detail en hoogwaardige afwerking. Dankzij de volledige isolatie (gevel, vloer en dak), triple glas en een hybride warmtepomp geniet je hier van optimaal wooncomfort én een laag energieverbruik (energielabel A). Met een woonoppervlakte van 137 m² biedt dit huis ruimte, stijl en comfort – ideaal voor gezinnen met jonge kinderen of voor wie juist royaal wil blijven wonen nu de kinderen uit huis zijn.
De woning ligt op loopafstand van het gezellige centrum van Wassenaar met winkels, horeca en dagelijkse voorzieningen. Scholen, sportclubs en openbaar vervoer bevinden zich eveneens dichtbij. Ook het strand, de duinen en uitvalswegen richting Den Haag, Amsterdam en Rotterdam zijn uitstekend bereikbaar.
Indeling:
Begane grond: de begane grond - met vloerverwarming - is één sfeervol geheel: een royale woonkamer met veel daglicht, een gezellige ontbijtplek, een moderne keuken met diverse inbouwapparatuur (Siemens), een comfortabele zithoek én ruimte voor een grote eettafel om uitgebreid te tafelen of te borrelen. In de tuin (ZW) geniet men vanaf 13.00 uur tot het einde van de dag van de zon. De tuin heeft ook een achterom.
Eerste verdieping: hier tref je de ruime ouderslaapkamer aan met veel hoogte en toegang tot het balkon aan de achterzijde, een nieuwe badkamer met wastafelmeubel en inloopdouche, een tweede slaapkamer die voorheen uit twee (slaap)kamers bestond – ruim en multifunctioneel. Het toilet is separaat te bereiken via de overloop.
Tweede verdieping: hier is een prachtige lichte ruimte gecreëerd door middel van een grote dakkapel/opbouw. Deze zorgt met het vele (triple)glas voor bijzonder veel lichtinval, ideaal voor werk of hobbyruimte. Hier is nu een praktische opstelplaats voor de wasmachine en droger gerealiseerd. Ook is deze ruimte groot genoeg om als 3e slaapkamer te gebruiken.
Bijzonderheden:
- karaktervol jaren ’30 hoekhuis (eindwoning);
- veel lichtinval door grote raampartijen;
- in 2025 volledig gerenoveerd, geïsoleerd en uitgebouwd;
- vloerverwarming begane grond, triple glas en hybride warmtepomp;
- Energielabel A;
- Zonnige achtertuin (ZW) met achterom;
- 4 kamers met verschillende mogelijkheden;
- Centrale ligging nabij centrum, strand en uitvalswegen;
- Oplevering in overleg;
- Ouderdomsclausule en asbestclausule van toepassing op de koopovereenkomst.
Deze informatie is door ons met de nodige zorgvuldigheid samengesteld. Onzerzijds wordt echter geen enkele aansprakelijkheid aanvaard voor enige onvolledigheid, onjuistheid of anderszins, dan wel de gevolgen daarvan. Alle opgegeven maten en oppervlakten zijn indicatief. Van toepassing zijn de NVM voorwaarden.
Ben je enthousiast geworden en wil je binnenkijken, sfeer proeven en de ruimte beleven?
We laten deze unieke woning aan de van Zuylen van Nijeveltstraat 145 graag zien!
| Vastgoed ID | WR104502 |
|---|---|
| Vraagprijs | € 825.000 k.k. |
| Woningtype | Villa |
| Woonopp. | 137 m² |
| Perceelopp. | 135 m² |
| Bouwjaar | 1938 |
| Renovatiejaar | - |
| Slaapkamers | 3 |
| Badkamers | 1 |
| Garages | - |
| Energielabel | A |
Welp Makelaardij Van Hogendorpstraat 16 d, 2242 KZ Wassenaar
- Telefoon:+31.070.51.11.720
- Email:info@welpmakelaardij.nl
- Website:www.welpmakelaardij.nl
- Maandag - VrijdagOpen van 09.00 - 17.30
- Zaterdag Open van 10.00 - 14.00
- Zondag Gesloten














































