Villa te koop in BLARICUM met referentie 19310866391
Sint Josephweg 2, 1261 XD BLARICUM—Ref. BM100855
Ruimtelijk, licht en comfortabel wonen in het hart van Blaricum
Aan een rustige en geliefde straat in het groene Blaricum ligt deze bijzonder comfortabele en veelzijdige woning aan de Sint Josephweg 2. Een huis dat zich onderscheidt door zijn royale opzet, praktische indeling en meerdere volwaardige woonlagen. Hier woont u in alle rust, met het dorpscentrum, natuur en voorzieningen op korte afstand.
De woning is met zorg ingedeeld en biedt volop ruimte voor wonen, werken en ontspannen. Dankzij de combinatie van een ruim souterrain, een comfortabele begane grond en een lichte verdieping is dit een huis dat zich moeiteloos aanpast aan verschillende levensfases en woonwensen.
Indeling
Souterrain
Het souterrain vormt een verrassend ruime en functionele extra woonlaag. Via de interne trap bereikt u de hal met wijnkelder, die toegang biedt tot de verschillende vertrekken.
Aan de voorzijde bevindt zich een royale hobbykamer, met een prettige plafondhoogte en daglichttoetreding, waardoor deze ruimte uitstekend geschikt is als werk-, sport- of speelkamer, maar ook als extra slaapkamer, thans in gebruik als Man Cave.
Centraal ligt de praktische bijkeuken met stookruimte, ruim opgezet en voorzien van aansluitingen voor wasapparatuur.
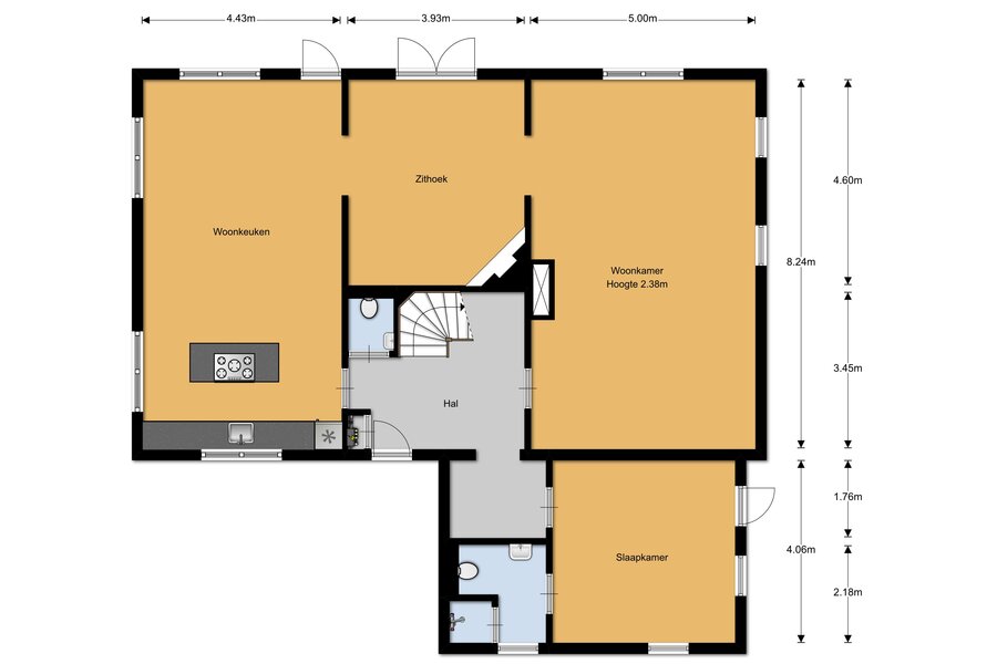
Begane grond
De entree leidt naar een ruime hal met toilet en trapopgang. Vanuit hier ontvouwt zich een prettige en overzichtelijke woonverdieping, waar leefruimtes logisch op elkaar aansluiten.
Aan de voorzijde ligt de royale woonkeuken, een lichte en uitnodigende ruimte die het hart van de woning vormt. Hier is volop plaats voor een grote eettafel, waardoor dit een ideale plek is voor zowel dagelijks gebruik als gezellige diners met familie en vrienden.
Centraal in de woning bevindt zich de zithoek, die in open verbinding staat met zowel de keuken als de woonkamer en zorgt voor een natuurlijke doorloop en een ruimtelijk gevoel.
De woonkamer aan de achterzijde is ruim van opzet en wordt gekenmerkt door grote raampartijen die zorgen voor veel lichtinval en een fijne verbinding met buiten. Een comfortabele leefruimte waar rust en privacy centraal staan.
Daarnaast beschikt de begane grond over een slaapkamer, waardoor gelijkvloers wonen mogelijk is. Aangrenzend bevindt zich de badkamer, praktisch gesitueerd en direct toegankelijk vanuit de hal. Dit maakt deze verdieping uitermate geschikt voor levensloopbestendig wonen of het ontvangen van gasten.
Verdieping
Op de verdieping komt u uit op een ruime vide, die zorgt voor een open karakter en een prettige lichtinval op deze woonlaag.
Hier bevinden zich meerdere slaapkamers, allen van goed formaat en flexibel in te delen als slaap-, werk- of logeerkamer. De kamers bieden voldoende ruimte voor een tweepersoonsbed. Twee kamers hebben een ruime inloopkast, de derde kamer heeft een vaste kast.
Centraal op deze verdieping ligt de badkamer, compleet ingericht met ligbad, douche, dubbele wastafel en toilet. De centrale ligging maakt deze badkamer voor alle slaapkamers gemakkelijk bereikbaar.
De vide en overloop versterken het ruimtelijke gevoel en dragen bij aan de comfortabele en overzichtelijke indeling van deze verdieping.
Bijgebouw
Op het perceel bevindt zich een veelzijdig en goed onderhouden bijgebouw dat momenteel in gebruik is als garage, maar dankzij de indeling en afwerking uiteenlopende gebruiksmogelijkheden biedt. De garage is ruim opgezet en biedt volop plaats voor het stallen van een auto, fietsen en/of extra opslag. Door de praktische afmetingen, de verdieping en solide constructie is deze ruimte ook zeer geschikt voor hobbygebruik of als gastenverblijf.
Aan de achterzijde van het bijgebouw bevindt zich een fraaie, aangebouwde overkapping die volledig is omsloten met glas. Deze lichte en beschutte ruimte wordt momenteel gebruikt als atelier en vormt een inspirerende plek om te werken, creëren of ontspannen. Dankzij de glazen wanden geniet u hier van veel daglicht en een prettige verbinding met de tuin, terwijl u tegelijkertijd beschut zit tegen weer en wind.
Wonen in Blaricum
Sint Josephweg 2 combineert ruimte, comfort en een prettige ligging in één aantrekkelijk geheel. De woning bevindt zich in een rustige woonomgeving, terwijl het charmante dorpscentrum van Blaricum, scholen, sportverenigingen en natuurgebieden zich op korte afstand bevinden. Ook de bereikbaarheid richting uitvalswegen is uitstekend.
Bijzonderheden
- Woonoppervlakte: 307 m²
- Bijgebouw: 35 m² exclusief atelier van 15m²
- Perceeloppervlakte: 960 m²
- Bouwjaar: 2004
- Gedeeltelijk voorzien van vloerverwarming
- Electra en verwarmingsinstallatie vernieuwd in 2023
- Uitgebreid ventilatiesysteem
- Nieuw alarmsysteem
- Fraai onder architectuur aangelegde tuin met verlichting
Voor een uitgebreide rondleiding in deze bijzonder comfortabele en veelzijdige woning kunt u contact opnemen met Jacques Walch, NVM Register Makelaar. Nog beter is het om uw eigen NVM-aankoopmakelaar mee te nemen.
Ook kunt u elke zaterdag tussen 10.00 en 14.00 uur bij ons op kantoor aan de Torenlaan 12D in Blaricum binnenlopen voor extra informatie – onder het genot van een cappuccino met verse appeltaart.
Aan een rustige en geliefde straat in het groene Blaricum ligt deze bijzonder comfortabele en veelzijdige woning aan de Sint Josephweg 2. Een huis dat zich onderscheidt door zijn royale opzet, praktische indeling en meerdere volwaardige woonlagen. Hier woont u in alle rust, met het dorpscentrum, natuur en voorzieningen op korte afstand.
De woning is met zorg ingedeeld en biedt volop ruimte voor wonen, werken en ontspannen. Dankzij de combinatie van een ruim souterrain, een comfortabele begane grond en een lichte verdieping is dit een huis dat zich moeiteloos aanpast aan verschillende levensfases en woonwensen.
Indeling
Souterrain
Het souterrain vormt een verrassend ruime en functionele extra woonlaag. Via de interne trap bereikt u de hal met wijnkelder, die toegang biedt tot de verschillende vertrekken.
Aan de voorzijde bevindt zich een royale hobbykamer, met een prettige plafondhoogte en daglichttoetreding, waardoor deze ruimte uitstekend geschikt is als werk-, sport- of speelkamer, maar ook als extra slaapkamer, thans in gebruik als Man Cave.
Centraal ligt de praktische bijkeuken met stookruimte, ruim opgezet en voorzien van aansluitingen voor wasapparatuur.
Begane grond
De entree leidt naar een ruime hal met toilet en trapopgang. Vanuit hier ontvouwt zich een prettige en overzichtelijke woonverdieping, waar leefruimtes logisch op elkaar aansluiten.
Aan de voorzijde ligt de royale woonkeuken, een lichte en uitnodigende ruimte die het hart van de woning vormt. Hier is volop plaats voor een grote eettafel, waardoor dit een ideale plek is voor zowel dagelijks gebruik als gezellige diners met familie en vrienden.
Centraal in de woning bevindt zich de zithoek, die in open verbinding staat met zowel de keuken als de woonkamer en zorgt voor een natuurlijke doorloop en een ruimtelijk gevoel.
De woonkamer aan de achterzijde is ruim van opzet en wordt gekenmerkt door grote raampartijen die zorgen voor veel lichtinval en een fijne verbinding met buiten. Een comfortabele leefruimte waar rust en privacy centraal staan.
Daarnaast beschikt de begane grond over een slaapkamer, waardoor gelijkvloers wonen mogelijk is. Aangrenzend bevindt zich de badkamer, praktisch gesitueerd en direct toegankelijk vanuit de hal. Dit maakt deze verdieping uitermate geschikt voor levensloopbestendig wonen of het ontvangen van gasten.
Verdieping
Op de verdieping komt u uit op een ruime vide, die zorgt voor een open karakter en een prettige lichtinval op deze woonlaag.
Hier bevinden zich meerdere slaapkamers, allen van goed formaat en flexibel in te delen als slaap-, werk- of logeerkamer. De kamers bieden voldoende ruimte voor een tweepersoonsbed. Twee kamers hebben een ruime inloopkast, de derde kamer heeft een vaste kast.
Centraal op deze verdieping ligt de badkamer, compleet ingericht met ligbad, douche, dubbele wastafel en toilet. De centrale ligging maakt deze badkamer voor alle slaapkamers gemakkelijk bereikbaar.
De vide en overloop versterken het ruimtelijke gevoel en dragen bij aan de comfortabele en overzichtelijke indeling van deze verdieping.
Bijgebouw
Op het perceel bevindt zich een veelzijdig en goed onderhouden bijgebouw dat momenteel in gebruik is als garage, maar dankzij de indeling en afwerking uiteenlopende gebruiksmogelijkheden biedt. De garage is ruim opgezet en biedt volop plaats voor het stallen van een auto, fietsen en/of extra opslag. Door de praktische afmetingen, de verdieping en solide constructie is deze ruimte ook zeer geschikt voor hobbygebruik of als gastenverblijf.
Aan de achterzijde van het bijgebouw bevindt zich een fraaie, aangebouwde overkapping die volledig is omsloten met glas. Deze lichte en beschutte ruimte wordt momenteel gebruikt als atelier en vormt een inspirerende plek om te werken, creëren of ontspannen. Dankzij de glazen wanden geniet u hier van veel daglicht en een prettige verbinding met de tuin, terwijl u tegelijkertijd beschut zit tegen weer en wind.
Wonen in Blaricum
Sint Josephweg 2 combineert ruimte, comfort en een prettige ligging in één aantrekkelijk geheel. De woning bevindt zich in een rustige woonomgeving, terwijl het charmante dorpscentrum van Blaricum, scholen, sportverenigingen en natuurgebieden zich op korte afstand bevinden. Ook de bereikbaarheid richting uitvalswegen is uitstekend.
Bijzonderheden
- Woonoppervlakte: 307 m²
- Bijgebouw: 35 m² exclusief atelier van 15m²
- Perceeloppervlakte: 960 m²
- Bouwjaar: 2004
- Gedeeltelijk voorzien van vloerverwarming
- Electra en verwarmingsinstallatie vernieuwd in 2023
- Uitgebreid ventilatiesysteem
- Nieuw alarmsysteem
- Fraai onder architectuur aangelegde tuin met verlichting
Voor een uitgebreide rondleiding in deze bijzonder comfortabele en veelzijdige woning kunt u contact opnemen met Jacques Walch, NVM Register Makelaar. Nog beter is het om uw eigen NVM-aankoopmakelaar mee te nemen.
Ook kunt u elke zaterdag tussen 10.00 en 14.00 uur bij ons op kantoor aan de Torenlaan 12D in Blaricum binnenlopen voor extra informatie – onder het genot van een cappuccino met verse appeltaart.
| Vastgoed ID | BM100855 |
|---|---|
| Vraagprijs | € 2.695.000 k.k. |
| Woningtype | Villa |
| Woonopp. | 307 m² |
| Perceelopp. | 960 m² |
| Bouwjaar | 2004 |
| Renovatiejaar | - |
| Slaapkamers | 4 |
| Badkamers | 2 |
| Garages | 1 |
| Energielabel | B |
Voorma en Walch Blaricum Torenlaan 12 D, 1261 GD Blaricum
- Telefoon:+31.35.531.53.00
- Email:blaricum@voorma-walch.nl
- Website:voorma-walch.nl
- Maandag - VrijdagOpen van 08.30 - 17.30
- Zaterdag Open van 10.00 - 16.00
- Zondag Gesloten























































