Villa te koop in HUIZEN met referentie 19410091426
Herdersweg 21, 1272 AG HUIZEN—Ref. HN103611
Royale uitgebouwde en goed onderhouden helft van dubbele Villa gelegen in de gewilde wijk Westereng op loopafstand van het bos.
Deze jaren- 30 woning met 3 slaapkamers (voorheen 4) en 2 badkamers heeft een heerlijke tuin aan de voor- en achterzijde waardoor privacy gewaarborgd is. Parkeren op eigen terrein is geregeld evenals de mogelijkheid tot opladen.
In 2019 en 2022 is de woning goed gemoderniseerd. Er is een compleet nieuwe aanbouw gemaakt waar nu de prachtige leefkeuken met houthaard en openslaande deuren is gehuisvest. Tevens heeft er op de eerste verdieping een transformatie plaatsgevonden met een luxe uitgevoerde badkamer.
In deze zeer rustige en lommerrijke villawijk (Westereng), aan een weg zonder doorgaand verkeer, op loopafstand van natuurreservaat en nabij het Gooimeer, scholen en het centrum van Huizen, gelegen royale helft van dubbele villa met privacy en stenen berging op een ruim perceel van 532m².
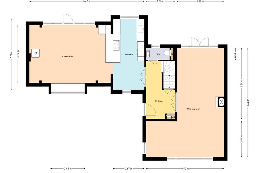
indeling:
Entree, Hal, trap naar de kelder, modern toilet met fontein, openslaande deuren naar de woonkamer.
Woonkamer beschikt over een open haard, twee zithoeken, een half open werkkamer met uitzicht op de ruime voortuin en openslaande deuren naar de achtertuin.
Vanuit de hal is de in 2019 aangebouwde ruime keuken te betreden. Deze keuken heeft een prachtige uitstraling, hoog plafond, warme houtkachel en een schuifpui over de gehele lengte aan de tuinzijde. Door gebruik van moderne techniek beschikt het raam naar de voortuin over elektrisch geblindeerd glas.
Eerste verdieping:
Overloop, ruime slaapkamer aan de achterzijde met airco en inbouwkast, ruime slaapkamer met doorloop naar een inloopkast, voorheen een slaapkamer. Gemoderniseerde badkamer uit 2022 met vloerverwarming, een heerlijk ligbad, wastafelmeubel, inloopdouche, toilet en handdoekradiator. De vloer en wanden zijn in Arabescato Verde marmer en quartz uitgevoerd.
Tweede verdieping:
overloop met ruimte voor wasmachine- en drogeraansluiting, ruime slaapkamer met dakkapel en toegang cv-ruimte, 2e badkamer met toilet, wastafelmeubel en inloopdouche.
Tuin:
De voortuin beschikt over twee parkeerplaatsen op eigen terrein die zijn afgescheiden door een volle beukhaag van de fraai aangelegde tuin. De voortuin heeft een grasveld met ingebouwde trampoline. De besloten achtertuin met groene haag is bereikbaar via een poort en beschikt over een ruime berging en veel privacy.
Bijzonderheden:
- Air-conditioning 2024
- Schilderwerk buiten 2024
- Badkamer vernieuwd in 2022
- 12 Zonnepanelen geplaatst 2021
- Keukenuitbouw gemaakt in 2019
- Energielabel B
Deze goed onderhouden woning is zeker een bezichtiging waard. Voor meer informatie kunt u contact opnemen met de makelaar Jan-Willem Baas of het kantoor bellen voor een afspraak.
Deze jaren- 30 woning met 3 slaapkamers (voorheen 4) en 2 badkamers heeft een heerlijke tuin aan de voor- en achterzijde waardoor privacy gewaarborgd is. Parkeren op eigen terrein is geregeld evenals de mogelijkheid tot opladen.
In 2019 en 2022 is de woning goed gemoderniseerd. Er is een compleet nieuwe aanbouw gemaakt waar nu de prachtige leefkeuken met houthaard en openslaande deuren is gehuisvest. Tevens heeft er op de eerste verdieping een transformatie plaatsgevonden met een luxe uitgevoerde badkamer.
In deze zeer rustige en lommerrijke villawijk (Westereng), aan een weg zonder doorgaand verkeer, op loopafstand van natuurreservaat en nabij het Gooimeer, scholen en het centrum van Huizen, gelegen royale helft van dubbele villa met privacy en stenen berging op een ruim perceel van 532m².
indeling:
Entree, Hal, trap naar de kelder, modern toilet met fontein, openslaande deuren naar de woonkamer.
Woonkamer beschikt over een open haard, twee zithoeken, een half open werkkamer met uitzicht op de ruime voortuin en openslaande deuren naar de achtertuin.
Vanuit de hal is de in 2019 aangebouwde ruime keuken te betreden. Deze keuken heeft een prachtige uitstraling, hoog plafond, warme houtkachel en een schuifpui over de gehele lengte aan de tuinzijde. Door gebruik van moderne techniek beschikt het raam naar de voortuin over elektrisch geblindeerd glas.
Eerste verdieping:
Overloop, ruime slaapkamer aan de achterzijde met airco en inbouwkast, ruime slaapkamer met doorloop naar een inloopkast, voorheen een slaapkamer. Gemoderniseerde badkamer uit 2022 met vloerverwarming, een heerlijk ligbad, wastafelmeubel, inloopdouche, toilet en handdoekradiator. De vloer en wanden zijn in Arabescato Verde marmer en quartz uitgevoerd.
Tweede verdieping:
overloop met ruimte voor wasmachine- en drogeraansluiting, ruime slaapkamer met dakkapel en toegang cv-ruimte, 2e badkamer met toilet, wastafelmeubel en inloopdouche.
Tuin:
De voortuin beschikt over twee parkeerplaatsen op eigen terrein die zijn afgescheiden door een volle beukhaag van de fraai aangelegde tuin. De voortuin heeft een grasveld met ingebouwde trampoline. De besloten achtertuin met groene haag is bereikbaar via een poort en beschikt over een ruime berging en veel privacy.
Bijzonderheden:
- Air-conditioning 2024
- Schilderwerk buiten 2024
- Badkamer vernieuwd in 2022
- 12 Zonnepanelen geplaatst 2021
- Keukenuitbouw gemaakt in 2019
- Energielabel B
Deze goed onderhouden woning is zeker een bezichtiging waard. Voor meer informatie kunt u contact opnemen met de makelaar Jan-Willem Baas of het kantoor bellen voor een afspraak.
| Vastgoed ID | HN103611 |
|---|---|
| Vraagprijs | € 1.395.000 k.k. |
| Woningtype | Villa |
| Woonopp. | 193 m² |
| Perceelopp. | 532 m² |
| Bouwjaar | 1938 |
| Renovatiejaar | - |
| Slaapkamers | 4 |
| Badkamers | 2 |
| Garages | - |
| Energielabel | B |
Voorma en Walch Huizen Ceintuurbaan 22, 1271 BJ Huizen
- Telefoon:+31.35.525.31.35
- Email:huizen@voorma-walch.nl
- Website:www.voorma-walch.nl
- Maandag - VrijdagOpen van 08.30 - 17.30
- Zaterdag - ZondagGesloten













































