Villa te koop in HUIZEN met referentie 19810786756
Albardastraat 7, 1272 GV HUIZEN—Ref. HN103617
Recent verbouwde helft van een dubbel woonhuis (2020), gelegen in de gewilde Zuidereng met een vrijstaande stenen garage, op een zonnig en besloten perceel van 311m² met de achtertuin op het zuiden. Oprit voor uw auto. Aantrekkelijk gelegen bij school, om de hoek van natuurgebied, nabij de winkels in het oude dorp.
Globale indeling:
Entree, ruime hal, toilet met fontein, meterkast, vaste kast, stahoge provisiekelder.
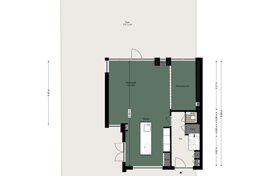
Ruime en lichte uitgebouwde woonkamer met open gashaard en doorkijk naar de tuin, openslaande deuren naar de achtertuin, moderne en gezellige keuken met kookeiland en voorzien van alle denkbare luxe apparatuur, openslaande deuren naar de zijtuin.
Begane grond is voorzien van vloerverwarming.
1ste verdieping:
Overloop, 2 royale slaapkamers met vaste kasten, moderne badkamer uit 2020 met vloerverwarming en voorzien van een inloopdouche met dubbele douchekoppen, glazen douchewand met verwarmd frame, wastafelmeubel met 2 kranen en tweede toilet, separate was- en droogruimte (voorheen de badkamer), vaste trap naar;
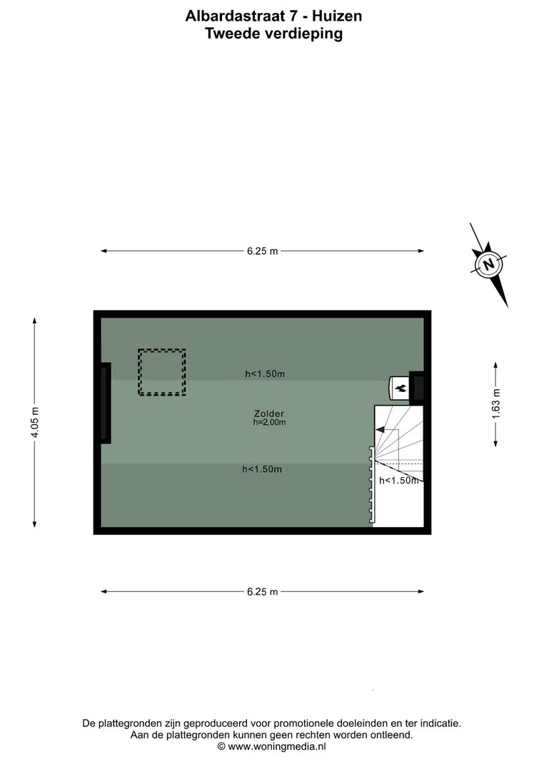
Tweede verdieping:
Bergzolder welke door te weinig daglichttoetreding niet meetelt als woonoppervlakte. Een mooie verdieping met veel mogelijkheden.
Bijzonderheden:
- Verbouwing in 2020 uitgevoerd door de aannemer Vreeswijk en Koebrugge te Huizen
- Fantastische zij en achter uitbouw
- Vrijwel alles dubbel glas in Hr++
- Elektra vervangen in 2020
- Royale vrijstaande stenen berging in de achtertuin
- Heerlijke tuin met automatische beregeningssysteem, zeer zonnige op het Zuiden gelegen, met veel privacy, terrassen rondom het huis zijn aangelegd met hoogwaardige composiet vlonderplanken
- Automatische buitenverlichting met sensoren op een tijdklok in hele tuin
- Naast de garage oprit voor 1 auto
Globale indeling:
Entree, ruime hal, toilet met fontein, meterkast, vaste kast, stahoge provisiekelder.
Ruime en lichte uitgebouwde woonkamer met open gashaard en doorkijk naar de tuin, openslaande deuren naar de achtertuin, moderne en gezellige keuken met kookeiland en voorzien van alle denkbare luxe apparatuur, openslaande deuren naar de zijtuin.
Begane grond is voorzien van vloerverwarming.
1ste verdieping:
Overloop, 2 royale slaapkamers met vaste kasten, moderne badkamer uit 2020 met vloerverwarming en voorzien van een inloopdouche met dubbele douchekoppen, glazen douchewand met verwarmd frame, wastafelmeubel met 2 kranen en tweede toilet, separate was- en droogruimte (voorheen de badkamer), vaste trap naar;
Tweede verdieping:
Bergzolder welke door te weinig daglichttoetreding niet meetelt als woonoppervlakte. Een mooie verdieping met veel mogelijkheden.
Bijzonderheden:
- Verbouwing in 2020 uitgevoerd door de aannemer Vreeswijk en Koebrugge te Huizen
- Fantastische zij en achter uitbouw
- Vrijwel alles dubbel glas in Hr++
- Elektra vervangen in 2020
- Royale vrijstaande stenen berging in de achtertuin
- Heerlijke tuin met automatische beregeningssysteem, zeer zonnige op het Zuiden gelegen, met veel privacy, terrassen rondom het huis zijn aangelegd met hoogwaardige composiet vlonderplanken
- Automatische buitenverlichting met sensoren op een tijdklok in hele tuin
- Naast de garage oprit voor 1 auto
| Vastgoed ID | HN103617 |
|---|---|
| Vraagprijs | € 825.000 k.k. |
| Woningtype | Villa |
| Woonopp. | 106 m² |
| Perceelopp. | 311 m² |
| Bouwjaar | 1965 |
| Renovatiejaar | - |
| Slaapkamers | 3 |
| Badkamers | 1 |
| Garages | 1 |
| Energielabel | D |
Voorma en Walch Huizen Ceintuurbaan 22, 1271 BJ Huizen
- Telefoon:+31.35.525.31.35
- Email:huizen@voorma-walch.nl
- Website:www.voorma-walch.nl
- Maandag - VrijdagOpen van 08.30 - 17.30
- Zaterdag - ZondagGesloten

















































