Villa te koop in WASSENAAR met referentie 19408777205
Van Brienenlaan 26, 2244 BP WASSENAAR—Ref. NY100319
Exclusief Landgoed in Wassenaar: Een Tijdloos Meesterwerk van Luxe en Rust
Stelt u zich een leven voor waarin elegantie, comfort en rust samensmelten tot een ongeëvenaarde levensstijl. Dit adembenemende nieuwgebouwde landhuis, gelegen op een uitgestrekt landgoed van ruim 5 hectare in het prestigieuze Wassenaar, is een juweel van tijdloze allure. Te midden van weelderige natuur geniet u hier van absolute privacy, terwijl het strand en de binnenstad van Den Haag zich op slechts een steenworp afstand bevinden.
Een Koninklijk Ontvangst
De oprijlaan leidt u naar een indrukwekkende entree die direct de toon zet voor de grandeur die dit landgoed biedt. De statige hal verwelkomt u met hoge plafonds, een elegante houten trap en een harmonieuze indeling die luxe ademt. Dubbele deuren openen naar de vorstelijke living en een lichte tuinkamer, beide badend in natuurlijk licht en met een schilderachtig uitzicht over uw eigen domein.
Wonen in Klasse en Comfort
Het landhuis beschikt over vijf royale slaapkamers, elk met een uniek karakter en prachtig uitzicht. De weelderige masterbedroom, voorzien van airconditioning, veiligheidsdeuren en een en-suite badkamer, is een toevluchtsoord op zichzelf. De overige slaapkamers, waaronder een met balkon, delen een tweede luxueuze badkamer. Op de tweede verdieping wacht een immense open ruimte van circa 250 m² op uw persoonlijke invulling – een atelier, fitnessruimte of zelfs een privébioscoop: de mogelijkheden zijn eindeloos.
Een Paradijs voor Mens en Paard
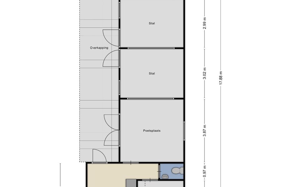
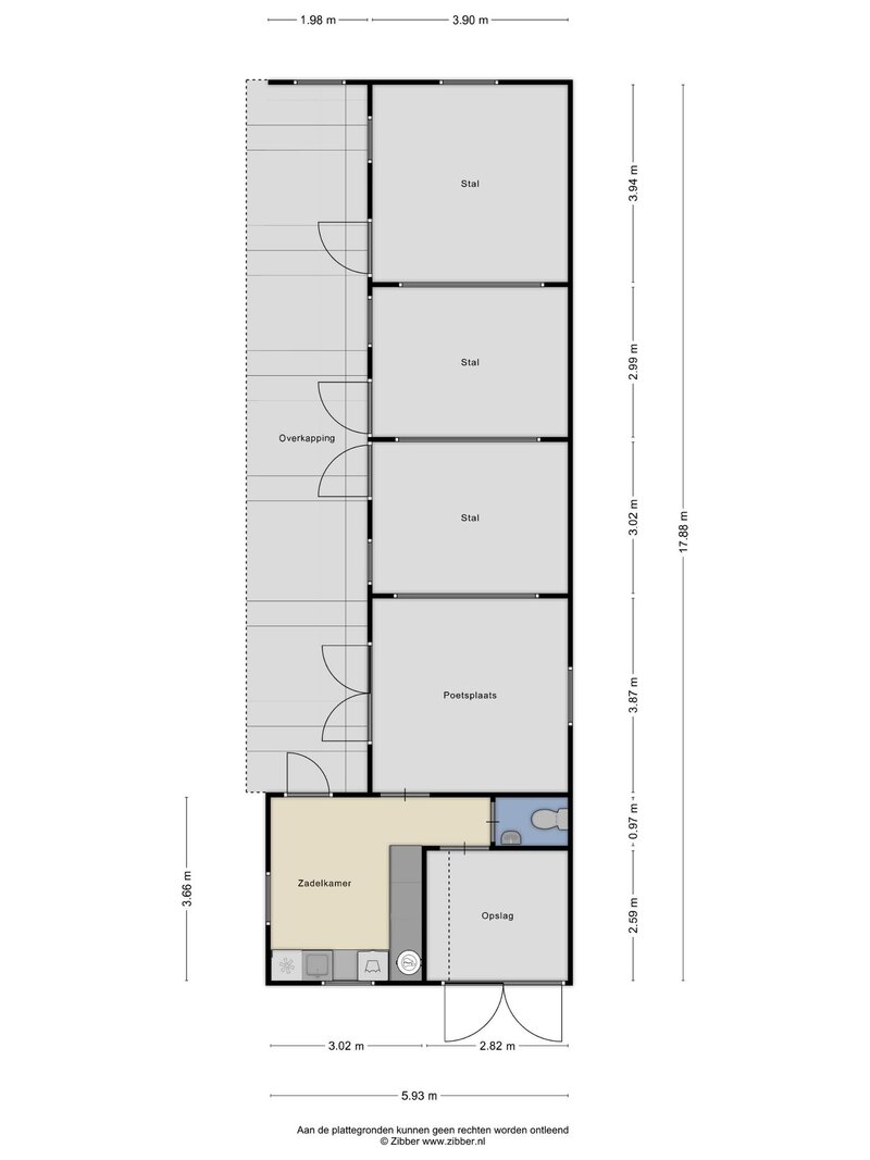
Buiten wordt de droom voortgezet. De luxe paardenfaciliteiten op dit landgoed zijn werkelijk ongeëvenaard:
Een exclusieve paardenstal met drie ruime boxen, een zadelkamer en een poetsplaats.
Een professioneel aangelegde buitenrijbaan (20x60 m) met Agterbergbodem, ideaal voor serieuze ruiters.
Een paddock en uitgestrekte weides waar uw paarden in vrijheid kunnen genieten.
Unieke Bijzonderheden
-Volledig nieuwgebouwde en onbewoonde woning (2019), afgewerkt met hoogwaardige materialen.
-Voorzien van geavanceerde domotica, een camerasysteem, alarmsysteem en een blussysteem in de paardenstal.
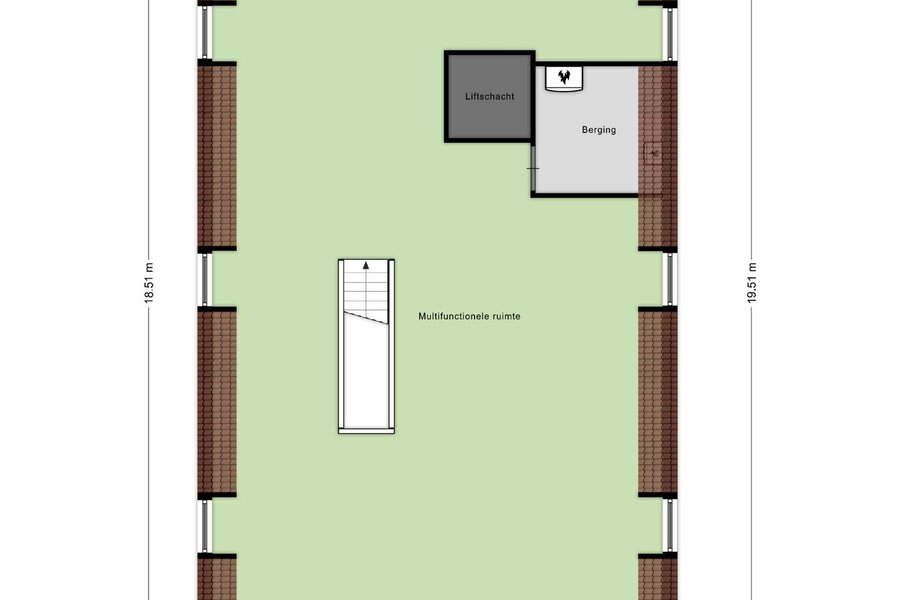
-De kelder, met een oppervlakte van maar liefst 250 m², biedt ongekende mogelijkheden en heeft een dubbele opgang.
-Het landgoed is gerangschikt als NSW-landgoed, wat aanzienlijke fiscale voordelen biedt.
-Uw Levensstijl, Uw Droom
Dit landgoed is meer dan een woning – het is een statement van klasse, een symbool van verfijnde levenskunst en een plek waar rust en luxe hand in hand gaan. Of u nu droomt van een idyllisch toevluchtsoord, een paardenparadijs of een plek om uw gezin in stijl te laten opgroeien, dit landhuis biedt het allemaal.
Plan vandaag nog uw exclusieve bezichtiging en laat u betoveren door deze bijzondere kans in Wassenaar.
Exclusive Estate in Wassenaar: A Timeless Masterpiece of Luxury and Tranquility
Imagine a life where elegance, comfort, and serenity come together to create an unparalleled lifestyle. This breathtaking newly built country house, situated on an expansive estate of over 5 hectares in the prestigious Wassenaar, is a jewel of timeless allure. Surrounded by lush nature, you will enjoy absolute privacy here, while the beach and The Hague's city center are just a stone’s throw away.
A Regal Welcome
The driveway leads you to an impressive entrance that immediately sets the tone for the grandeur this estate offers. The stately hall welcomes you with high ceilings, an elegant wooden staircase, and a harmonious layout exuding luxury. Double doors open to the majestic living room and a bright garden room, both bathed in natural light and offering picturesque views over your private domain.
Living in Class and Comfort
The country house features five spacious bedrooms, each with its own unique character and stunning views. The sumptuous master bedroom, equipped with air conditioning, security doors, and an en-suite bathroom, is a retreat in itself. The additional bedrooms, one with a balcony, share a second luxurious bathroom. On the second floor, a vast open space of approximately 250 m² awaits your personal touch—an atelier, fitness studio, or even a private cinema: the possibilities are endless.
A Paradise for Humans and Horses
The dream continues outdoors. The luxury equestrian facilities on this estate are truly unmatched:
An exclusive horse stable with three spacious stalls, a tack room, and a grooming area.
A professionally designed outdoor arena (20x60 m) with an Agterberg surface, ideal for serious riders.
A paddock and expansive pastures where your horses can roam freely.
Unique Features
A newly built and unoccupied home (2019), finished with high-quality materials.
Equipped with advanced home automation, a camera system, alarm system, and a fire suppression system in the stables.
A basement with an impressive surface area of 250 m², offering endless possibilities and featuring dual access points.
The estate is classified as an NSW estate, providing significant tax benefits.
Your Lifestyle, Your Dream
This estate is more than a home—it is a statement of class, a symbol of refined living, and a place where tranquility and luxury go hand in hand. Whether you dream of an idyllic retreat, an equestrian paradise, or a sophisticated space to raise your family in style, this country house has it all.
Schedule your exclusive viewing today and let yourself be enchanted by this exceptional opportunity in Wassenaar.
Stelt u zich een leven voor waarin elegantie, comfort en rust samensmelten tot een ongeëvenaarde levensstijl. Dit adembenemende nieuwgebouwde landhuis, gelegen op een uitgestrekt landgoed van ruim 5 hectare in het prestigieuze Wassenaar, is een juweel van tijdloze allure. Te midden van weelderige natuur geniet u hier van absolute privacy, terwijl het strand en de binnenstad van Den Haag zich op slechts een steenworp afstand bevinden.
Een Koninklijk Ontvangst
De oprijlaan leidt u naar een indrukwekkende entree die direct de toon zet voor de grandeur die dit landgoed biedt. De statige hal verwelkomt u met hoge plafonds, een elegante houten trap en een harmonieuze indeling die luxe ademt. Dubbele deuren openen naar de vorstelijke living en een lichte tuinkamer, beide badend in natuurlijk licht en met een schilderachtig uitzicht over uw eigen domein.
Wonen in Klasse en Comfort
Het landhuis beschikt over vijf royale slaapkamers, elk met een uniek karakter en prachtig uitzicht. De weelderige masterbedroom, voorzien van airconditioning, veiligheidsdeuren en een en-suite badkamer, is een toevluchtsoord op zichzelf. De overige slaapkamers, waaronder een met balkon, delen een tweede luxueuze badkamer. Op de tweede verdieping wacht een immense open ruimte van circa 250 m² op uw persoonlijke invulling – een atelier, fitnessruimte of zelfs een privébioscoop: de mogelijkheden zijn eindeloos.
Een Paradijs voor Mens en Paard
Buiten wordt de droom voortgezet. De luxe paardenfaciliteiten op dit landgoed zijn werkelijk ongeëvenaard:
Een exclusieve paardenstal met drie ruime boxen, een zadelkamer en een poetsplaats.
Een professioneel aangelegde buitenrijbaan (20x60 m) met Agterbergbodem, ideaal voor serieuze ruiters.
Een paddock en uitgestrekte weides waar uw paarden in vrijheid kunnen genieten.
Unieke Bijzonderheden
-Volledig nieuwgebouwde en onbewoonde woning (2019), afgewerkt met hoogwaardige materialen.
-Voorzien van geavanceerde domotica, een camerasysteem, alarmsysteem en een blussysteem in de paardenstal.
-De kelder, met een oppervlakte van maar liefst 250 m², biedt ongekende mogelijkheden en heeft een dubbele opgang.
-Het landgoed is gerangschikt als NSW-landgoed, wat aanzienlijke fiscale voordelen biedt.
-Uw Levensstijl, Uw Droom
Dit landgoed is meer dan een woning – het is een statement van klasse, een symbool van verfijnde levenskunst en een plek waar rust en luxe hand in hand gaan. Of u nu droomt van een idyllisch toevluchtsoord, een paardenparadijs of een plek om uw gezin in stijl te laten opgroeien, dit landhuis biedt het allemaal.
Plan vandaag nog uw exclusieve bezichtiging en laat u betoveren door deze bijzondere kans in Wassenaar.
Exclusive Estate in Wassenaar: A Timeless Masterpiece of Luxury and Tranquility
Imagine a life where elegance, comfort, and serenity come together to create an unparalleled lifestyle. This breathtaking newly built country house, situated on an expansive estate of over 5 hectares in the prestigious Wassenaar, is a jewel of timeless allure. Surrounded by lush nature, you will enjoy absolute privacy here, while the beach and The Hague's city center are just a stone’s throw away.
A Regal Welcome
The driveway leads you to an impressive entrance that immediately sets the tone for the grandeur this estate offers. The stately hall welcomes you with high ceilings, an elegant wooden staircase, and a harmonious layout exuding luxury. Double doors open to the majestic living room and a bright garden room, both bathed in natural light and offering picturesque views over your private domain.
Living in Class and Comfort
The country house features five spacious bedrooms, each with its own unique character and stunning views. The sumptuous master bedroom, equipped with air conditioning, security doors, and an en-suite bathroom, is a retreat in itself. The additional bedrooms, one with a balcony, share a second luxurious bathroom. On the second floor, a vast open space of approximately 250 m² awaits your personal touch—an atelier, fitness studio, or even a private cinema: the possibilities are endless.
A Paradise for Humans and Horses
The dream continues outdoors. The luxury equestrian facilities on this estate are truly unmatched:
An exclusive horse stable with three spacious stalls, a tack room, and a grooming area.
A professionally designed outdoor arena (20x60 m) with an Agterberg surface, ideal for serious riders.
A paddock and expansive pastures where your horses can roam freely.
Unique Features
A newly built and unoccupied home (2019), finished with high-quality materials.
Equipped with advanced home automation, a camera system, alarm system, and a fire suppression system in the stables.
A basement with an impressive surface area of 250 m², offering endless possibilities and featuring dual access points.
The estate is classified as an NSW estate, providing significant tax benefits.
Your Lifestyle, Your Dream
This estate is more than a home—it is a statement of class, a symbol of refined living, and a place where tranquility and luxury go hand in hand. Whether you dream of an idyllic retreat, an equestrian paradise, or a sophisticated space to raise your family in style, this country house has it all.
Schedule your exclusive viewing today and let yourself be enchanted by this exceptional opportunity in Wassenaar.
| Vastgoed ID | NY100319 |
|---|---|
| Vraagprijs | € 6.250.000 k.k. |
| Woningtype | Villa |
| Woonopp. | 806 m² |
| Perceelopp. | 54.016 m² |
| Bouwjaar | 2019 |
| Renovatiejaar | - |
| Slaapkamers | 5 |
| Badkamers | 2 |
| Garages | 1 |
| Energielabel | - |
Netherlands Sotheby's International Realty Emmalaan 23, 1075 AT Amsterdam
- Telefoon:+31.88.37.47.000
- Email:info@sothebysrealty.nl
- Website:www.sothebysrealty.nl
- Maandag - VrijdagOpen van 09.00 - 17.00
- Zaterdag - ZondagGesloten





























































