Villa te koop in VOORSCHOTEN met referentie 19910291031
Beetslaan 4, 2252 TT VOORSCHOTEN—Ref. WR104621
In de geliefde en groene wijk Boschgeest, op een steenworp afstand van het station en het gezellige dorpscentrum, ligt deze uitzonderlijk ruime twee-onder-één-kapwoning met diepe garage, eigen oprit en een zonnige achtertuin op het zuidoosten. Een ideaal gezinshuis waar ruimte, comfort en duurzaamheid moeiteloos samenkomen.
Met maar liefst ca. 165 m² woonoppervlakte, een ruime garage van ruim 30 m2, vier volwaardige slaapkamers, twee badkamers en energielabel A biedt deze woning alles wat u mag verwachten van een modern familiehuis.
Perfecte ligging
De woning ligt op loopafstand van het NS-station van Voorschoten, basisschool De Regenboog en de The British School in The Netherlands. Ook het gezellige centrum met diverse restaurants en winkels bevindt zich dichtbij. Sportliefhebbers kunnen hun hart ophalen bij het zwembad en de nabijgelegen voetbal-, hockey- en tennisverenigingen. Hier woont u rustig en groen, met alle voorzieningen binnen handbereik.
Indeling
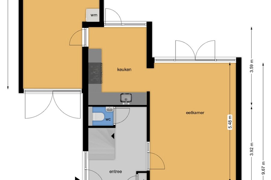
Begane grond
De voortuin beschikt over een ruime oprit met plaats voor twee auto’s en een 3-fase Ratio Solar laadpaal voor elektrisch rijden.
Via de entree aan de zijkant betreedt u de ruime hal met meterkast, garderobe, modern toilet met fonteintje en de trapopgang. De royale, lichte L-vormige woonkamer met erker ademt sfeer dankzij de open haard, de fraaie eikenhouten parketvloer en de openslaande deuren naar het terras. De woonkamer staat in directe verbinding met de halfopen keuken, de garage/bijkeuken en de achtertuin, wat zorgt voor een prettige en praktische indeling.
De moderne halfopen keuken is voorzien van een stenen werkblad en diverse inbouwapparatuur, waaronder een 5-pits gasfornuis met oven, een AEG-vaatwasser en een Quooker. Vanuit hier bereikt u zowel de garage/bijkeuken als de zonnige achtertuin.
De diepe garage/bijkeuken biedt uitzonderlijk veel bergruimte en is voorzien van elektra, water en aansluitingen voor wasmachine en droger. Ook vanuit hier heeft u toegang tot de tuin.
De fraai aangelegde, brede achtertuin op het zuidoosten biedt volop privacy dankzij zeven steeneik-leibomen. Hier geniet u van lange zomerdagen en gezellige avonden rond de Napoleon gas-/kolenbarbecue.
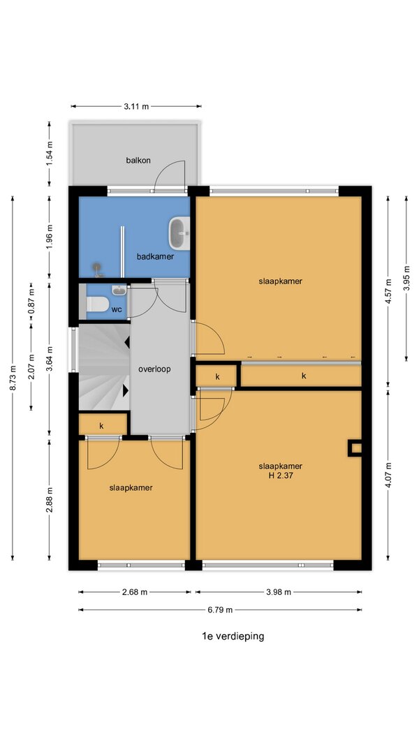
Eerste verdieping
Via de karakteristieke houten wenteltrap bereikt u de eerste verdieping. De overloop met houten vloer geeft toegang tot drie slaapkamers en een separaat toilet.
De ruime voorslaapkamer biedt een weids uitzicht en beschikt over een inbouwkast en vaste kastenwand. De achterslaapkamer is voorzien van een op maat gemaakte Lundia-kledingkast en kijkt uit over de tuin. De derde kamer aan de voorzijde is momenteel ingericht als kantoor en beschikt eveneens over een inbouwkast.
De badkamer met openslaande deur naar het balkon is uitgerust met een inloopdouche, ruime wastafel, vloerverwarming en mechanische ventilatie.
Tweede verdieping
De verrassend ruime en lichte overloop beschikt over een dakraam, bergruimte achter de knieschotten en de opstelling van de Nefit cv-ketel (2014) en de SMA Sunny omvormer voor de 15 Q-cells zonnepanelen.
De royale vierde slaapkamer is voorzien van Mitsubishi airconditioning, dakkapellen aan voor- en achterzijde en elektrische rolluiken op alle ramen. Daarnaast is er een tweede badkamer met douche, toilet en wastafel. Extra bergruimte vindt u op de praktische bergvliering.
Kenmerken:
- Woonoppervlakte ca. 165 m²
- Garage van 30,4 m2
- Perceel 269 m²
- Energielabel A
- 15 zonnepanelen (Q-cells) met SMA Sunny omvormer
- Eigen oprit met laadpaal (3-fase)
- Ruime garage/bijkeuken
- Vier slaapkamers, twee badkamers
- Airconditioning op zolder
- Elektrische rolluiken
- Horren bij openslaande ramen
- MV-box Duco
- Oplevering in overleg
- Ouderdoms- en asbestclausule van toepassing (NVM-koopovereenkomst)
Deze informatie is met zorg samengesteld. Er wordt echter geen aansprakelijkheid aanvaard voor eventuele onvolledigheden, onjuistheden of de gevolgen daarvan. Alle opgegeven maten en oppervlakten zijn indicatief. De NVM-voorwaarden zijn van toepassing.
Enthousiast geworden? Wij laten u deze sfeervolle woning aan de Beetslaan 4 graag persoonlijk ervaren!
Met maar liefst ca. 165 m² woonoppervlakte, een ruime garage van ruim 30 m2, vier volwaardige slaapkamers, twee badkamers en energielabel A biedt deze woning alles wat u mag verwachten van een modern familiehuis.
Perfecte ligging
De woning ligt op loopafstand van het NS-station van Voorschoten, basisschool De Regenboog en de The British School in The Netherlands. Ook het gezellige centrum met diverse restaurants en winkels bevindt zich dichtbij. Sportliefhebbers kunnen hun hart ophalen bij het zwembad en de nabijgelegen voetbal-, hockey- en tennisverenigingen. Hier woont u rustig en groen, met alle voorzieningen binnen handbereik.
Indeling
Begane grond
De voortuin beschikt over een ruime oprit met plaats voor twee auto’s en een 3-fase Ratio Solar laadpaal voor elektrisch rijden.
Via de entree aan de zijkant betreedt u de ruime hal met meterkast, garderobe, modern toilet met fonteintje en de trapopgang. De royale, lichte L-vormige woonkamer met erker ademt sfeer dankzij de open haard, de fraaie eikenhouten parketvloer en de openslaande deuren naar het terras. De woonkamer staat in directe verbinding met de halfopen keuken, de garage/bijkeuken en de achtertuin, wat zorgt voor een prettige en praktische indeling.
De moderne halfopen keuken is voorzien van een stenen werkblad en diverse inbouwapparatuur, waaronder een 5-pits gasfornuis met oven, een AEG-vaatwasser en een Quooker. Vanuit hier bereikt u zowel de garage/bijkeuken als de zonnige achtertuin.
De diepe garage/bijkeuken biedt uitzonderlijk veel bergruimte en is voorzien van elektra, water en aansluitingen voor wasmachine en droger. Ook vanuit hier heeft u toegang tot de tuin.
De fraai aangelegde, brede achtertuin op het zuidoosten biedt volop privacy dankzij zeven steeneik-leibomen. Hier geniet u van lange zomerdagen en gezellige avonden rond de Napoleon gas-/kolenbarbecue.
Eerste verdieping
Via de karakteristieke houten wenteltrap bereikt u de eerste verdieping. De overloop met houten vloer geeft toegang tot drie slaapkamers en een separaat toilet.
De ruime voorslaapkamer biedt een weids uitzicht en beschikt over een inbouwkast en vaste kastenwand. De achterslaapkamer is voorzien van een op maat gemaakte Lundia-kledingkast en kijkt uit over de tuin. De derde kamer aan de voorzijde is momenteel ingericht als kantoor en beschikt eveneens over een inbouwkast.
De badkamer met openslaande deur naar het balkon is uitgerust met een inloopdouche, ruime wastafel, vloerverwarming en mechanische ventilatie.
Tweede verdieping
De verrassend ruime en lichte overloop beschikt over een dakraam, bergruimte achter de knieschotten en de opstelling van de Nefit cv-ketel (2014) en de SMA Sunny omvormer voor de 15 Q-cells zonnepanelen.
De royale vierde slaapkamer is voorzien van Mitsubishi airconditioning, dakkapellen aan voor- en achterzijde en elektrische rolluiken op alle ramen. Daarnaast is er een tweede badkamer met douche, toilet en wastafel. Extra bergruimte vindt u op de praktische bergvliering.
Kenmerken:
- Woonoppervlakte ca. 165 m²
- Garage van 30,4 m2
- Perceel 269 m²
- Energielabel A
- 15 zonnepanelen (Q-cells) met SMA Sunny omvormer
- Eigen oprit met laadpaal (3-fase)
- Ruime garage/bijkeuken
- Vier slaapkamers, twee badkamers
- Airconditioning op zolder
- Elektrische rolluiken
- Horren bij openslaande ramen
- MV-box Duco
- Oplevering in overleg
- Ouderdoms- en asbestclausule van toepassing (NVM-koopovereenkomst)
Deze informatie is met zorg samengesteld. Er wordt echter geen aansprakelijkheid aanvaard voor eventuele onvolledigheden, onjuistheden of de gevolgen daarvan. Alle opgegeven maten en oppervlakten zijn indicatief. De NVM-voorwaarden zijn van toepassing.
Enthousiast geworden? Wij laten u deze sfeervolle woning aan de Beetslaan 4 graag persoonlijk ervaren!
| Vastgoed ID | WR104621 |
|---|---|
| Vraagprijs | € 900.000 k.k. |
| Woningtype | Villa |
| Woonopp. | 165 m² |
| Perceelopp. | 269 m² |
| Bouwjaar | 1969 |
| Renovatiejaar | - |
| Slaapkamers | 3 |
| Badkamers | 2 |
| Garages | 1 |
| Energielabel | A |
Welp Makelaardij Van Hogendorpstraat 16 d, 2242 KZ Wassenaar
- Telefoon:+31.070.51.11.720
- Email:info@welpmakelaardij.nl
- Website:www.welpmakelaardij.nl
- Maandag - VrijdagOpen van 09.00 - 17.30
- Zaterdag Open van 10.00 - 14.00
- Zondag Gesloten

















































