Villa te koop in HUIZEN met referentie 19410341899
Nieuwe Bussummerweg 246, 1272 CN HUIZEN—Ref. HN103619
Vrijstaand wonen met karakter, rust, ruimte en aan het bos en heide
Aan de rand van Bikbergen, op de hoek van de Flevolaan en de Nieuwe Bussummerweg, ligt deze charmante, rietgedekte villa met rijke geschiedenis en eindeloze mogelijkheden. Oorspronkelijk gebouwd in 1921 als boswachtershuisje en in 2000 fors uitgebreid, biedt deze woning een sfeervolle combinatie van karakter en comfort.
Met een woonoppervlakte van ca. 270 m² (incl. souterrain ca. 59 m²), een dubbele garage en een perceel van 1.839 m², geniet je hier van ruimte, privacy en een unieke ligging aan bos en heide.
Indeling
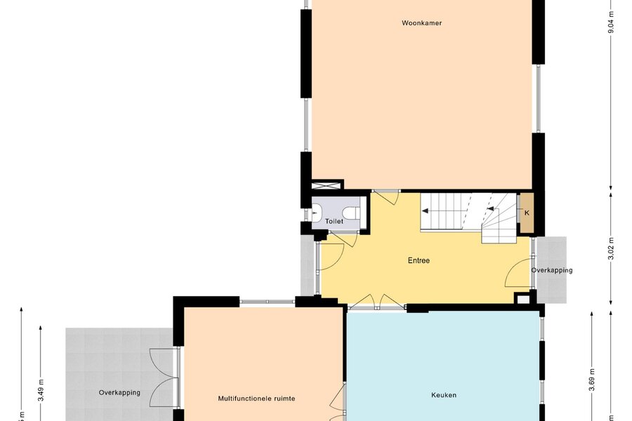
De centrale hal biedt toegang tot het souterrain, toilet en trapopgang. De royale living (ca. 54 m²) in het aangebouwde deel heeft grote raampartijen, een open haard en prachtig tuinzicht. De open keuken met eetkamer bevindt zich in het oorspronkelijke gedeelte en kan naar eigen smaak worden gemoderniseerd. Daarnaast is er een multifunctionele ruimte, ideaal als kantoor, atelier of praktijk aan huis.
Het souterrain is verrassend ruim en momenteel ingericht als recreatieruimte met pooltafel, wijnkelder en opbergruimte. Perfect voor wellness of thuisbioscoop.
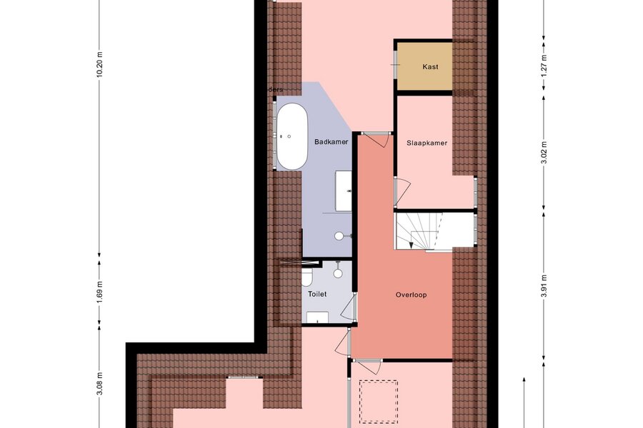
Op de verdieping bevinden zich vier slaapkamers en twee badkamers, waarvan één ensuite met vrijstaand bad en inloopdouche.
Buitenleven
De ruime tuin biedt volop privacy, meerdere terrassen en een buitenkeuken. Ideaal voor lange zomeravonden.
Het vrijstaande gastenverblijf (ca. 30 m²) met eigen keuken, badkamer en slaapkamer op de vide is geschikt voor verhuur, mantelzorg of au pair. Verder is er een dubbele garage (ca. 43 m²), een berging (ca. 16 m²) en ruime parkeergelegenheid op eigen terrein.
Locatie
Rustig gelegen aan de rand van bos en heide, met directe toegang tot wandel- en fietsroutes. Scholen, winkels en sportfaciliteiten zijn nabij, evenals de centra van Huizen en Naarden. Via de A1 zijn Amsterdam, Utrecht en Amersfoort uitstekend bereikbaar.
Bijzonderheden
- Vrijstaande, rietgedekte villa (1921/2000)
- Woonoppervlakte ca. 270 m² | perceel 1.839 m²
- 4 slaapkamers, 2 badkamers (1 ensuite)
- Volledig souterrain met recreatieruimte en wijnkelder
- Gastenverblijf met eigen voorzieningen
- Dubbele garage en berging
- Energielabel C
- Gelegen aan bos en heide
*In de fotopresentatie zijn enkele sfeerimpressies ter inspiratie opgenomen*
Een uniek object met karakter, ruimte en potentie. Een ideale plek voor wie rust, natuur en vrijheid zoekt.
Aan de rand van Bikbergen, op de hoek van de Flevolaan en de Nieuwe Bussummerweg, ligt deze charmante, rietgedekte villa met rijke geschiedenis en eindeloze mogelijkheden. Oorspronkelijk gebouwd in 1921 als boswachtershuisje en in 2000 fors uitgebreid, biedt deze woning een sfeervolle combinatie van karakter en comfort.
Met een woonoppervlakte van ca. 270 m² (incl. souterrain ca. 59 m²), een dubbele garage en een perceel van 1.839 m², geniet je hier van ruimte, privacy en een unieke ligging aan bos en heide.
Indeling
De centrale hal biedt toegang tot het souterrain, toilet en trapopgang. De royale living (ca. 54 m²) in het aangebouwde deel heeft grote raampartijen, een open haard en prachtig tuinzicht. De open keuken met eetkamer bevindt zich in het oorspronkelijke gedeelte en kan naar eigen smaak worden gemoderniseerd. Daarnaast is er een multifunctionele ruimte, ideaal als kantoor, atelier of praktijk aan huis.
Het souterrain is verrassend ruim en momenteel ingericht als recreatieruimte met pooltafel, wijnkelder en opbergruimte. Perfect voor wellness of thuisbioscoop.
Op de verdieping bevinden zich vier slaapkamers en twee badkamers, waarvan één ensuite met vrijstaand bad en inloopdouche.
Buitenleven
De ruime tuin biedt volop privacy, meerdere terrassen en een buitenkeuken. Ideaal voor lange zomeravonden.
Het vrijstaande gastenverblijf (ca. 30 m²) met eigen keuken, badkamer en slaapkamer op de vide is geschikt voor verhuur, mantelzorg of au pair. Verder is er een dubbele garage (ca. 43 m²), een berging (ca. 16 m²) en ruime parkeergelegenheid op eigen terrein.
Locatie
Rustig gelegen aan de rand van bos en heide, met directe toegang tot wandel- en fietsroutes. Scholen, winkels en sportfaciliteiten zijn nabij, evenals de centra van Huizen en Naarden. Via de A1 zijn Amsterdam, Utrecht en Amersfoort uitstekend bereikbaar.
Bijzonderheden
- Vrijstaande, rietgedekte villa (1921/2000)
- Woonoppervlakte ca. 270 m² | perceel 1.839 m²
- 4 slaapkamers, 2 badkamers (1 ensuite)
- Volledig souterrain met recreatieruimte en wijnkelder
- Gastenverblijf met eigen voorzieningen
- Dubbele garage en berging
- Energielabel C
- Gelegen aan bos en heide
*In de fotopresentatie zijn enkele sfeerimpressies ter inspiratie opgenomen*
Een uniek object met karakter, ruimte en potentie. Een ideale plek voor wie rust, natuur en vrijheid zoekt.
| Vastgoed ID | HN103619 |
|---|---|
| Vraagprijs | € 1.595.000 k.k. |
| Woningtype | Villa |
| Woonopp. | 270 m² |
| Perceelopp. | 1.839 m² |
| Bouwjaar | 1921 |
| Renovatiejaar | - |
| Slaapkamers | 4 |
| Badkamers | 2 |
| Garages | 1 |
| Energielabel | C |
Voorma en Walch Huizen Ceintuurbaan 22, 1271 BJ Huizen
- Telefoon:+31.35.525.31.35
- Email:huizen@voorma-walch.nl
- Website:www.voorma-walch.nl
- Maandag - VrijdagOpen van 08.30 - 17.30
- Zaterdag - ZondagGesloten
Makelaar










































