Villa te koop in BLARICUM met referentie 19710324042
Prins Hendriklaan 16, 1261 AJ BLARICUM—Ref. BM100859
Deze riante vrijstaande familievilla aan de rand van het pittoreske Blaricum is op steenworp afstand gelegen van de Tafelberg-heide en biedt volop privacy dankzij de groene, bosrijke omgeving. Hier geniet je van rust, ruimte en natuur met Amsterdam binnen handbereik.
Dankzij de logische indeling en de vele leefruimtes, waaronder zes slaapkamers, vier badkamers, de bibliotheek en een heerlijke speelzolder voelt de villa warm en geborgen aan, ondanks de royale afmetingen van zowel het huis (367m2) als het perceel (2.690m2). Het is een huis dat met gemak een groot gezin kan huisvesten maar ook perfect aanvoelt voor een kleiner huishouden. Ditzelfde geldt voor de romantische onder architectuur aangelegde tuin. Hier is genoeg ruimte om te spelen, tuinieren en te genieten van de verschillende terrassen die in de avond sfeervol worden verlicht.
Deze villa aan de Prins Hendriklaan 16 biedt een unieke kans om royaal te wonen, middenin het groen en op een centrale locatie zonder concessies!
De indeling van de villa is als volgt;
Begane grond
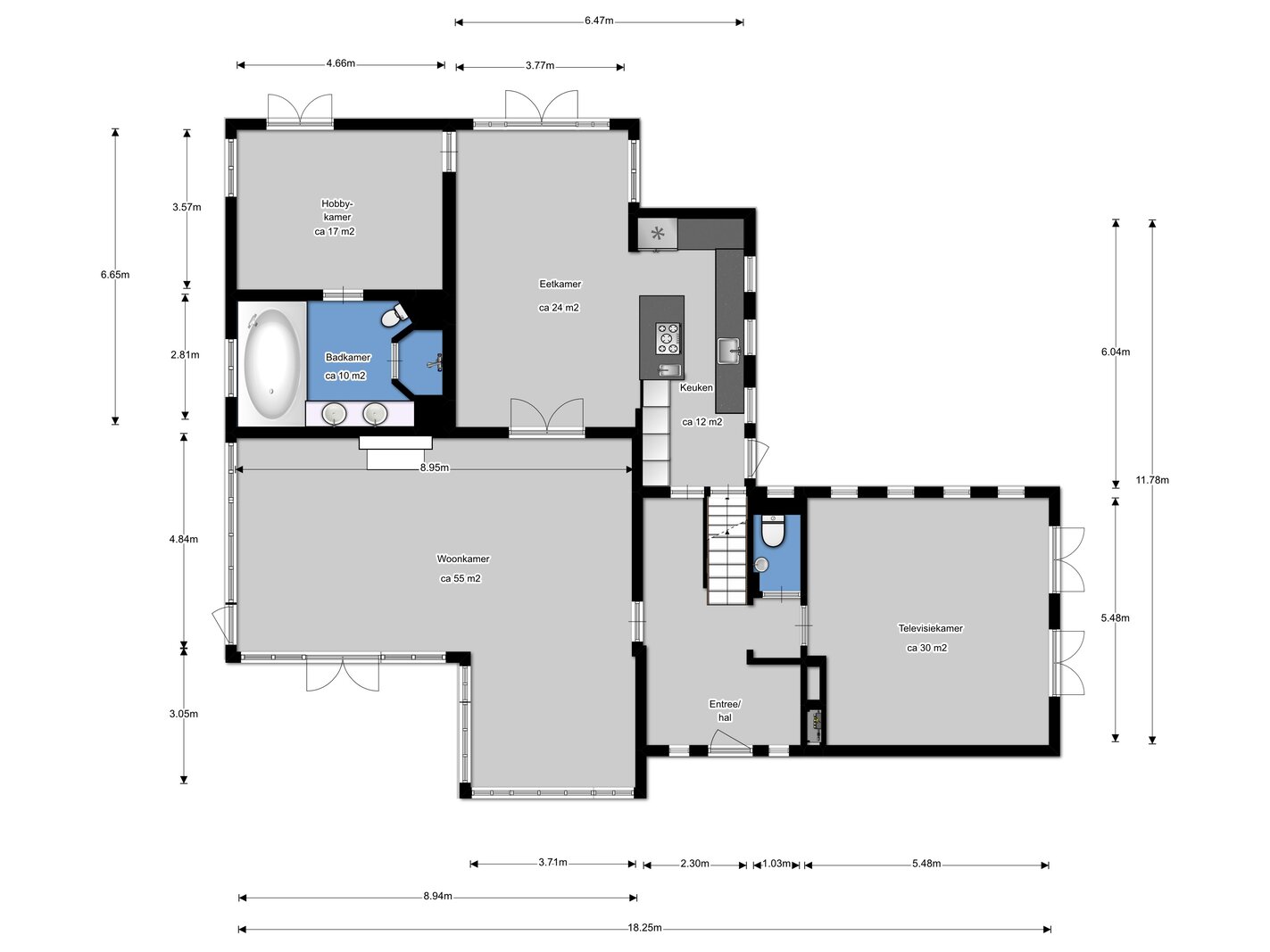
Via de ruime entree met trapopgang en gastentoilet kom je binnen in een lichte en sfeervolle villa met een uitstekend doordachte indeling. Zowel de begane grond als de eerste etage is voor voorzien van een prachtige parketvloer. De royale woonkamer met gashaard bevindt zich aan de voorzijde van het huis en kenmerkt zich door grote ramenpartijen, een erker en openslaande deuren naar de tuin.
De ruime en charmante woonkeuken is gesitueerd aan de achterzijde. Via openslaande deuren heb je directe toegang tot het zonnige terras dat naadloos overgaat in de tuin. Vanuit de keuken is ook het souterrain met bijkeuken en wijnkelder bereikbaar - ideaal voor het bewaren van bijzondere flessen wijn.
Op de begane grond bevindt zich daarnaast een ruime slaapkamer met stijlvolle en-suite badkamer uitrust met ligbad, inloopdouche, dubbele wastafel en toilet. Door de aanwezigheid van een slaapkamer met badkamer op de begane grond is deze villa tevens levensloopbestendig. Daarnaast is er een aparte bibliotheek/werkkamer die zich uitstekend leent als tweede zithoek, speelruimte of kantoor.
Eerste verdieping
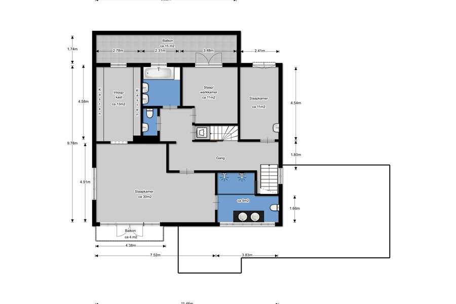
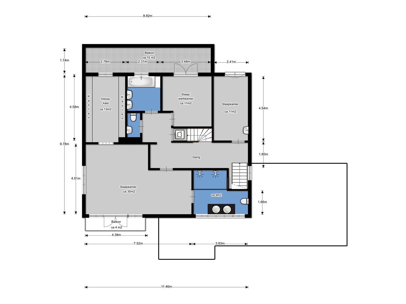
Via de robuuste trap kom je op de eerste verdieping, waar een royale overloop toegang biedt tot de verschillende vertrekken. Aan de voorzijde bevindt zich een ruime master bedroom met openslaande deuren naar een eigen balkon, wat zorgt voor veel licht en een fraai uitzicht. Aangrenzend ligt een ruime inloopkast met veel opbergruimte en een eigen badkamer en-suite. De badkamer is uitgerust met een dubbele inloopdouche, wastafelmeubel met dubbele waskommen en een toilet.
Op deze verdieping bevinden zich tevens nog een tweetal ruime slaapkamers, een separaat gastentoilet met fontein en een tweede, kleinere badkamer met ligbad met douche en dubbelwastafelmeubel– ideaal voor gebruik door gasten of kinderen. Vanuit één van deze kamers is er toegang tot een royaal balkon aan de achterzijde van de woning met zicht over de groene tuin.
Tweede verdieping
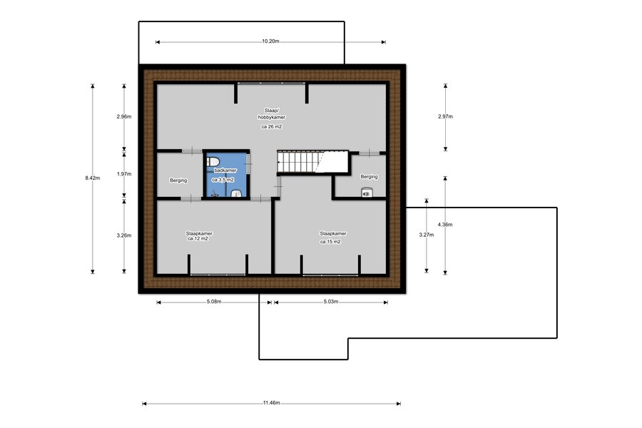
De tweede verdieping is verrassend ruim en biedt volop mogelijkheden. Hier bevinden zich nog twee slaapkamers en een vierde badkamer, voorzien van een inloopdouche, wastafel en toilet. Deze verdieping is perfect geschikt voor een groot gezin, maar kan ook uitstekend dienstdoen als gastenverblijf of voor een au-pair.
Tot slot is de ruime overloop nu in gebruik als speelruimte en zijn er meerdere bergruimtes, handig voor seizoensspullen of als extra opslag. Een villa waarin volop ruimte is om samen te zijn, maar waar iedereen zich ook moeiteloos kan terugtrekken voor rust en privacy.
De gunstige locatie
De villa ligt in de exclusieve Koningsbuurt, precies tussen het Goois Natuurreservaat Blaricummerheide/Noorderheide en de uitvalsweg naar de A1. Dankzij de ligging is de bereikbaarheid uitstekend: het busstation bevindt zich op slechts 200 meter afstand, waardoor de Randstad echt binnen handbereik ligt. De bus brengt je in circa 20 minuten naar Amstel station, maar ook Utrecht en Hilversum zijn eenvoudig en snel bereikbaar.
Zowel de dorpskern van het schilderachtige Laren als die van het charmante Blaricum liggen op korte afstand, waardoor alle voorzieningen, gezellige winkels en restaurants binnen enkele minuten bereikbaar zijn.
De bijzonderheden
- Vrijstaande villa;
- Woonoppervlak; 367m2;
- Perceeloppervlak; 2.690m2;
- Bouwjaar 1950;
- Zes slaapkamers en vier badkamer;
- Sfeervolle wijnkelder aanwezig;
- Op steenworpafstand van de Tafelberg-heide;
- Directe busverbinding naar Amstel Station (20 minuten).
Voor een uitgebreide rondleiding in deze riante famillievilla kunt u contact opnemen met Tessa Soede, NVM-makelaar. Nog beter is het om uw eigen NVM-aankoopmakelaar mee te nemen.
Ook kunt u elke zaterdag tussen 10.00 en 14.00 uur bij ons op kantoor aan de Torenlaan 12D in Blaricum binnenlopen voor extra informatie – onder het genot van een cappuccino met verse appeltaart.
Dankzij de logische indeling en de vele leefruimtes, waaronder zes slaapkamers, vier badkamers, de bibliotheek en een heerlijke speelzolder voelt de villa warm en geborgen aan, ondanks de royale afmetingen van zowel het huis (367m2) als het perceel (2.690m2). Het is een huis dat met gemak een groot gezin kan huisvesten maar ook perfect aanvoelt voor een kleiner huishouden. Ditzelfde geldt voor de romantische onder architectuur aangelegde tuin. Hier is genoeg ruimte om te spelen, tuinieren en te genieten van de verschillende terrassen die in de avond sfeervol worden verlicht.
Deze villa aan de Prins Hendriklaan 16 biedt een unieke kans om royaal te wonen, middenin het groen en op een centrale locatie zonder concessies!
De indeling van de villa is als volgt;
Begane grond
Via de ruime entree met trapopgang en gastentoilet kom je binnen in een lichte en sfeervolle villa met een uitstekend doordachte indeling. Zowel de begane grond als de eerste etage is voor voorzien van een prachtige parketvloer. De royale woonkamer met gashaard bevindt zich aan de voorzijde van het huis en kenmerkt zich door grote ramenpartijen, een erker en openslaande deuren naar de tuin.
De ruime en charmante woonkeuken is gesitueerd aan de achterzijde. Via openslaande deuren heb je directe toegang tot het zonnige terras dat naadloos overgaat in de tuin. Vanuit de keuken is ook het souterrain met bijkeuken en wijnkelder bereikbaar - ideaal voor het bewaren van bijzondere flessen wijn.
Op de begane grond bevindt zich daarnaast een ruime slaapkamer met stijlvolle en-suite badkamer uitrust met ligbad, inloopdouche, dubbele wastafel en toilet. Door de aanwezigheid van een slaapkamer met badkamer op de begane grond is deze villa tevens levensloopbestendig. Daarnaast is er een aparte bibliotheek/werkkamer die zich uitstekend leent als tweede zithoek, speelruimte of kantoor.
Eerste verdieping
Via de robuuste trap kom je op de eerste verdieping, waar een royale overloop toegang biedt tot de verschillende vertrekken. Aan de voorzijde bevindt zich een ruime master bedroom met openslaande deuren naar een eigen balkon, wat zorgt voor veel licht en een fraai uitzicht. Aangrenzend ligt een ruime inloopkast met veel opbergruimte en een eigen badkamer en-suite. De badkamer is uitgerust met een dubbele inloopdouche, wastafelmeubel met dubbele waskommen en een toilet.
Op deze verdieping bevinden zich tevens nog een tweetal ruime slaapkamers, een separaat gastentoilet met fontein en een tweede, kleinere badkamer met ligbad met douche en dubbelwastafelmeubel– ideaal voor gebruik door gasten of kinderen. Vanuit één van deze kamers is er toegang tot een royaal balkon aan de achterzijde van de woning met zicht over de groene tuin.
Tweede verdieping
De tweede verdieping is verrassend ruim en biedt volop mogelijkheden. Hier bevinden zich nog twee slaapkamers en een vierde badkamer, voorzien van een inloopdouche, wastafel en toilet. Deze verdieping is perfect geschikt voor een groot gezin, maar kan ook uitstekend dienstdoen als gastenverblijf of voor een au-pair.
Tot slot is de ruime overloop nu in gebruik als speelruimte en zijn er meerdere bergruimtes, handig voor seizoensspullen of als extra opslag. Een villa waarin volop ruimte is om samen te zijn, maar waar iedereen zich ook moeiteloos kan terugtrekken voor rust en privacy.
De gunstige locatie
De villa ligt in de exclusieve Koningsbuurt, precies tussen het Goois Natuurreservaat Blaricummerheide/Noorderheide en de uitvalsweg naar de A1. Dankzij de ligging is de bereikbaarheid uitstekend: het busstation bevindt zich op slechts 200 meter afstand, waardoor de Randstad echt binnen handbereik ligt. De bus brengt je in circa 20 minuten naar Amstel station, maar ook Utrecht en Hilversum zijn eenvoudig en snel bereikbaar.
Zowel de dorpskern van het schilderachtige Laren als die van het charmante Blaricum liggen op korte afstand, waardoor alle voorzieningen, gezellige winkels en restaurants binnen enkele minuten bereikbaar zijn.
De bijzonderheden
- Vrijstaande villa;
- Woonoppervlak; 367m2;
- Perceeloppervlak; 2.690m2;
- Bouwjaar 1950;
- Zes slaapkamers en vier badkamer;
- Sfeervolle wijnkelder aanwezig;
- Op steenworpafstand van de Tafelberg-heide;
- Directe busverbinding naar Amstel Station (20 minuten).
Voor een uitgebreide rondleiding in deze riante famillievilla kunt u contact opnemen met Tessa Soede, NVM-makelaar. Nog beter is het om uw eigen NVM-aankoopmakelaar mee te nemen.
Ook kunt u elke zaterdag tussen 10.00 en 14.00 uur bij ons op kantoor aan de Torenlaan 12D in Blaricum binnenlopen voor extra informatie – onder het genot van een cappuccino met verse appeltaart.
| Vastgoed ID | BM100859 |
|---|---|
| Vraagprijs | € 2.450.000 k.k. |
| Woningtype | Villa |
| Woonopp. | 367 m² |
| Perceelopp. | 2.690 m² |
| Bouwjaar | 1950 |
| Renovatiejaar | - |
| Slaapkamers | 6 |
| Badkamers | 4 |
| Garages | 1 |
| Energielabel | F |
Voorma en Walch Blaricum Torenlaan 12 D, 1261 GD Blaricum
- Telefoon:+31.35.531.53.00
- Email:blaricum@voorma-walch.nl
- Website:voorma-walch.nl
- Maandag - VrijdagOpen van 08.30 - 17.30
- Zaterdag Open van 10.00 - 16.00
- Zondag Gesloten















































