Villa te koop in WASSENAAR met referentie 19810194617
Narcislaan 21, 2241 VP WASSENAAR—Ref. WR104361
Sfeervol, licht en tot in de puntjes verzorgd hoekherenhuis (1929) met zonnige tuin op het zuidwesten, vrijstaande garage én energielabel A!
In een karakteristieke jaren ’20 straat, op loopafstand van de American School of The Hague, ligt dit uitzonderlijk charmante en uitstekend onderhouden hoekherenhuis. Dankzij de hoekligging en de vele grote raampartijen geniet de woning het hele jaar door van een prachtige lichtinval. Authentieke details gaan hier moeiteloos samen met modern wooncomfort.
Met circa 151 m² woonoppervlakte, 5 slaapkamers en 2 badkamers is dit een royaal en direct te betrekken gezinshuis. De fraai aangelegde tuin op het zuidwesten vormt een absoluut pluspunt: meerdere terrassen en zitplekken maken het mogelijk om op elk moment van de dag van zon of schaduw te genieten. Achter in de tuin bevinden zich een stenen berging en een vrijstaande garage (met mogelijkheid tot toegang naar de Deijlerweg).
De ligging is ideaal. Diverse (basis)scholen bevinden zich op loopafstand en het gezellige centrum van Wassenaar met winkels, terrassen en restaurants is eenvoudig per fiets bereikbaar. Bovendien ligt de woning gunstig ten opzichte van uitvalswegen richting Den Haag, Leiden, Rotterdam en Amsterdam.
Indeling
Begane grond
Entree met garderobe en meterkast. Direct vallen de karakteristieke jaren ’20 details op, zoals glas-in-loodramen, een granito vloer en paneeldeuren. Modern, ruim toilet met fonteintje.
De royale woon-/eetkamer en suite ademt sfeer en ruimte. Aan de voorzijde bevindt zich de woonkamer met erker; ensuite deuren verbinden deze met de eetkamer. De halfopen luxe keuken is uitgevoerd met een stenen werkblad en diverse inbouwapparatuur, waaronder een brede Boretti oven, Quooker, koel-/vriescombinatie en vaatwasser. Openslaande deuren én een aparte keukendeur geven toegang tot de zonnige achtertuin (ZW).
Eerste verdieping
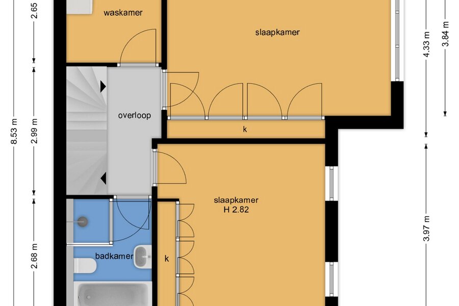
Overloop. Complete badkamer met ligbad, douche, wastafelmeubel en toilet. Ruime voorslaapkamer met inbouwkasten en balkon. Royale hoofdslaapkamer aan de achterzijde met inbouwkasten over de gehele breedte. Derde slaapkamer aan de achterzijde (thans in gebruik als kantoor) met balkon; wasmachine en droger zijn netjes weggewerkt in kasten.
Tweede verdieping
Overloop met tweede badkamer voorzien van douche, wastafel en toilet. Hier bevindt zich tevens de cv-combiketel (Intergas HRE, 2025). Ruime voorslaapkamer met dakkapel en een speels ingedeelde achterslaapkamer, eveneens met dakkapel en dakraam.
Tuin & garage
De recent opnieuw aangelegde voor-, zij- en achtertuin vormen samen een groene en verzorgde buitenruimte. Dankzij de ligging op het zuidwesten geniet je hier optimaal van de middag- en avondzon. Tevens zijn voorbereidingen getroffen voor het plaatsen van een laadpaal.
Achter in de tuin staan een stenen berging en een vrijstaande garage met elektra. Op het pannendak liggen 18 zonnepanelen.
Bijzonderheden:
Sfeervolle hoekwoning uit 1929
Direct te betrekken
7 kamers, 2 badkamers
Ca. 151 m² woonoppervlakte / 319 m² perceel
Fraai aangelegde tuin op het zuidwesten
Vrijstaande garage, thans in gebruik als berging
Zeer lichte woonvertrekken door hoekligging en grote raampartijen
In 2025 o.a. nieuwe gevelbekleding, tuinaanleg, 3 airco’s en nieuwe cv-ketel (Intergas HRE)
18 zonnepanelen
Energielabel A
Vloer- en dakisolatie, HR++ glas
Ouderdomsclausule en asbestclausule van toepassing in de NVM-koopovereenkomst
Deze presentatie is met zorg samengesteld. Desondanks aanvaarden wij geen aansprakelijkheid voor eventuele onjuistheden of onvolledigheden. Alle opgegeven maten en oppervlakten zijn indicatief. NVM-voorwaarden zijn van toepassing.
Enthousiast geworden? Wij laten je deze unieke woning aan de Narcislaan 21 graag persoonlijk beleven. Neem contact met ons op voor een bezichtiging.
In een karakteristieke jaren ’20 straat, op loopafstand van de American School of The Hague, ligt dit uitzonderlijk charmante en uitstekend onderhouden hoekherenhuis. Dankzij de hoekligging en de vele grote raampartijen geniet de woning het hele jaar door van een prachtige lichtinval. Authentieke details gaan hier moeiteloos samen met modern wooncomfort.
Met circa 151 m² woonoppervlakte, 5 slaapkamers en 2 badkamers is dit een royaal en direct te betrekken gezinshuis. De fraai aangelegde tuin op het zuidwesten vormt een absoluut pluspunt: meerdere terrassen en zitplekken maken het mogelijk om op elk moment van de dag van zon of schaduw te genieten. Achter in de tuin bevinden zich een stenen berging en een vrijstaande garage (met mogelijkheid tot toegang naar de Deijlerweg).
De ligging is ideaal. Diverse (basis)scholen bevinden zich op loopafstand en het gezellige centrum van Wassenaar met winkels, terrassen en restaurants is eenvoudig per fiets bereikbaar. Bovendien ligt de woning gunstig ten opzichte van uitvalswegen richting Den Haag, Leiden, Rotterdam en Amsterdam.
Indeling
Begane grond
Entree met garderobe en meterkast. Direct vallen de karakteristieke jaren ’20 details op, zoals glas-in-loodramen, een granito vloer en paneeldeuren. Modern, ruim toilet met fonteintje.
De royale woon-/eetkamer en suite ademt sfeer en ruimte. Aan de voorzijde bevindt zich de woonkamer met erker; ensuite deuren verbinden deze met de eetkamer. De halfopen luxe keuken is uitgevoerd met een stenen werkblad en diverse inbouwapparatuur, waaronder een brede Boretti oven, Quooker, koel-/vriescombinatie en vaatwasser. Openslaande deuren én een aparte keukendeur geven toegang tot de zonnige achtertuin (ZW).
Eerste verdieping
Overloop. Complete badkamer met ligbad, douche, wastafelmeubel en toilet. Ruime voorslaapkamer met inbouwkasten en balkon. Royale hoofdslaapkamer aan de achterzijde met inbouwkasten over de gehele breedte. Derde slaapkamer aan de achterzijde (thans in gebruik als kantoor) met balkon; wasmachine en droger zijn netjes weggewerkt in kasten.
Tweede verdieping
Overloop met tweede badkamer voorzien van douche, wastafel en toilet. Hier bevindt zich tevens de cv-combiketel (Intergas HRE, 2025). Ruime voorslaapkamer met dakkapel en een speels ingedeelde achterslaapkamer, eveneens met dakkapel en dakraam.
Tuin & garage
De recent opnieuw aangelegde voor-, zij- en achtertuin vormen samen een groene en verzorgde buitenruimte. Dankzij de ligging op het zuidwesten geniet je hier optimaal van de middag- en avondzon. Tevens zijn voorbereidingen getroffen voor het plaatsen van een laadpaal.
Achter in de tuin staan een stenen berging en een vrijstaande garage met elektra. Op het pannendak liggen 18 zonnepanelen.
Bijzonderheden:
Sfeervolle hoekwoning uit 1929
Direct te betrekken
7 kamers, 2 badkamers
Ca. 151 m² woonoppervlakte / 319 m² perceel
Fraai aangelegde tuin op het zuidwesten
Vrijstaande garage, thans in gebruik als berging
Zeer lichte woonvertrekken door hoekligging en grote raampartijen
In 2025 o.a. nieuwe gevelbekleding, tuinaanleg, 3 airco’s en nieuwe cv-ketel (Intergas HRE)
18 zonnepanelen
Energielabel A
Vloer- en dakisolatie, HR++ glas
Ouderdomsclausule en asbestclausule van toepassing in de NVM-koopovereenkomst
Deze presentatie is met zorg samengesteld. Desondanks aanvaarden wij geen aansprakelijkheid voor eventuele onjuistheden of onvolledigheden. Alle opgegeven maten en oppervlakten zijn indicatief. NVM-voorwaarden zijn van toepassing.
Enthousiast geworden? Wij laten je deze unieke woning aan de Narcislaan 21 graag persoonlijk beleven. Neem contact met ons op voor een bezichtiging.
| Vastgoed ID | WR104361 |
|---|---|
| Vraagprijs | € 919.500 k.k. |
| Woningtype | Villa |
| Woonopp. | 151 m² |
| Perceelopp. | 319 m² |
| Bouwjaar | 1929 |
| Renovatiejaar | - |
| Slaapkamers | 5 |
| Badkamers | 2 |
| Garages | 1 |
| Energielabel | A |
Welp Makelaardij Van Hogendorpstraat 16 d, 2242 KZ Wassenaar
- Telefoon:+31.070.51.11.720
- Email:info@welpmakelaardij.nl
- Website:www.welpmakelaardij.nl
- Maandag - VrijdagOpen van 09.00 - 17.30
- Zaterdag Open van 10.00 - 14.00
- Zondag Gesloten


















































